4-Bedroom, 2400 Sq Ft French Plan with Eat-In Kitchen

French home (ThePlanCollection: Plan #194-1002)

Images/Plans copyrighted by designer. Photos may reflect homeowner modifications.

About House Plan #194-1002

Sq Ft
2400
Sq Ft
Bedrooms
4
Bedrooms
Bathroom
2
Baths
Half Baths
1
Half Baths
Bedrooms
3
Cars
Bedrooms
2
Stories
Bedrooms
50' 0'
Width
Bedrooms
60
Depth
Starting at$1395.00What's included
STEP 1Bedrooms
STEP 2Bedrooms
STEP 3Bedrooms

Subtotal:$0
Plan Collection

How much will it cost to build?

Estimate your costs based on your location and materials.

Free Cost Instant Estimator

Floor Plans

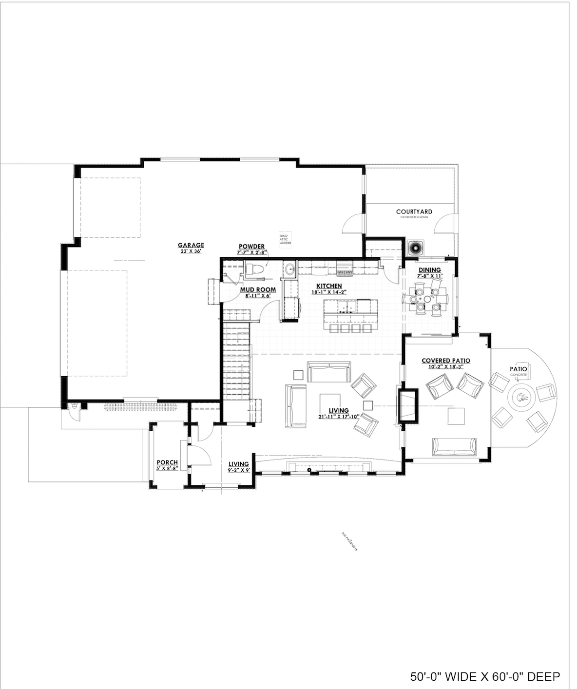
Floor Plan Main Level
Floor Plan Main Level
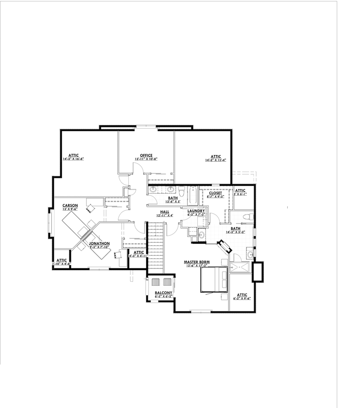
Floor Plan Upper Level
Floor Plan Upper Level
Lower Level
Lower Level
Plan Collection

Can I modify this plan?

Yes! This plan can be customized—contact us for a free quote.

House Plan Description

This home features a French Country design with vaulted ceilings throught the upper level. The main level is open and and full of charm and ample entertainment opportunity for such a limited square footage. The garage is huge, and the basement (finish is optional) is just the right size. The back patio, with half of it covered, is the perfect compliment of exposure to nature and covered area (for bad weather) while experiencing nature.

Home Details

Summary
Plan #:194-1002
Starting at:$1395.00
Floors:2
Bedrooms:4
Full Baths:2
Half Baths:1
Garage:
Square Footage
Heated Area:2400 Sq. Ft.
First Floor:1123 Sq. Ft.
Second Floor:1277 Sq. Ft.
Unheated Area:
Basement:1043 Sq. Ft.
Garage:1087 Sq. Ft.
Dimensions
Architectural Styles
Exterior Wall Material
StuccoRock/Stone
Roofing Type
Gable
Roofing Material
Asphalt Shingles
Roof Pitch
12/126/12
Ceiling Height
10 Foot Ceiling8 Foot Ceiling
Special Feature
FireplaceHome OfficeMud RoomFamily RoomSplit BathroomStorageVaulted CeilingsBalconySecond Level LaundryOpen Floor Plan
Garage Type
Attached GarageSide Entry
Fireplaces
One Fireplace
Exterior Wall Framing
2x6
Building Lot Type
Flat Site
Kitchen Features
Kitchen IslandNook/Breakfast AreaWalk-in PantryEat-In Kitchen
Porches and Exterior Features
CourtyardPorticoPatioCovered Rear Patio
Master Suite Features
Master BathroomWalk In ClosetPrivate DeckSecond Floor Master

What’s Included

Most plan sets include the following:

icon text-secondary-400 includedCover Sheet - project statistics, including square footage, 3D images (typically), general notes, and drawings sheet index.

icon text-secondary-400 includedFoundation/basement plan - showing room/wall layout, beams, posts, joist direction, and often electrical outlets, switches, and light locations.

icon text-secondary-400 includedMain Level Plan - floor plan rooms and walls dimensioned, window and door sizes noted, plumbing, millwork locations, and other general notes.

icon text-secondary-400 includedUpper-Level Plan (if needed) - same information as Main Level.

icon text-secondary-400 includedMain Level Electrical Plan - electrical outlets, switches, and light locations shown.

icon text-secondary-400 includedUpper-Level Electrical Plan (if needed) - electrical outlets, switches, and light locations shown. (sometimes just the lighting is shown)

icon text-secondary-400 includedExterior Elevations - Elevations of the Front and Right side with notes, dimensions, and material designations.

icon text-secondary-400 includedSections and details - One or more building sections to show vertical relationships and construction plate heights, details as needed.

What’s Not Included

These items are  NOT included:

icon text-secondary-400 includedArchitectural or Engineering Stamp - handled locally if required.

icon text-secondary-400 includedSite Plan - handled locally when required.

icon text-secondary-400 includedMechanical Drawings (location of heating and air equipment and ductwork) - your subcontractors handle this.

icon text-secondary-400 includedPlumbing Drawings (drawings showing the actual plumbing pipe sizes and locations) - your subcontractors handle this.

icon text-secondary-400 includedEnergy calculations - handled locally when required.

Related House Plans

Plan Collection
Plan Collection
Plan Collection
Plan#169-1035
Starting at$720
2482
Sq Ft
2
Story
4
Bed
2.5
Bath
3
Car
Plan Collection
Plan Collection
Plan Collection
Plan#163-1001
Starting at$1230
2757
Sq Ft
2
Story
4
Bed
2.5
Bath
2
Car
Plan Collection
Plan Collection
Plan Collection
Plan#178-1080
Starting at$1005
1980
Sq Ft
2
Story
4
Bed
2.5
Bath
2
Car
View All

Other Plans By This Designer

Plan Collection
Plan Collection
Plan Collection
Plan#194-1056
Starting at$1395
3582
Sq Ft
1
Story
4
Bed
4.5
Bath
4
Car
Plan Collection
Plan Collection
Plan Collection
Plan#194-1057
Starting at$1395
3692
Sq Ft
1
Story
4
Bed
4.5
Bath
4
Car
Plan Collection
Plan Collection
Plan Collection
Plan#194-1010
Starting at$1395
2605
Sq Ft
1
Story
2
Bed
2.5
Bath
3
Car