4-Bedroom, 2392 Sq Ft Farmhouse Plan with Dining Room

Front elevation of Farmhouse home (ThePlanCollection: House Plan #142-1490)

Images/Plans copyrighted by designer. Photos may reflect homeowner modifications.

About House Plan #142-1490

Sq Ft
2392
Sq Ft
Bedrooms
4
Bedrooms
Bathroom
3
Baths
Half Baths
1
Half Baths
Bedrooms
2
Cars
Bedrooms
2
Stories
Bedrooms
72' 8'
Width
Bedrooms
59
Depth
Starting at$1345.00What's included
STEP 1Bedrooms
STEP 2Bedrooms
STEP 3Bedrooms

Subtotal:$0
Plan Collection

How much will it cost to build?

Estimate your costs based on your location and materials.

Free Cost Instant Estimator

Floor Plans

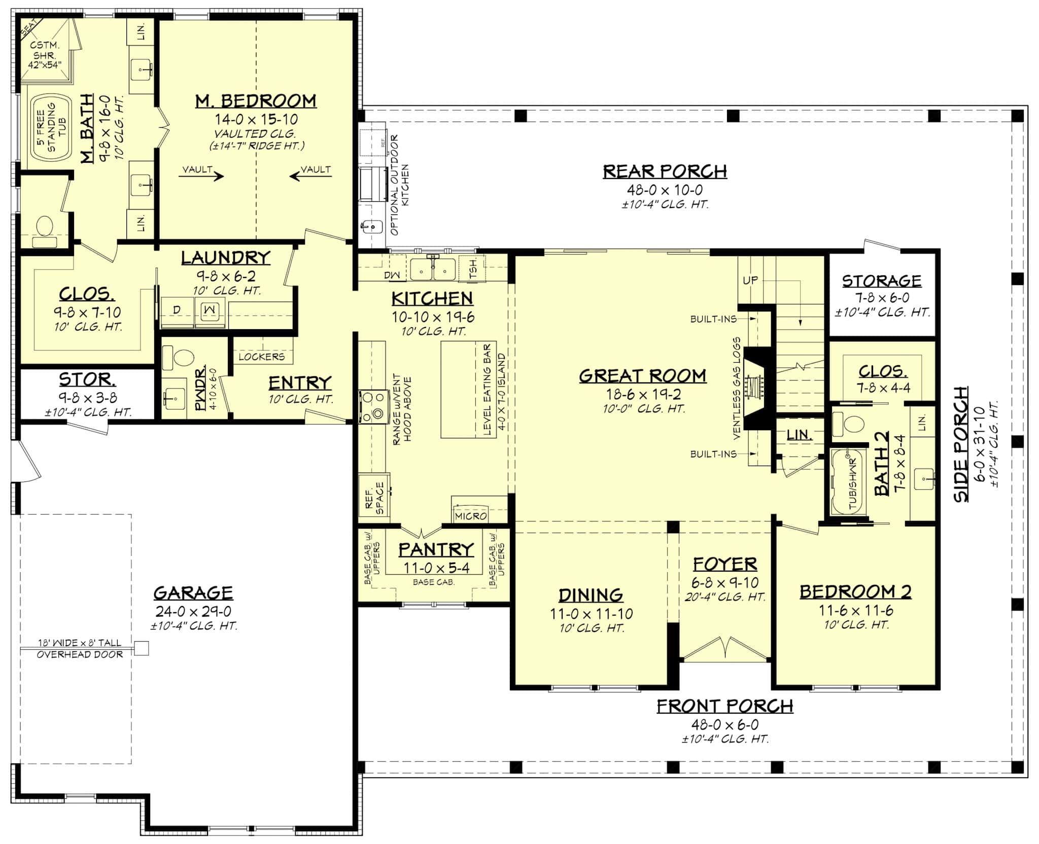
Floor Plan First Story
Floor Plan First Story
Floor Plan Second Story
Floor Plan Second Story
Basement Option Stair Location
Basement Option Stair Location
Plan Collection

Can I modify this plan?

Yes! This plan can be customized—contact us for a free quote.

Additional Notes from Designer

On some plans, Basement Foundations, Walkout Basement Foundations & 2x6 Conversions could take up to ONE WEEK to produce. Materials Lists could take up to FOUR WEEKS to produce and they will be for the ORIGINAL plan! Any modifications will NOT be reflected on the Materials List. NOTE FROM DESIGNER: If you purchase a CAD, you will automatically receive the unlimited build license - no need to purchase separately!

House Plan Description

This stunning farmhouse offers 4 beds, 3.5 baths, ideal for country or suburban living. The foyer boasts a 2-story ceiling, leading to an open layout with a spacious kitchen, great room, eat-at island, and walk-in pantry. The main suite features an oversized bath and closet, accessible through the laundry room.

Home Details

Summary
Plan #:142-1490
Starting at:$1345.00
Floors:2
Bedrooms:4
Full Baths:3
Half Baths:1
Garage:
Square Footage
Heated Area:2392 Sq. Ft.
First Floor:1903 Sq. Ft.
Second Floor:489 Sq. Ft.
Unheated Area:
Bonus Room:268 Sq. Ft.
Garage:697 Sq. Ft.
Porch:1038 Sq. Ft.
Dimensions
Width:72' 8''
Ridge Height:30' 0''
Architectural Styles
Exterior Wall Material
BrickLap SidingBoard and Batten
Roofing Type
Gable
Roofing Material
Metal
Roof Pitch
12/124/128/12
Ceiling Height
10 Foot Ceiling9 Foot Ceiling
Special Feature
FireplaceDining RoomBonus RoomMain Level LaundryColor PhotosStorageOpen Floor Plan
Garage Type
Attached Garage
Fireplaces
One Fireplace
Exterior Wall Framing
2x4
Kitchen Features
Walk-in PantryOutdoor KitchenPeninsula/Eating Bar
Porches and Exterior Features
Covered Front PorchCovered Rear Porch
Master Suite Features
Main Floor MasterSplit Master Bedroom

What’s Included

Most plan sets include the following:

icon text-secondary-400 includedCover sheet

icon text-secondary-400 includedFoundation plan

icon text-secondary-400 includedDimensional floor plan

icon text-secondary-400 includedExterior views

icon text-secondary-400 includedRoof plan

icon text-secondary-400 includedElectrical layout

icon text-secondary-400 includedWall section(s)

icon text-secondary-400 includedBuilding section(s)

icon text-secondary-400 includedCabinet elevations

What’s Not Included

These items are  NOT included:

icon text-secondary-400 includedArchitectural or Engineering Stamp - handled locally if required.

icon text-secondary-400 includedSite Plan - handled locally when required.

icon text-secondary-400 includedMechanical Drawings (location of heating and air equipment and ductwork) - your subcontractors handle this.

icon text-secondary-400 includedPlumbing Drawings (drawings showing the actual plumbing pipe sizes and locations) - your subcontractors handle this.

icon text-secondary-400 includedEnergy calculations - handled locally when required.

icon text-secondary-400 includedNo Framing

Related House Plans

Plan Collection
Plan Collection
Plan Collection
Plan#153-1786
Starting at$1200
2363
Sq Ft
2
Story
4
Bed
3
Bath
2
Car
Plan Collection
Plan Collection
Plan Collection
Plan#178-1096
Starting at$1055
2252
Sq Ft
2
Story
4
Bed
3
Bath
3
Car
Plan Collection
Plan Collection
Plan Collection
Plan#109-1191
Starting at$1495
2909
Sq Ft
2
Story
4
Bed
3.5
Bath
0
Car
View All

Other Plans By This Designer

Plan Collection
Plan Collection
Plan Collection
Plan#142-1244
Starting at$1545
3086
Sq Ft
1
Story
4
Bed
3.5
Bath
3
Car
Plan Collection
Plan Collection
Plan Collection
Plan#142-1256
Starting at$1295
1599
Sq Ft
1
Story
3
Bed
2.5
Bath
2
Car
Plan Collection
Plan Collection
Plan Collection
Plan#142-1265
Starting at$1245
1448
Sq Ft
1
Story
2
Bed
2
Bath
1
Car