4-Bedroom, 2291 Sq Ft Farmhouse Plan with Bonus Room

Front elevation of Farmhouse home (ThePlanCollection: House Plan #206-1061)

Images/Plans copyrighted by designer. Photos may reflect homeowner modifications.

About House Plan #206-1061

Sq Ft
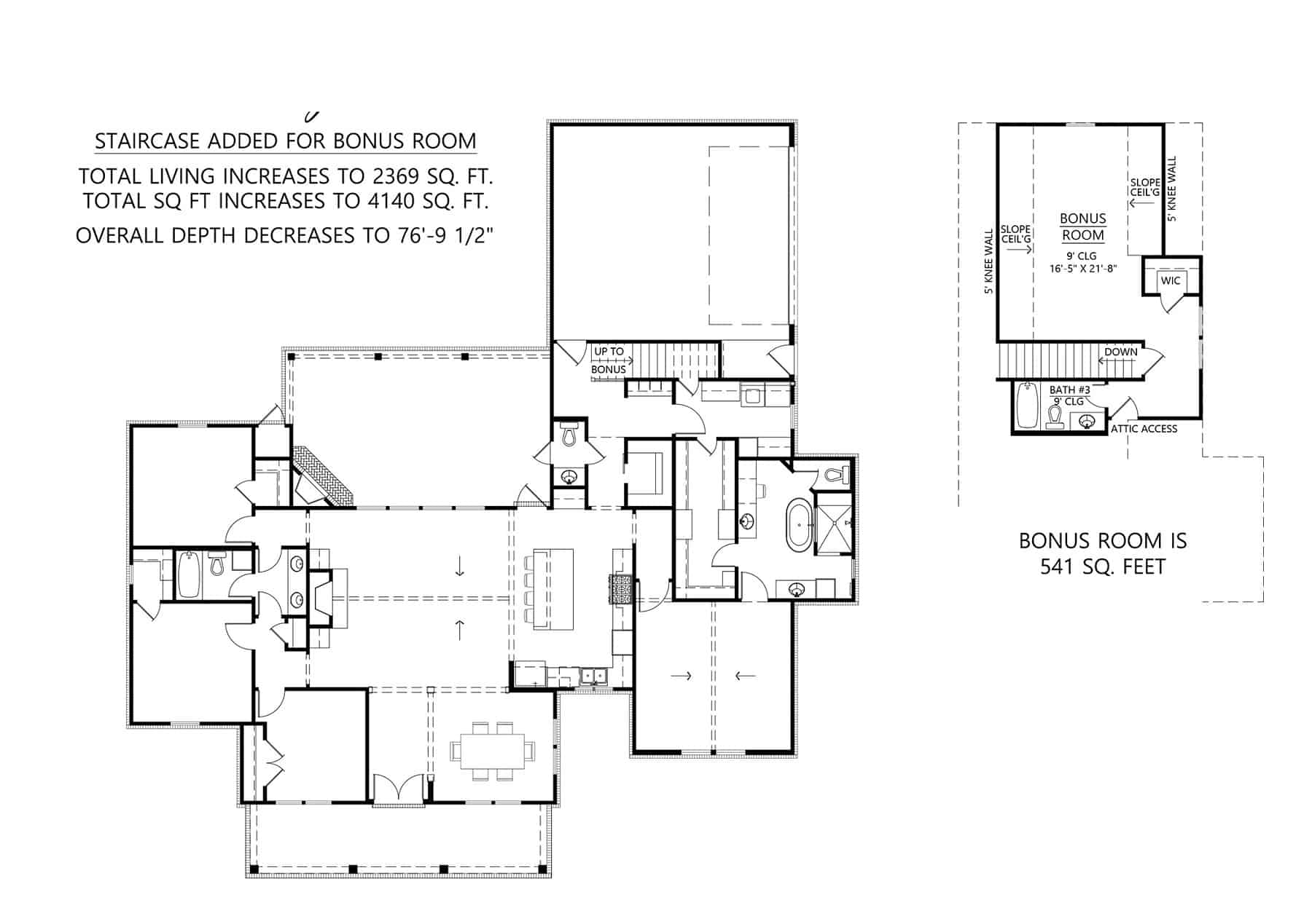
2369
Sq Ft
Bedrooms
4
Bedrooms
Bathroom
2
Baths
Half Baths
1
Half Baths
Bedrooms
2
Cars
Bedrooms
1
Stories
Bedrooms
74' 0'
Width
Bedrooms
72
Depth
Starting at$1245.00What's included
STEP 1Bedrooms
STEP 2Bedrooms
STEP 3Bedrooms

Subtotal:$0
Plan Collection

How much will it cost to build?

Estimate your costs based on your location and materials.

Free Cost Instant Estimator

Floor Plans

Floor Plan First Story
Floor Plan First Story
Plan Collection

Can I modify this plan?

Yes! This plan can be customized—contact us for a free quote.

House Plan Description

Looking for a stylish and spacious farmhouse plan that has everything you need? This 4-bedroom, 2291 sq ft home is just what you're looking for! With a beautiful Craftsman-style exterior and a spacious media room, this home has it all. Plus, the generous amount of living space ensures that there's plenty of room for everyone to spread out and enjoy themselves. So if you're looking for a functional and stylish farmhouse plan, this is the one for you!

Home Details

Summary
Plan #:206-1061
Starting at:$1245.00
Floors:1
Bedrooms:4
Full Baths:2
Half Baths:1
Garage:
Square Footage
Heated Area:2369 Sq. Ft.
First Floor:2369 Sq. Ft.
Unheated Area:
Bonus Room:541 Sq. Ft.
Garage:571 Sq. Ft.
Porch:659 Sq. Ft.
Dimensions
Depth:72' 9''
Architectural Styles
Roofing Type
GableHip
Roofing Material
Asphalt ShinglesMetal
Roof Pitch
12/129/12
Ceiling Height
10 Foot Ceiling9 Foot Ceiling
Special Feature
FireplaceDining RoomMud RoomMain Level LaundryMedia RoomStorageVaulted CeilingsOpen Floor PlanL-Shaped
Garage Type
Attached GarageSide Entry
Fireplaces
Two Fireplaces
Exterior Wall Framing
2x4
Kitchen Features
Kitchen IslandWalk-in PantryPeninsula/Eating Bar
Porches and Exterior Features
Covered Front PorchCovered Rear Porch
Master Suite Features
Main Floor MasterMaster BathroomWalk In ClosetSplit Master Bedroom

What’s Included

Most plan sets include the following:

icon text-secondary-400 includedFloor plan(s)

icon text-secondary-400 includedWindow & door schedules

icon text-secondary-400 includedElectrical layout

icon text-secondary-400 includedExterior elevations

icon text-secondary-400 includedFoundation plan

icon text-secondary-400 includedTypical wall section

icon text-secondary-400 includedFoundation section details

icon text-secondary-400 includedRoof plans

icon text-secondary-400 includedMiscellaneous details

icon text-secondary-400 includedKitchen & bath cabinet elevations

icon text-secondary-400 includedBuilding Cross-Section

What’s Not Included

These items are  NOT included:

icon text-secondary-400 includedArchitectural or Engineering Stamp - handled locally if required.

icon text-secondary-400 includedSite Plan - handled locally when required.

icon text-secondary-400 includedMechanical Drawings (location of heating and air equipment and duct work) - your subcontractors handle this.

icon text-secondary-400 includedPlumbing Drawings (drawings showing the actual plumbing pipe sizes and locations) - your subcontractors handle this.

icon text-secondary-400 includedEnergy calculations - handled locally when required.

Related House Plans

Plan Collection
Plan Collection
Plan Collection
Plan#142-1170
Starting at$1395
2641
Sq Ft
1
Story
4
Bed
2.5
Bath
2
Car
Plan Collection
Plan Collection
Plan Collection
Plan#142-1204
Starting at$1345
2373
Sq Ft
1
Story
4
Bed
2.5
Bath
2
Car
Plan Collection
Plan Collection
Plan Collection
Plan#142-1189
Starting at$1395
2589
Sq Ft
1
Story
4
Bed
2.5
Bath
2
Car
View All

Other Plans By This Designer

Plan Collection
Plan Collection
Plan Collection
Plan#206-1039
Starting at$1245
2230
Sq Ft
1
Story
3
Bed
2.5
Bath
2
Car
Plan Collection
Plan Collection
Plan Collection
Plan#206-1046
Starting at$1195
1817
Sq Ft
1
Story
3
Bed
2
Bath
2
Car
Plan Collection
Plan Collection
Plan Collection
Plan#206-1035
Starting at$1295
2716
Sq Ft
1
Story
4
Bed
3
Bath
3
Car