4-Bedroom, 2332 Sq Ft Traditional Plan with Second Level Laundry

Front elevation of Traditional home (ThePlanCollection: House Plan #100-1222)

Images/Plans copyrighted by designer. Photos may reflect homeowner modifications.

About House Plan #100-1222

Sq Ft
2332
Sq Ft
Bedrooms
4
Bedrooms
Bathroom
3
Baths
Half Baths
0
Half Baths
Bedrooms
3
Cars
Bedrooms
2
Stories
Bedrooms
63' 0'
Width
Bedrooms
49
Depth
Starting at$1600.00What's included
STEP 1Bedrooms
STEP 2Bedrooms
STEP 3Bedrooms

Subtotal:$0
Plan Collection

How much will it cost to build?

Estimate your costs based on your location and materials.

Free Cost Instant Estimator

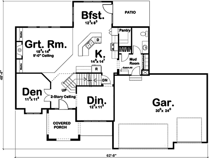
Floor Plans

Floor Plan Main Level
Floor Plan Main Level
Floor Plan Upper Level
Floor Plan Upper Level
Plan Collection

Can I modify this plan?

Yes! This plan can be customized—contact us for a free quote.

Additional Notes from Designer

The CAD File formats are drawn in SoftPlan. PLEASE NOTE: Plans by this designer do NOT come with FRAMING! This designer does not do ICF.

House Plan Description

This lovely Traditional style home with Tudor influences (House Plan #100-1222) has 2332 square feet of living space. The 2 story floor plan includes 4 bedrooms.

Home Details

Summary
Plan #:100-1222
Starting at:$1600.00
Floors:2
Bedrooms:4
Full Baths:3
Half Baths:0
Garage:
Square Footage
Heated Area:2332 Sq. Ft.
First Floor:1222 Sq. Ft.
Second Floor:1110 Sq. Ft.
Unheated Area:
Garage:725 Sq. Ft.
Dimensions
Architectural Styles
Exterior Wall Material
Vinyl SidingRock/StoneWood Siding
Roofing Type
Gable
Roofing Material
Asphalt ShinglesMetal
Ceiling Height
9 Foot Ceiling
Special Feature
FireplaceMud RoomDenSecond Level Laundry
Garage Type
Attached GarageFront Entry
Fireplaces
One Fireplace
Exterior Wall Framing
2x4
Kitchen Features
Kitchen IslandPeninsula/Eating Bar
Porches and Exterior Features
Covered Front PorchCovered Rear Patio
Master Suite Features
Master BathroomWalk In ClosetSecond Floor Master

What’s Included

Most plan sets include the following:

icon text-secondary-400 includedCover Sheet: Shows the front elevation and typical notes and requirements.

icon text-secondary-400 includedExterior Elevations: Shows the front, rear and sides of the home including exterior materials, details and measurements

icon text-secondary-400 includedFloor Plans: Shows the placement of walls and the dimensions for rooms, doors, windows, stairways, etc. for each floor.

icon text-secondary-400 includedElectrical Plans: Shows the location of outlets, fixtures and switches. They are shown as a separate sheet to make the floor plans more legible

icon text-secondary-400 includedFoundation Plans: will include a basement, crawlspace or slab depending on what is available for that home plan. (Please refer to the home plan's details sheet to see what foundation options are available for a specific home plan.) The foundation plan details the layout and construction of the foundation.

icon text-secondary-400 includedRoof Plan

icon text-secondary-400 includedTypical wall section

icon text-secondary-400 includedTypical stair section

icon text-secondary-400 includedCabinets are shown on all plans.

What’s Not Included

These items are  NOT included:

icon text-secondary-400 includedArchitectural or Engineering Stamp - handled locally if required.

icon text-secondary-400 includedSite Plan - handled locally when required.

icon text-secondary-400 includedMechanical Drawings (location of heating and air equipment and ductwork) - your subcontractors handle this.

icon text-secondary-400 includedPlumbing Drawings (drawings showing the actual plumbing pipe sizes and locations) - your subcontractors handle this.

icon text-secondary-400 includedEnergy calculations - handled locally when required.

Related House Plans

Plan Collection
Plan Collection
Plan Collection
Plan#153-1020
Starting at$1200
2373
Sq Ft
2
Story
4
Bed
3
Bath
3
Car
Plan Collection
Plan Collection
Plan Collection
Plan#153-1786
Starting at$1200
2363
Sq Ft
2
Story
4
Bed
3
Bath
2
Car
Plan Collection
Plan Collection
Plan Collection
Plan#178-1096
Starting at$1055
2252
Sq Ft
2
Story
4
Bed
3
Bath
3
Car
View All

Other Plans By This Designer

Plan Collection
Plan Collection
Plan Collection
Plan#100-1364
Starting at$350
224
Sq Ft
1.5
Story
0
Bed
0
Bath
0
Car
Plan Collection
Plan Collection
Plan Collection
Plan#100-1311
Starting at$1800
2978
Sq Ft
2
Story
6
Bed
2.5
Bath
2
Car
Plan Collection
Plan Collection
Plan Collection
Plan#100-1054
Starting at$1800
1412
Sq Ft
1
Story
3
Bed
1.5
Bath
2
Car