Estimate your costs based on your location and materials.
Yes! This plan can be customized—contact us for a free quote.
Yes! This plan can be customized—contact us for a free quote.
PLEASE NOTE!! For this designer, The PDF that comes with the PRINT Packages (5 set+PDF and 8 set+PDF) is NOT Modifiable - it is for printing ONLY!
PLEASE NOTE!! Optional Foundations (foundations that cost extra money) will take 5-10 business days to complete.
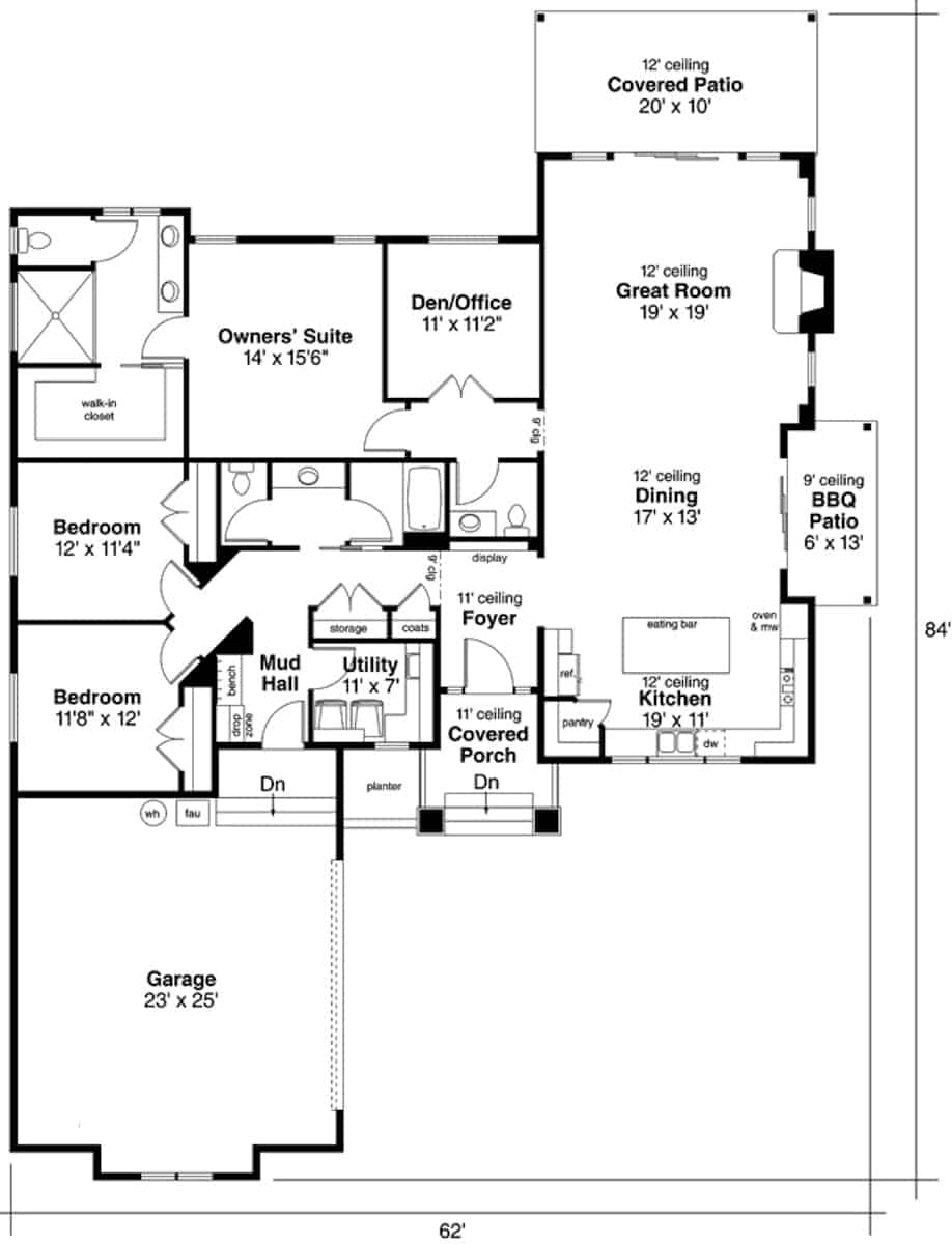
Total covered square footage: 2988 square feet
This simple but elegant Contemporary Ranch home with California Style characteristics is designed for gracious and comfortable living. You're welcomed by the cozy entry portico, and you'll be delighted by all the home has to offer. The impressive 1-story home's floor plan has 2321 square feet of heated and cooled living space and includes these features:
• Spacious walk-in corner pantry in the kitchen
• Good-size laundry room with sink
• Fireplace in the Great Room
• Home...
Estimate your costs based on your location and materials.
All sales of house plans, modifications, and other products found on this site are final. No refunds or exchanges can be given once your order has begun the fulfillment process. Please see our Policies for additional information.
All plans offered on ThePlanCollection.com are designed to conform to the local building codes when and where the original plan was drawn.
The homes as shown in photographs and renderings may differ from the actual blueprints. For more detailed information, please review the floor plan images herein carefully.
Estimate your costs based on your location and materials.