3–4-Bedroom, 2318–3780 Sq Ft Contemporary Plan with Second Floor Master

Contemporary style house design (ThePlanCollection: Plan #196-1283)

Images/Plans copyrighted by designer. Photos may reflect homeowner modifications.

About House Plan #196-1283

Sq Ft
2318
Sq Ft
Bedrooms
3
Bedrooms
Bathroom
3
Baths
Half Baths
0
Half Baths
Bedrooms
2
Cars
Bedrooms
2
Stories
Bedrooms
64' 6'
Width
Bedrooms
68
Depth
Starting at$1425.00What's included
STEP 1Bedrooms
STEP 2Bedrooms
STEP 3Bedrooms

Subtotal:$0
Plan Collection

How much will it cost to build?

Estimate your costs based on your location and materials.

Free Cost Instant Estimator

Floor Plans

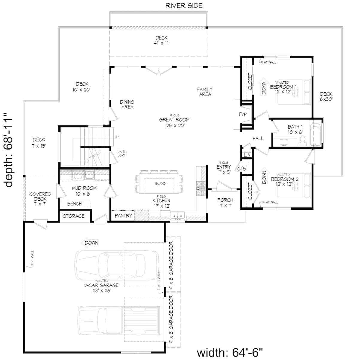
Main Level
Main Level
Upper Level
Upper Level
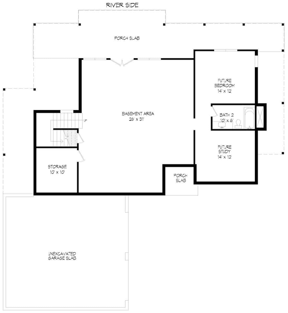
Basement
Basement
Plan Collection

Can I modify this plan?

Yes! This plan can be customized—contact us for a free quote.

Additional Notes from Designer

NOTE FROM DESIGNER REGARDING PLAN PURCHASES: 80% of a 5 set purchase price can be applied to any PDF or CAD license upgrade. Additionally, 80% of PDF Study purchase price can be applied to any CAD or PDF license upgrade.

House Plan Description

This Contemporary style house offers you the ease and convenience of everyday living as if you're on vacation. You're sure to love the spacious, open layout of the home, which makes it ideal for the whole family. The 2-story stylish home's floor plan has 2318 square feet of heated and cooled living space with a 1462-square-foot basement that you can finish at a later date for future expansion. The house also features wonderful amenities:

• Fireplace in the Great Room
• Vaulted ceilings that rise up to 14+ feet high

Home Details

Summary
Plan #:196-1283
Starting at:$1425.00
Floors:2
Bedrooms:3
Full Baths:3
Half Baths:0
Garage:
Square Footage
Heated Area:2318 Sq. Ft.
First Floor:1448 Sq. Ft.
Second Floor:870 Sq. Ft.
Unheated Area:
Basement:1462 Sq. Ft.
Garage:775 Sq. Ft.
Dimensions
Width:64' 6''
Depth:68' 11''
Architectural Styles
Exterior Wall Material
Vinyl SidingRock/StoneWood Siding
Roofing Type
Shed
Roofing Material
Metal
Roof Pitch
2/12
Ceiling Height
9 Foot Ceiling
Special Feature
FireplaceMud RoomFamily RoomMain Level LaundryColor PhotosSplit BathroomStorageVaulted CeilingsBalconyExercise RoomOpen Floor Plan
Garage Type
Attached GarageCourtyard Entry
Fireplaces
One Fireplace
Exterior Wall Framing
2x4
Building Lot Type
Down SiteView Lot
Kitchen Features
Kitchen IslandPeninsula/Eating Bar
Porches and Exterior Features
Covered Rear PorchSundeckPorticoCovered Rear Patio
Master Suite Features
Master BathroomWalk In ClosetSecond Floor MasterSplit Master Bedroom

What’s Included

Most plan sets include the following:

What’s Not Included

These items are  NOT included:

Related House Plans

Plan Collection
Plan Collection
Plan Collection
Plan#116-1100
Starting at$0
2269
Sq Ft
2
Story
3
Bed
3
Bath
2
Car
Plan Collection
Plan Collection
Plan Collection
Plan#132-1418
Starting at$1245
2272
Sq Ft
2
Story
3
Bed
3.5
Bath
2
Car
Plan Collection
Plan Collection
Plan Collection
Plan#108-1764
Starting at$950
2291
Sq Ft
2
Story
3
Bed
3
Bath
2
Car
View All

Other Plans By This Designer

Plan Collection
Plan Collection
Plan Collection
Plan#196-1211
Starting at$695
650
Sq Ft
2
Story
1
Bed
1
Bath
2
Car
Plan Collection
Plan Collection
Plan Collection
Plan#196-1196
Starting at$810
1500
Sq Ft
1
Story
2
Bed
2
Bath
3
Car
Plan Collection
Plan Collection
Plan Collection
Plan#196-1216
Starting at$845
1727
Sq Ft
2
Story
2
Bed
2
Bath
2
Car