4-Bedroom, 2316 Sq Ft Cottage Plan with Split Master Bedroom

Cottage home plan (ThePlanCollection: House Plan #169-1149)

Images/Plans copyrighted by designer. Photos may reflect homeowner modifications.

About House Plan #169-1149

Sq Ft
2316
Sq Ft
Bedrooms
4
Bedrooms
Bathroom
2
Baths
Half Baths
1
Half Baths
Bedrooms
2
Cars
Bedrooms
2
Stories
Bedrooms
58' 6'
Width
Bedrooms
57
Depth
Starting at$1050.00What's included
STEP 1Bedrooms
STEP 2Bedrooms
STEP 3Bedrooms

Subtotal:$0
Plan Collection

How much will it cost to build?

Estimate your costs based on your location and materials.

Free Cost Instant Estimator

Floor Plans

Floor Plan Main Level
Floor Plan Main Level
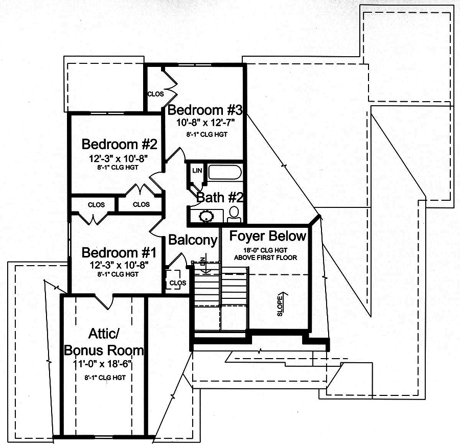
Floor Plan Upper Level
Floor Plan Upper Level
Plan Collection

Can I modify this plan?

Yes! This plan can be customized—contact us for a free quote.

Additional Notes from Designer

PLEASE NOTE: 5 sets and 8 sets include a PDF as well.

House Plan Description

This lovely Cottage style home plan with Country influences (House Plan #169-1149) has 2316 square feet of living space. The 2 story floor plan includes 4 bedrooms.

Home Details

Summary
Plan #:169-1149
Starting at:$1050.00
Floors:2
Bedrooms:4
Full Baths:2
Half Baths:1
Garage:
Square Footage
Heated Area:2316 Sq. Ft.
First Floor:1686 Sq. Ft.
Second Floor:630 Sq. Ft.
Unheated Area:
Basement:1686 Sq. Ft.
Bonus Room:284 Sq. Ft.
Garage:512 Sq. Ft.
Porch:233 Sq. Ft.
Dimensions
Width:58' 6''
Architectural Styles
Exterior Wall Material
Vinyl SidingRock/StoneWood SidingShakes
Roofing Type
Gable
Roofing Material
Asphalt Shingles
Roof Pitch
12/128/12
Ceiling Height
9 Foot Ceiling8 Foot Ceiling12 Foot Ceiling
Special Feature
FireplaceDining RoomMud RoomFamily RoomMain Level LaundrySplit BathroomOpen Floor Plan
Garage Type
Attached GarageFront Entry
Fireplaces
One Fireplace
Exterior Wall Framing
2x4
Kitchen Features
Walk-in Pantry
Porches and Exterior Features
Covered Front PorchScreened Porch/Sunroom
Master Suite Features
Main Floor MasterMaster BathroomWalk In ClosetSplit Master Bedroom

What’s Included

Most plan sets include the following:

icon text-secondary-400 includedGeneral notes and specifications

icon text-secondary-400 includedFront, rear and side elevations (1/4" scale)

icon text-secondary-400 includedFoundation plan (1/4" scale) indicating beam and column sizes along with lower level framing

icon text-secondary-400 includedReinforced foundation and footing details

icon text-secondary-400 includedFirst floor plan (1/4" scale) includes all necessary framing information, window rough openings, beam sizes and framing details for specialized areas

icon text-secondary-400 includedStairs, sections, cabinet layouts, window flashing and miscellaneous details necessary for understanding of construction method

icon text-secondary-400 includedRoof plan (1/8" scale) indicating pitches and wall height as well as truss profiles indicating heel heights and raised ceiling areas

What’s Not Included

These items are  NOT included:

icon text-secondary-400 includedArchitectural or Engineering Stamp - handled locally if required.

icon text-secondary-400 includedSite Plan - handled locally when required.

icon text-secondary-400 includedMechanical Drawings (location of heating and air equipment and duct work) - your subcontractors handle this.

icon text-secondary-400 includedPlumbing Drawings (drawings showing the actual plumbing pipe sizes and locations) - your subcontractors handle this.

icon text-secondary-400 includedEnergy calculations - handled locally when required.

Related House Plans

Plan Collection
Plan Collection
Plan Collection
Plan#169-1035
Starting at$720
2482
Sq Ft
2
Story
4
Bed
2.5
Bath
3
Car
Plan Collection
Plan Collection
Plan Collection
Plan#163-1001
Starting at$1230
2757
Sq Ft
2
Story
4
Bed
2.5
Bath
2
Car
Plan Collection
Plan Collection
Plan Collection
Plan#178-1080
Starting at$1005
1980
Sq Ft
2
Story
4
Bed
2.5
Bath
2
Car
View All

Other Plans By This Designer

Plan Collection
Plan Collection
Plan Collection
Plan#169-1146
Starting at$720
1664
Sq Ft
2
Story
3
Bed
2.5
Bath
2
Car
Plan Collection
Plan Collection
Plan Collection
Plan#169-1195
Starting at$720
1706
Sq Ft
1
Story
3
Bed
2
Bath
3
Car
Plan Collection
Plan Collection
Plan Collection
Plan#169-1055
Starting at$720
1791
Sq Ft
1
Story
3
Bed
2
Bath
1
Car