3-Bedroom, 2300 Sq Ft Farmhouse Plan with Mud Room

Farmhouse style home (ThePlanCollection: Plan #196-1256)

Images/Plans copyrighted by designer. Photos may reflect homeowner modifications.

About House Plan #196-1256

Sq Ft
2300
Sq Ft
Bedrooms
3
Bedrooms
Bathroom
3
Baths
Half Baths
1
Half Baths
Bedrooms
0
Cars
Bedrooms
1.5
Stories
Bedrooms
52' 20'
Width
Bedrooms
46
Depth
Starting at$1425.00What's included
STEP 1Bedrooms
STEP 2Bedrooms
STEP 3Bedrooms

Subtotal:$0
Plan Collection

How much will it cost to build?

Estimate your costs based on your location and materials.

Free Cost Instant Estimator

Floor Plans

Main Level
Main Level
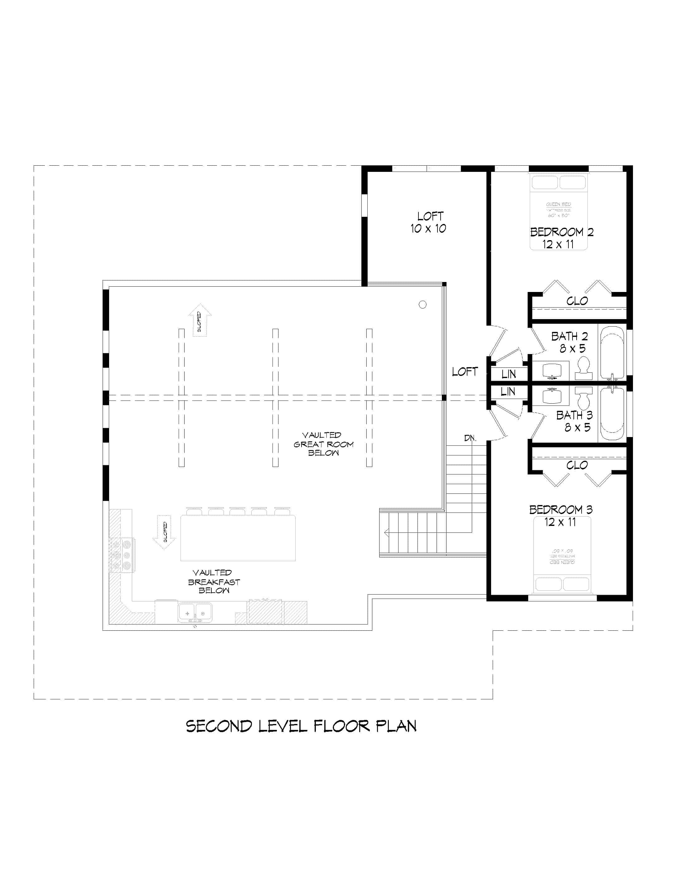
Upper Level
Upper Level
Plan Collection

Can I modify this plan?

Yes! This plan can be customized—contact us for a free quote.

Additional Notes from Designer

NOTE FROM DESIGNER REGARDING PLAN PURCHASES: 80% of a 5 set purchase price can be applied to any PDF or CAD license upgrade. Additionally, 80% of PDF Study purchase price can be applied to any CAD or PDF license upgrade.

House Plan Description

This warm and welcoming Farmhouse  style home may be just what you're looking for. With wonderful, simple design, the house offers a two-story Great Room, "getaway" bonus room in front that offers flexible opportunities for its use, a mud room, a loft upstairs, and two secondary bedrooms, each with its own bathroom – all wonderful amenities for you and your family! The endearing home's 1.5-story floor plan has 2300 square feet of fully conditioned living space and includes 3 bedrooms.

Home Details

Summary
Plan #:196-1256
Starting at:$1425.00
Floors:1.5
Bedrooms:3
Full Baths:3
Half Baths:1
Garage:
Square Footage
Heated Area:2300 Sq. Ft.
First Floor:1640 Sq. Ft.
Second Floor:660 Sq. Ft.
Unheated Area:
Porch:712 Sq. Ft.
Dimensions
Width:52' 20''
Depth:46' 6''
Architectural Styles
Exterior Wall Material
Vinyl SidingWood Siding
Roofing Type
GableGable/Dormer
Roofing Material
Metal
Roof Pitch
5/1210/12
Ceiling Height
9 Foot Ceiling8 Foot Ceiling
Special Feature
FireplaceMud RoomBonus RoomFamily RoomMain Level LaundryLoftStorageVaulted CeilingsOpen Floor PlanL-Shaped
Fireplaces
One Fireplace
Exterior Wall Framing
2x6
Building Lot Type
Flat Site
Kitchen Features
Kitchen IslandPeninsula/Eating Bar
Porches and Exterior Features
Wrap Around PorchCovered Front PorchCovered Rear Porch
Master Suite Features
Main Floor MasterSplit Master Bedroom

What’s Included

Most plan sets include the following:

What’s Not Included

These items are  NOT included:

Related House Plans

Plan Collection
Plan Collection
Plan Collection
Plan#106-1274
Starting at$1695
2499
Sq Ft
1.5
Story
3
Bed
3.5
Bath
3
Car
Plan Collection
Plan Collection
Plan Collection
Plan#116-1003
Starting at$0
2621
Sq Ft
1.5
Story
3
Bed
3
Bath
0
Car
Plan Collection
Plan Collection
Plan Collection
Plan#187-1006
Starting at$1350
2631
Sq Ft
1.5
Story
3
Bed
3
Bath
2
Car
View All

Other Plans By This Designer

Plan Collection
Plan Collection
Plan Collection
Plan#196-1211
Starting at$695
650
Sq Ft
2
Story
1
Bed
1
Bath
2
Car
Plan Collection
Plan Collection
Plan Collection
Plan#196-1196
Starting at$810
1500
Sq Ft
1
Story
2
Bed
2
Bath
3
Car
Plan Collection
Plan Collection
Plan Collection
Plan#196-1216
Starting at$845
1727
Sq Ft
2
Story
2
Bed
2
Bath
2
Car