3-Bedroom, 2294 Sq Ft Farmhouse Plan with Second Floor Master Suite

Front elevation of Farmhouse home (ThePlanCollection: House Plan #126-2018)

Images/Plans copyrighted by designer. Photos may reflect homeowner modifications.

About House Plan #126-2018

Sq Ft
2294
Sq Ft
Bedrooms
3
Bedrooms
Bathroom
2
Baths
Half Baths
1
Half Baths
Bedrooms
1
Cars
Bedrooms
2
Stories
Bedrooms
48' 0'
Width
Bedrooms
40
Depth
Starting at$1715.00What's included
STEP 1Bedrooms
STEP 2Bedrooms
STEP 3Bedrooms

Subtotal:$0
Plan Collection

How much will it cost to build?

Estimate your costs based on your location and materials.

Free Cost Instant Estimator

Floor Plans

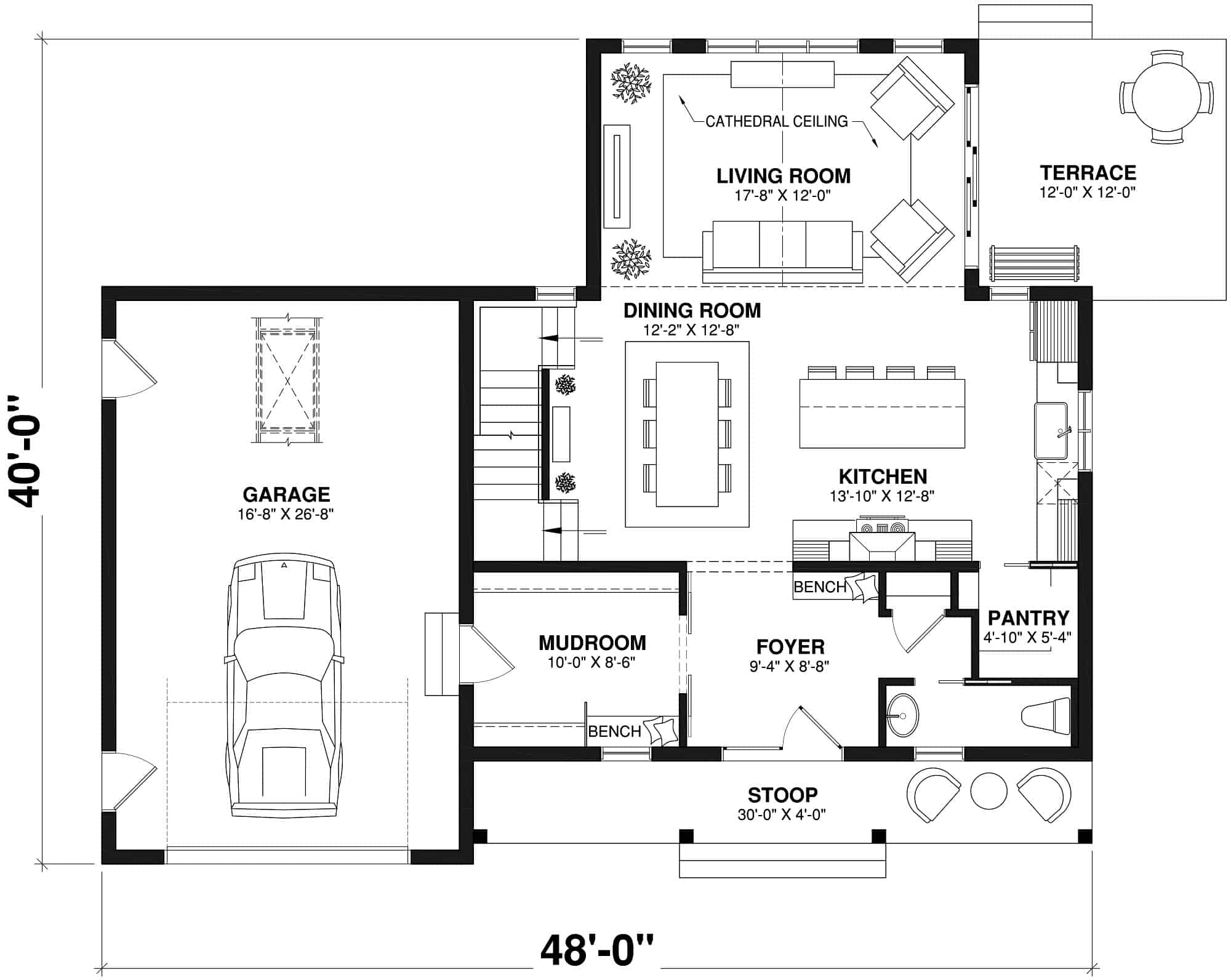
Main Level
Main Level
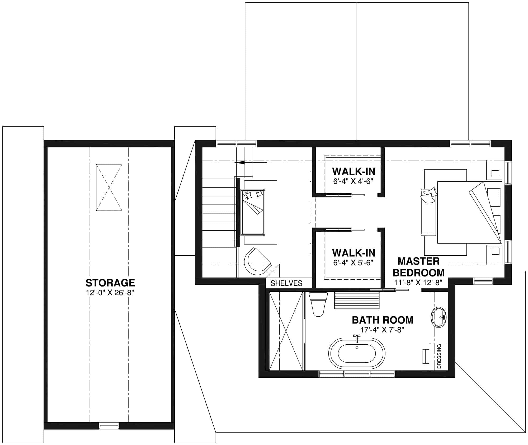
Upper Level
Upper Level
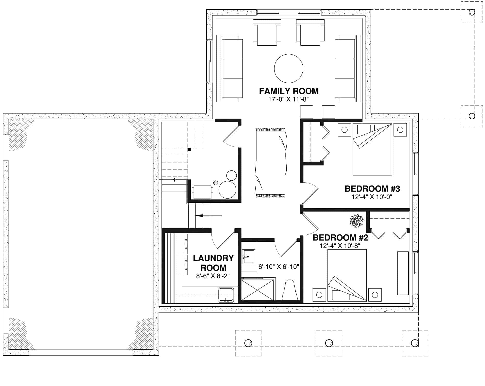
Basement
Basement
Plan Collection

Can I modify this plan?

Yes! This plan can be customized—contact us for a free quote.

Additional Notes from Designer

Please Note that the designer's office will be closed for the summer holidays from July 20th to August 2024. This designer's plans take 7-10 additional business days regardless of the type of delivery (express, email, etc). Please keep this in mind when ordering. BCIN is available for this designer - please submit a modification request for cost and time frame. PLEASE NOTE! This designer's plans do NOT come with an electrical layout. They will provide an electrical layout for an additional fee.

This Single Family Farmhouse Country Style House Plan has 2294 square feet, 3 bedrooms, and 2.5 bathrooms.

 

House Plan Description

Your family will surely fall in love with this Farmhouse Country style house and make it their top choice. This beautiful and desirable home has a total heated area of 2294 square feet with an 870-square-foot finished basement. The 488-square-foot 1-car garage has a very flexible layout making the possibility of adding a workshop. The multiple roof levels, forwarded gables, and timber accent on the porch gave this house excellent curb appeal.

A covered entry porch will welcome you upon stepping at the front of the house, and its main entrance door will usher you to the...

Home Details

Summary
Plan #:126-2018
Starting at:$1715.00
Floors:2
Bedrooms:3
Full Baths:2
Half Baths:1
Garage:
Square Footage
Heated Area:2294 Sq. Ft.
Basement:870 Sq. Ft.
First Floor:870 Sq. Ft.
Second Floor:554 Sq. Ft.
Unheated Area:
Bonus Room:336 Sq. Ft.
Garage:488 Sq. Ft.
Dimensions
Ridge Height:23' 0''
Architectural Styles
Exterior Wall Material
Vinyl SidingWood Siding
Roofing Type
Gable
Roofing Material
Asphalt Shingles
Roof Pitch
12/12
Ceiling Height
8 Foot Ceiling
Special Feature
Dining RoomMud RoomFamily RoomColor PhotosStorageOpen Floor PlanInterior Photos
Garage Type
Attached GarageFront Entry
Exterior Wall Framing
2x6
Kitchen Features
Kitchen IslandWalk-in Pantry
Porches and Exterior Features
Covered Front PorchCovered Rear Porch
Master Suite Features
Master BathroomWalk In ClosetSecond Floor MasterSplit Master Bedroom

What’s Included

Most plan sets include the following:

icon text-secondary-400 includedExterior elevations

icon text-secondary-400 includedFoundation plan

icon text-secondary-400 includedMain floor plan

icon text-secondary-400 includedUpper floor plan (if applicable)

icon text-secondary-400 includedRoof plan

icon text-secondary-400 includedTruss diagrams & building sections

icon text-secondary-400 includedConstruction details

icon text-secondary-400 includedTypical wall section

What’s Not Included

These items are  NOT included:

icon text-secondary-400 includedArchitectural or Engineering Stamp - handled locally if required.

icon text-secondary-400 includedSite Plan - handled locally when required.

icon text-secondary-400 includedNo Electrical

icon text-secondary-400 includedMechanical Drawings (location of heating and air equipment and ductwork) - your subcontractors handle this.

icon text-secondary-400 includedPlumbing Drawings (drawings showing the actual plumbing pipe sizes and locations) - your subcontractors handle this.

icon text-secondary-400 includedEnergy calculations - handled locally when required.

Related House Plans

Plan Collection
Plan Collection
Plan Collection
Plan#126-1297
Starting at$1715
2257
Sq Ft
2
Story
3
Bed
2.5
Bath
2
Car
Plan Collection
Plan Collection
Plan Collection
Plan#198-1006
Starting at$2395
2587
Sq Ft
2
Story
3
Bed
2.5
Bath
3
Car
Plan Collection
Plan Collection
Plan Collection
Plan#117-1030
Starting at$1095
2112
Sq Ft
2
Story
3
Bed
2.5
Bath
2
Car
View All

Other Plans By This Designer

Plan Collection
Plan Collection
Plan Collection
Plan#126-1856
Starting at$1180
943
Sq Ft
2
Story
3
Bed
2
Bath
0
Car
Plan Collection
Plan Collection
Plan Collection
Plan#126-1325
Starting at$3065
7624
Sq Ft
3
Story
16
Bed
8
Bath
0
Car
Plan Collection
Plan Collection
Plan Collection
Plan#126-1855
Starting at$1125
700
Sq Ft
1
Story
2
Bed
1
Bath
0
Car