3-Bedroom, 2291 Sq Ft Historic Plan with Nook/Breakfast Area

Front elevation of Historic home (ThePlanCollection: House Plan #137-1187)

Images/Plans copyrighted by designer. Photos may reflect homeowner modifications.

About House Plan #137-1187

Sq Ft
2291
Sq Ft
Bedrooms
3
Bedrooms
Bathroom
2
Baths
Half Baths
1
Half Baths
Bedrooms
0
Cars
Bedrooms
2
Stories
Bedrooms
48' 0'
Width
Bedrooms
51
Depth
Starting at$905.00What's included
STEP 1Bedrooms
STEP 2Bedrooms
STEP 3Bedrooms

Subtotal:$0
Plan Collection

How much will it cost to build?

Estimate your costs based on your location and materials.

Free Cost Instant Estimator

Floor Plans

MAIN FLOOR PLAN
MAIN FLOOR PLAN
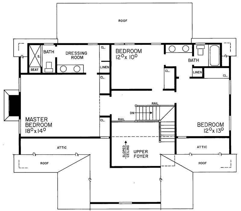
SECOND FLOOR PLAN
SECOND FLOOR PLAN
Plan Collection

Can I modify this plan?

Yes! This plan can be customized—contact us for a free quote.

Additional Notes from Designer

Plans from this designer could take up to 14 days to fulfill, regardless of the plan package that was ordered. Please Note: The plans by this designer DO NOT include electrical plans or electrical layout plans. PLEASE NOTE: For this designer, if you are ordering a CAD, the wait time could be 2-3 weeks, depending on the plan. If you need it sooner, please contact us to find out the wait time. Thank you!

House Plan Description

This home is done beautifully in the NeoClassical/Greek Revival style. Including gramd porticos in the front and back and comfy living space upstairs.

Home Details

Summary
Plan #:137-1187
Starting at:$905.00
Floors:2
Bedrooms:3
Full Baths:2
Half Baths:1
Garage:
Square Footage
Heated Area:2291 Sq. Ft.
First Floor:1344 Sq. Ft.
Second Floor:947 Sq. Ft.
Unheated Area:
Dimensions
Depth:51' 4''
Ridge Height:27' 0''
Architectural Styles
Exterior Wall Material
Aluminum SidingVinyl SidingWood Siding
Roof Pitch
9/12
Fireplaces
One Fireplace
Exterior Wall Framing
2x4

What’s Included

Most plan sets include the following:

icon text-secondary-400 includedAll 4 elevations

icon text-secondary-400 includedFloor plan

icon text-secondary-400 includedFoundation plan

icon text-secondary-400 includedSections

icon text-secondary-400 includedInterior elevations

icon text-secondary-400 includedDetail page

What’s Not Included

These items are  NOT included:

icon text-secondary-400 includedArchitectural or Engineering Stamp - handled locally if required.

icon text-secondary-400 includedSite Plan - handled locally when required.

icon text-secondary-400 includedMechanical Drawings (location of heating and air equipment and ductwork) - your subcontractors handle this.

icon text-secondary-400 includedPlumbing Drawings (drawings showing the actual plumbing pipe sizes and locations) - your subcontractors handle this.

icon text-secondary-400 includedEnergy calculations - handled locally when required.

Related House Plans

Plan Collection
Plan Collection
Plan Collection
Plan#126-1297
Starting at$1715
2257
Sq Ft
2
Story
3
Bed
2.5
Bath
2
Car
Plan Collection
Plan Collection
Plan Collection
Plan#198-1006
Starting at$2395
2587
Sq Ft
2
Story
3
Bed
2.5
Bath
3
Car
Plan Collection
Plan Collection
Plan Collection
Plan#117-1030
Starting at$1095
2112
Sq Ft
2
Story
3
Bed
2.5
Bath
2
Car
View All

Other Plans By This Designer

Plan Collection
Plan Collection
Plan Collection
Plan#137-1476
Starting at$1440
5224
Sq Ft
3
Story
4
Bed
4.5
Bath
4
Car
Plan Collection
Plan Collection
Plan Collection
Plan#137-1375
Starting at$960
3833
Sq Ft
2
Story
3
Bed
3.5
Bath
2
Car
Plan Collection
Plan Collection
Plan Collection
Plan#137-1826
Starting at$600
1476
Sq Ft
1
Story
3
Bed
2
Bath
0
Car