4-Bedroom, 2226 Sq Ft Modern Farmhouse Plan with Dining Room

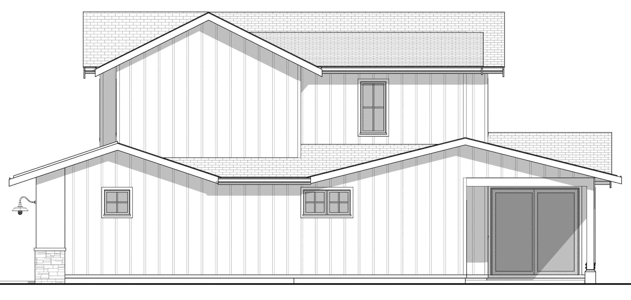
Front elevation of Modern Farmhouse home (ThePlanCollection: House Plan #211-1082)

Images/Plans copyrighted by designer. Photos may reflect homeowner modifications.

About House Plan #211-1082

Sq Ft
2226
Sq Ft
Bedrooms
4
Bedrooms
Bathroom
2
Baths
Half Baths
1
Half Baths
Bedrooms
2
Cars
Bedrooms
2
Stories
Bedrooms
44' 0'
Width
Bedrooms
52
Depth
Starting at$1000.00What's included
STEP 1Bedrooms
STEP 2Bedrooms
STEP 3Bedrooms

Subtotal:$0
Plan Collection

How much will it cost to build?

Estimate your costs based on your location and materials.

Free Cost Instant Estimator

Floor Plans

Floor Plan First Story
Floor Plan First Story
Floor Plan Second Story
Floor Plan Second Story
Basement
Basement
Plan Collection

Can I modify this plan?

Yes! This plan can be customized—contact us for a free quote.

Additional Notes from Designer

When ordering RRR, please know that it could take an additional 3-5 business days to complete BEFORE your order is sent out, regardless of the package ordered. Some of the plans with a RRR will requite drafting and for these specific plans, they will be available and completed March 20th, 2023

Note: Porch sq ft figures may include any deck sq ft as well.

House Plan Description

Imbued with the charm ot its timeless Modern Farmhouse elements, this Craftsman style home encompasses 2,226 square feet and features 4 bedrooms, 2.5 baths, and a 2-car garage. Furthermore, it presents a delightful blend of features, representing refinement in every way:

  • Living Room, Den, Guest Room
  • Kitchen with Walk-in Pantry
  • Master Bedroom with Walk-in Closet, Master Bathroom
  • Open Floor Plan, Vaulted Ceiling

Home Details

Summary
Plan #:211-1082
Starting at:$1000.00
Floors:2
Bedrooms:4
Full Baths:2
Half Baths:1
Garage:
Square Footage
Heated Area:2226 Sq. Ft.
First Floor:1323 Sq. Ft.
Second Floor:903 Sq. Ft.
Unheated Area:
Garage:497 Sq. Ft.
Porch:369 Sq. Ft.
Dimensions
Architectural Styles
Exterior Wall Material
BrickStucco
Roofing Type
Gable
Roofing Material
Asphalt ShinglesMetal
Roof Pitch
3/126/128/12
Ceiling Height
9 Foot Ceiling
Special Feature
FireplaceDining RoomGuest RoomMud RoomFamily RoomMain Level LaundryStorageDenVaulted CeilingsOpen Floor Plan
Garage Type
Attached GarageFront Entry
Fireplaces
One Fireplace
Exterior Wall Framing
2x6
Building Lot Type
Flat SiteNarrow Lot Design
Kitchen Features
Kitchen IslandWalk-in Pantry
Porches and Exterior Features
Covered Front PorchCovered Rear Patio
Master Suite Features
Master BathroomWalk In ClosetSecond Floor MasterSplit Master Bedroom

What’s Included

Most plan sets include the following:

icon text-secondary-400 includedFillable site plan, rendering, and general notations page

icon text-secondary-400 includedFloor plans

icon text-secondary-400 includedFoundation plan

icon text-secondary-400 includedRoof plan

icon text-secondary-400 includedElevations

icon text-secondary-400 includedminimum of 2 sections + 1 typical wall section

icon text-secondary-400 includedElectrical plan

What’s Not Included

These items are  NOT included:

icon text-secondary-400 includedArchitectural or Engineering Stamp - handled locally if required.

icon text-secondary-400 includedSite Plan - handled locally when required.

icon text-secondary-400 includedMechanical Drawings (location of heating and air equipment and ductwork) - your subcontractors handle this.

icon text-secondary-400 includedPlumbing Drawings (drawings showing the actual plumbing pipe sizes and locations) - your subcontractors handle this.

icon text-secondary-400 includedEnergy Calculations - handled locally when required.

icon text-secondary-400 includedNo Framing

Related House Plans

Plan Collection
Plan Collection
Plan Collection
Plan#169-1035
Starting at$720
2482
Sq Ft
2
Story
4
Bed
2.5
Bath
3
Car
Plan Collection
Plan Collection
Plan Collection
Plan#163-1001
Starting at$1230
2757
Sq Ft
2
Story
4
Bed
2.5
Bath
2
Car
Plan Collection
Plan Collection
Plan Collection
Plan#178-1080
Starting at$1005
1980
Sq Ft
2
Story
4
Bed
2.5
Bath
2
Car
View All

Other Plans By This Designer

Plan Collection
Plan Collection
Plan Collection
Plan#211-1001
Starting at$850
967
Sq Ft
1
Story
3
Bed
2
Bath
0
Car
Plan Collection
Plan Collection
Plan Collection
Plan#211-1053
Starting at$950
1626
Sq Ft
1
Story
3
Bed
2.5
Bath
2
Car
Plan Collection
Plan Collection
Plan Collection
Plan#211-1038
Starting at$900
1543
Sq Ft
1
Story
3
Bed
2
Bath
2
Car