3-Bed, 2191 Sq Ft Modern Farmhouse with His & Her Closets

Modern Farmhouse home design (ThePlanCollection: Plan #193-1209)

Images/Plans copyrighted by designer. Photos may reflect homeowner modifications.

About House Plan #193-1209

Sq Ft
2191
Sq Ft
Bedrooms
3
Bedrooms
Bathroom
2
Baths
Half Baths
2
Half Baths
Bedrooms
2
Cars
Bedrooms
1
Stories
Bedrooms
81' 4'
Width
Bedrooms
67
Depth
Starting at$1100.00What's included
STEP 1Bedrooms
STEP 2Bedrooms
STEP 3Bedrooms

Subtotal:$0
Plan Collection

How much will it cost to build?

Estimate your costs based on your location and materials.

Free Cost Instant Estimator

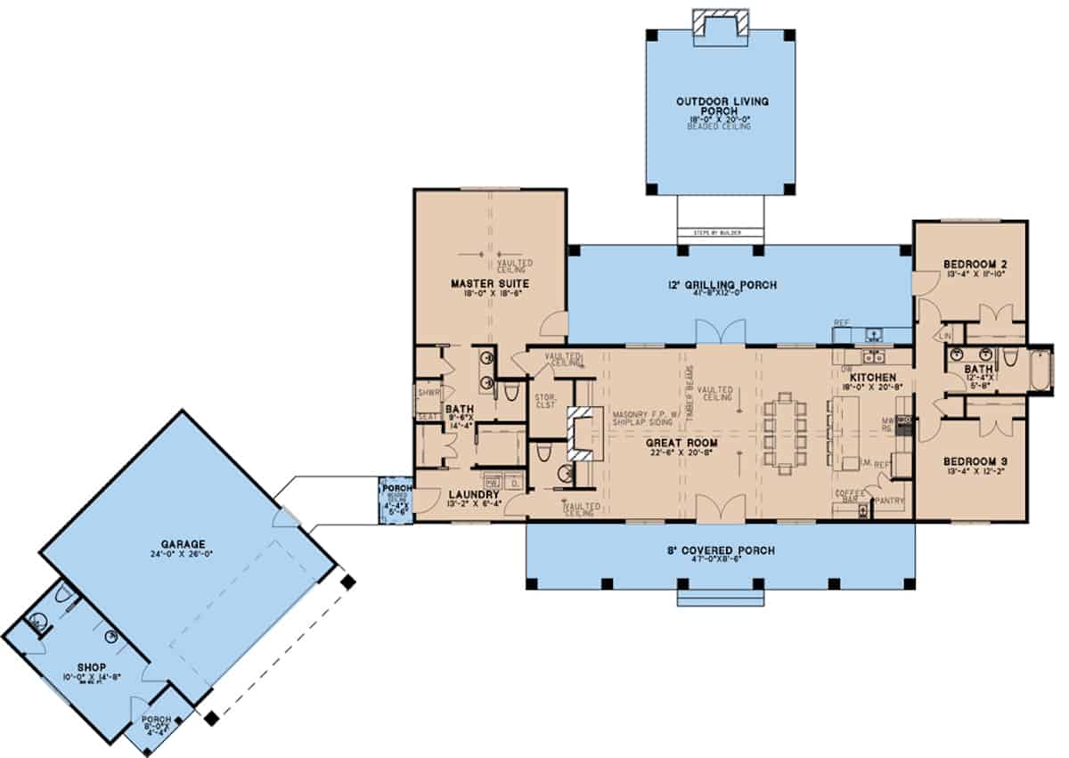
Floor Plans

Main Level
Main Level
Plan Collection

Can I modify this plan?

Yes! This plan can be customized—contact us for a free quote.

Additional Notes from Designer

For this designer, if you choose optional features such as but not limited to: 2x6 exterior walls, reverse or optional basement, the designer will need an additional 2-5 business days to adjust the plan accordingly. Please keep this in mind when choosing your shipping option. if you would like Express or Priority shipping, the designer will ship the plan to you using the method you choose but you will still have the 2-5 business day waiting period BEFORE they ship! This designer does not offer Framing. Please feel free to contact us with any questions!

Total covered square footage: 4332 square feet

House Plan Description

Welcome home to this remarkably designed Ranch with a Modern Farmhouse vibe and lovely front porch. Lots of living space makes this home the perfect place for relaxing and entertaining. The house covers a total heated and cooled area of 2191 square feet and includes these great features:

• Walk-in kitchen pantry
• Spacious walk-in closets
• Fireplace in the Great Room
• Capacious laundry room / mud room
• His and her walk-in closets in the master bedroom suite

Home Details

Summary
Plan #:193-1209
Starting at:$1100.00
Floors:1
Bedrooms:3
Full Baths:2
Half Baths:2
Garage:
Square Footage
Heated Area:2191 Sq. Ft.
First Floor:2191 Sq. Ft.
Unheated Area:
Bonus Room:193 Sq. Ft.
Garage:658 Sq. Ft.
Porch:1290 Sq. Ft.
Dimensions
Width:81' 4''
Depth:67' 8''
Architectural Styles
Exterior Wall Material
Vinyl SidingWood Siding
Roofing Type
GableDutch Gable
Roofing Material
Metal
Roof Pitch
8/12
Ceiling Height
9 Foot Ceiling
Special Feature
FireplaceMud RoomBonus RoomFamily RoomMain Level LaundrySplit BathroomStorageVaulted CeilingsWorkshopOpen Floor PlanL-Shaped
Garage Type
Detached GarageCourtyard Entry
Fireplaces
One Fireplace
Exterior Wall Framing
2x4
Kitchen Features
Kitchen IslandWalk-in PantryPeninsula/Eating Bar
Porches and Exterior Features
Covered Front PorchCovered Rear Porch
Master Suite Features
Main Floor MasterMaster BathroomWalk In ClosetSplit Master Bedroom

What’s Included

Most plan sets include the following:

icon text-secondary-400 included Each plan set includes the following:

icon text-secondary-400 included floorplan

icon text-secondary-400 included 4 side exterior elevations,

icon text-secondary-400 included electrical plan,

icon text-secondary-400 included birds-eye view of the roof,

icon text-secondary-400 included foundation plan,

icon text-secondary-400 included and some miscellaneous details. Please Note We do not offer framing, plumbing, HVAC, or window scheduling. This will have to be done on a local level, probably by your building team!

What’s Not Included

These items are  NOT included:

icon text-secondary-400 includedArchitectural or Engineering Stamp - handled locally if required.

icon text-secondary-400 includedSite Plan - handled locally when required.

icon text-secondary-400 includedMechanical Drawings (location of heating and air equipment and ductwork) - your subcontractors handle this.

icon text-secondary-400 includedPlumbing Drawings (drawings showing the actual plumbing pipe sizes and locations) - your subcontractors handle this.

icon text-secondary-400 includedEnergy calculations - handled locally when required.

icon text-secondary-400 includedNo Framing

Related House Plans

Plan Collection
Plan Collection
Plan Collection
Plan#142-1168
Starting at$1395
2597
Sq Ft
1
Story
3
Bed
2.5
Bath
2
Car
Plan Collection
Plan Collection
Plan Collection
Plan#117-1092
Starting at$1095
2091
Sq Ft
1
Story
3
Bed
2.5
Bath
2
Car
Plan Collection
Plan Collection
Plan Collection
Plan#106-1276
Starting at$1295
2344
Sq Ft
1
Story
3
Bed
2.5
Bath
2
Car
View All

Other Plans By This Designer

Plan Collection
Plan Collection
Plan Collection
Plan#193-1108
Starting at$1350
1905
Sq Ft
1.5
Story
3
Bed
2
Bath
0
Car
Plan Collection
Plan Collection
Plan Collection
Plan#193-1179
Starting at$1000
2006
Sq Ft
1.5
Story
3
Bed
2.5
Bath
2
Car
Plan Collection
Plan Collection
Plan Collection
Plan#193-1145
Starting at$1200
1897
Sq Ft
1
Story
4
Bed
2.5
Bath
3
Car