3-Bedroom, 2180 Sq Ft Modern Farmhouse with Mudroom

Front elevation of Modern Farmhouse home (ThePlanCollection: House Plan #163-1115)

Images/Plans copyrighted by designer. Photos may reflect homeowner modifications.

About House Plan #163-1115

Sq Ft
2180
Sq Ft
Bedrooms
3
Bedrooms
Bathroom
2
Baths
Half Baths
0
Half Baths
Bedrooms
2
Cars
Bedrooms
1.5
Stories
Bedrooms
82' 4'
Width
Bedrooms
56
Depth
Starting at$1150.00What's included
STEP 1Bedrooms
STEP 2Bedrooms
STEP 3Bedrooms

Subtotal:$0
Plan Collection

How much will it cost to build?

Estimate your costs based on your location and materials.

Free Cost Instant Estimator

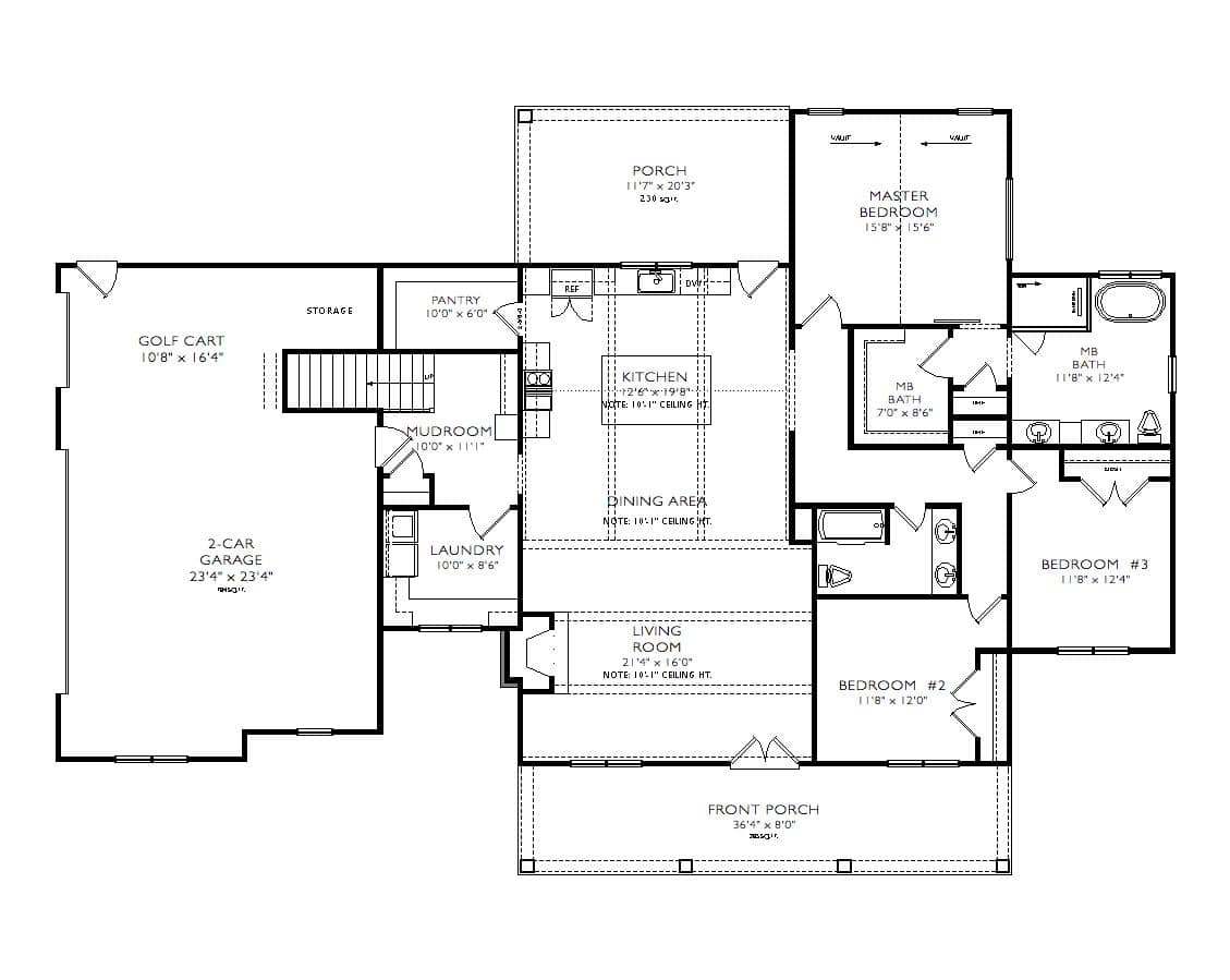
Floor Plans

Floor Plan First Story
Floor Plan First Story
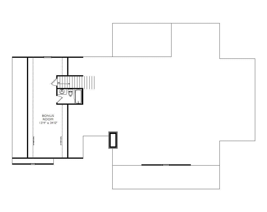
Bonus Room
Bonus Room
Plan Collection

Can I modify this plan?

Yes! This plan can be customized—contact us for a free quote.

Additional Notes from Designer

Please Note: There might be a 4-5 day delay in getting the sales orders out due to updates being made to the designer's plans.

NOTE: Porch sq ft figures may include any deck sq ft as well.

House Plan Description

This 2,180 square feet Modern Farmhouse home exudes a Ranch charm, featuring 3 bedrooms, 2 baths, and a 2-car garage. Notably, the property offers a host of fantastic amenities:

  • Mudroom, Living Room, Bonus Room
  • Kitchen with Walk-in Pantry
  • Master Bedroom with Walk-in Closet, Master Bathroom
  • Open Floor Plan, Vaulted Ceiling, Golf Cart Storage

Home Details

Summary
Plan #:163-1115
Starting at:$1150.00
Floors:1.5
Bedrooms:3
Full Baths:2
Half Baths:0
Garage:
Square Footage
Heated Area:2180 Sq. Ft.
First Floor:2180 Sq. Ft.
Unheated Area:
Second Floor:485 Sq. Ft.
Bonus Room:485 Sq. Ft.
Garage:784 Sq. Ft.
Porch:515 Sq. Ft.
Dimensions
Width:82' 4''
Depth:56' 4''
Architectural Styles
Exterior Wall Material
Vinyl SidingWood SidingLap Siding
Roofing Type
GableShed
Roofing Material
Asphalt ShinglesMetal
Roof Pitch
8/12
Ceiling Height
9 Foot Ceiling8 Foot Ceiling
Special Feature
FireplaceMud RoomBonus RoomFamily RoomMain Level LaundryStorageVaulted CeilingsGolf Cart StorageOpen Floor Plan
Garage Type
Attached GarageSide Entry
Fireplaces
One Fireplace
Exterior Wall Framing
2x4
Building Lot Type
Flat Site
Kitchen Features
Kitchen IslandWalk-in PantryEat-In Kitchen
Porches and Exterior Features
Covered Front PorchCovered Rear Porch
Master Suite Features
Main Floor MasterMaster BathroomWalk In Closet

What’s Included

Most plan sets include the following:

icon text-secondary-400 includedFLOOR PLAN: Showing all dimensions, window and door locations, laminated beams, columns, floor materials, ceiling heights, fireplace size, and specifications.

icon text-secondary-400 includedFOUNDATION PLAN: Dimensioned plan detailing the location and size of footings, slabs, reinforcing steel, and other structural elements that are required to support the load of the upper floors.

icon text-secondary-400 includedROOF PLAN: Dimensioned plan showing the elements that make up the roof, including notation of spacing and schematics of peaks and valleys.

icon text-secondary-400 includedFRONT, REAR, AND SIDE ELEVATIONS:The front, rear, and side elevations of the house as drawn. Shows placement of doors & windows on exterior of house, as well as roof pitches, ridge heights, and locations of chimney, exterior vents, etc. The elevations show the positioning of the final grade of the lot, exterior finishes, and other details that are necessary to give the home exterior architectural styling.

icon text-secondary-400 includedCROSS SECTIONS AND INTERIOR DETAILS:Explain certain special conditions more appropriately. A cross section is basically a view of the home (or parts of the home) if it were sliced down the center. These details can be helpful for the contractor.Includes cabinet details and typical details.

What’s Not Included

These items are  NOT included:

icon text-secondary-400 includedArchitectural or Engineering Stamp - handled locally if required.

icon text-secondary-400 includedSite Plan - handled locally when required.

icon text-secondary-400 includedElectrical Layout (location of light fixtures, switches, and fans)- Although may be available for an additional charge.

icon text-secondary-400 includedMechanical Drawings (location of heating and air equipment and ductwork) - your subcontractors handle this.

icon text-secondary-400 includedPlumbing Drawings (drawings showing the actual plumbing pipe sizes and locations) - your subcontractors handle this.

icon text-secondary-400 includedEnergy calculations - handled locally when required.

Related House Plans

Plan Collection
Plan Collection
Plan Collection
Plan#142-1180
Starting at$1345
2282
Sq Ft
1.5
Story
3
Bed
2.5
Bath
2
Car
Plan Collection
Plan Collection
Plan Collection
Plan#142-1166
Starting at$1395
2469
Sq Ft
1.5
Story
3
Bed
2
Bath
2
Car
Plan Collection
Plan Collection
Plan Collection
Plan#117-1107
Starting at$895
1848
Sq Ft
1.5
Story
3
Bed
2
Bath
2
Car
View All

Other Plans By This Designer

Plan Collection
Plan Collection
Plan Collection
Plan#163-1055
Starting at$1230
2618
Sq Ft
1
Story
5
Bed
4.5
Bath
3
Car
Plan Collection
Plan Collection
Plan Collection
Plan#163-1041
Starting at$600
906
Sq Ft
2
Story
1
Bed
1
Bath
2
Car
Plan Collection
Plan Collection
Plan Collection
Plan#163-1052
Starting at$1150
4225
Sq Ft
1
Story
5
Bed
4.5
Bath
3
Car