4-Bedroom, 2179 Sq Ft Contemporary Plan with Open Floor Plan

Contemporary home (ThePlanCollection: House Plan #204-1008)

Images/Plans copyrighted by designer. Photos may reflect homeowner modifications.

About House Plan #204-1008

Sq Ft
2179
Sq Ft
Bedrooms
4
Bedrooms
Bathroom
3
Baths
Half Baths
0
Half Baths
Bedrooms
2
Cars
Bedrooms
1.5
Stories
Bedrooms
44' 7'
Width
Bedrooms
70
Depth
Starting at$1255.00What's included
STEP 1Bedrooms
STEP 2Bedrooms
STEP 3Bedrooms

Subtotal:$0
Plan Collection

How much will it cost to build?

Estimate your costs based on your location and materials.

Free Cost Instant Estimator

Floor Plans

Floor Plan Main Level
Floor Plan Main Level
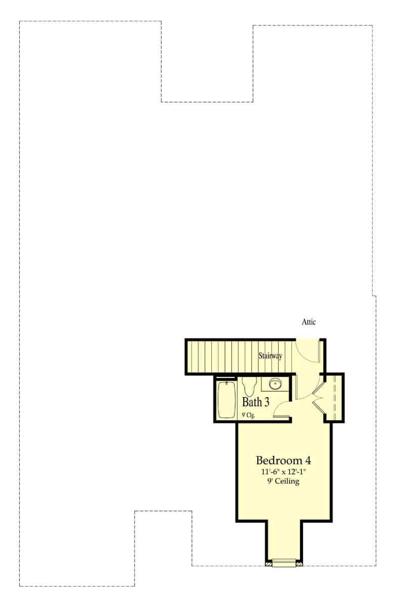
Floor Plan Upper Level
Floor Plan Upper Level
Plan Collection

Can I modify this plan?

Yes! This plan can be customized—contact us for a free quote.

Additional Notes from Designer

Please Note: The house plans by this designer do NOT include framing plans.

House Plan Description

If you are into modestly large open spaces, this Contemporary style home may be perfect for you and your family with a total heated-cooled area of 2179 square feet. Plus, the home boasts a covered outdoor living space at the rear of the floor plan where loved ones and guests can enjoy the warmth and comfort of the fireplace at the corner. The house provides a 591-square-foot 2-car garage with storage under the stairs at the rear.

Home Details

Summary
Plan #:204-1008
Starting at:$1255.00
Floors:1.5
Bedrooms:4
Full Baths:3
Half Baths:0
Garage:
Square Footage
Heated Area:2179 Sq. Ft.
First Floor:1825 Sq. Ft.
Second Floor:354 Sq. Ft.
Unheated Area:
Garage:591 Sq. Ft.
Porch:427 Sq. Ft.
Dimensions
Width:44' 7''
Depth:70' 8''
Architectural Styles
Exterior Wall Material
BrickStucco
Roofing Type
HipDutch Gable
Roofing Material
Asphalt ShinglesMetal
Roof Pitch
9/12
Ceiling Height
10 Foot Ceiling9 Foot Ceiling11 Foot Ceiling
Special Feature
FireplaceFamily RoomMain Level LaundryColor PhotosSplit BathroomStorageOpen Floor PlanInterior Photos
Garage Type
Attached GarageFront Entry
Fireplaces
One Fireplace
Exterior Wall Framing
2x4
Building Lot Type
Narrow Lot Design
Kitchen Features
Kitchen IslandWalk-in PantryPeninsula/Eating Bar
Porches and Exterior Features
Covered Front PorchCovered Rear Porch
Master Suite Features
Main Floor MasterMaster BathroomWalk In ClosetSplit Master Bedroom

What’s Included

Most plan sets include the following:

icon text-secondary-400 includedExterior Elevations

icon text-secondary-400 includedRoof Plan

icon text-secondary-400 includedFloor Plan

icon text-secondary-400 includedFoundation Plan

icon text-secondary-400 includedCabinet Elevations

icon text-secondary-400 includedRoom Schedule

icon text-secondary-400 includedWindow Schedule

icon text-secondary-400 includedDoor Schedule

icon text-secondary-400 includedElectrical Plan

icon text-secondary-400 includedWall Sections

icon text-secondary-400 includedGeneral Notes

What’s Not Included

These items are  NOT included:

icon text-secondary-400 includedArchitectural or Engineering Stamp - handled locally if required.

icon text-secondary-400 includedSite Plan - handled locally when required.

icon text-secondary-400 includedMechanical Drawings (location of heating and air equipment and ductwork) - your subcontractors handle this.

icon text-secondary-400 includedPlumbing Drawings (drawings showing the actual plumbing pipe sizes and locations) - your subcontractors handle this.

icon text-secondary-400 includedEnergy calculations - handled locally when required.

Related House Plans

Plan Collection
Plan Collection
Plan Collection
Plan#142-1231
Starting at$1345
2390
Sq Ft
1.5
Story
4
Bed
3
Bath
2
Car
Plan Collection
Plan Collection
Plan Collection
Plan#142-1101
Starting at$1395
2506
Sq Ft
1.5
Story
4
Bed
3.5
Bath
2
Car
Plan Collection
Plan Collection
Plan Collection
Plan#116-1104
Starting at$0
2490
Sq Ft
1.5
Story
4
Bed
3
Bath
0
Car
View All

Other Plans By This Designer

Plan Collection
Plan Collection
Plan Collection
Plan#204-1020
Starting at$1895
4443
Sq Ft
1.5
Story
4
Bed
5
Bath
3
Car
Plan Collection
Plan Collection
Plan Collection
Plan#204-1033
Starting at$1495
2676
Sq Ft
1
Story
4
Bed
3.5
Bath
3
Car
Plan Collection
Plan Collection
Plan Collection
Plan#204-1002
Starting at$1155
1793
Sq Ft
1
Story
4
Bed
2
Bath
2
Car