3-Bedroom, 2174 Sq Ft Ranch Plan with Walk-in Pantry

Ranch style house (ThePlanCollection: Plan #196-1262)

Images/Plans copyrighted by designer. Photos may reflect homeowner modifications.

About House Plan #196-1262

Sq Ft
2174
Sq Ft
Bedrooms
3
Bedrooms
Bathroom
2
Baths
Half Baths
1
Half Baths
Bedrooms
2
Cars
Bedrooms
1
Stories
Bedrooms
52' 10'
Width
Bedrooms
71
Depth
Starting at$1325.00What's included
STEP 1Bedrooms
STEP 2Bedrooms
STEP 3Bedrooms

Subtotal:$0
Plan Collection

How much will it cost to build?

Estimate your costs based on your location and materials.

Free Cost Instant Estimator

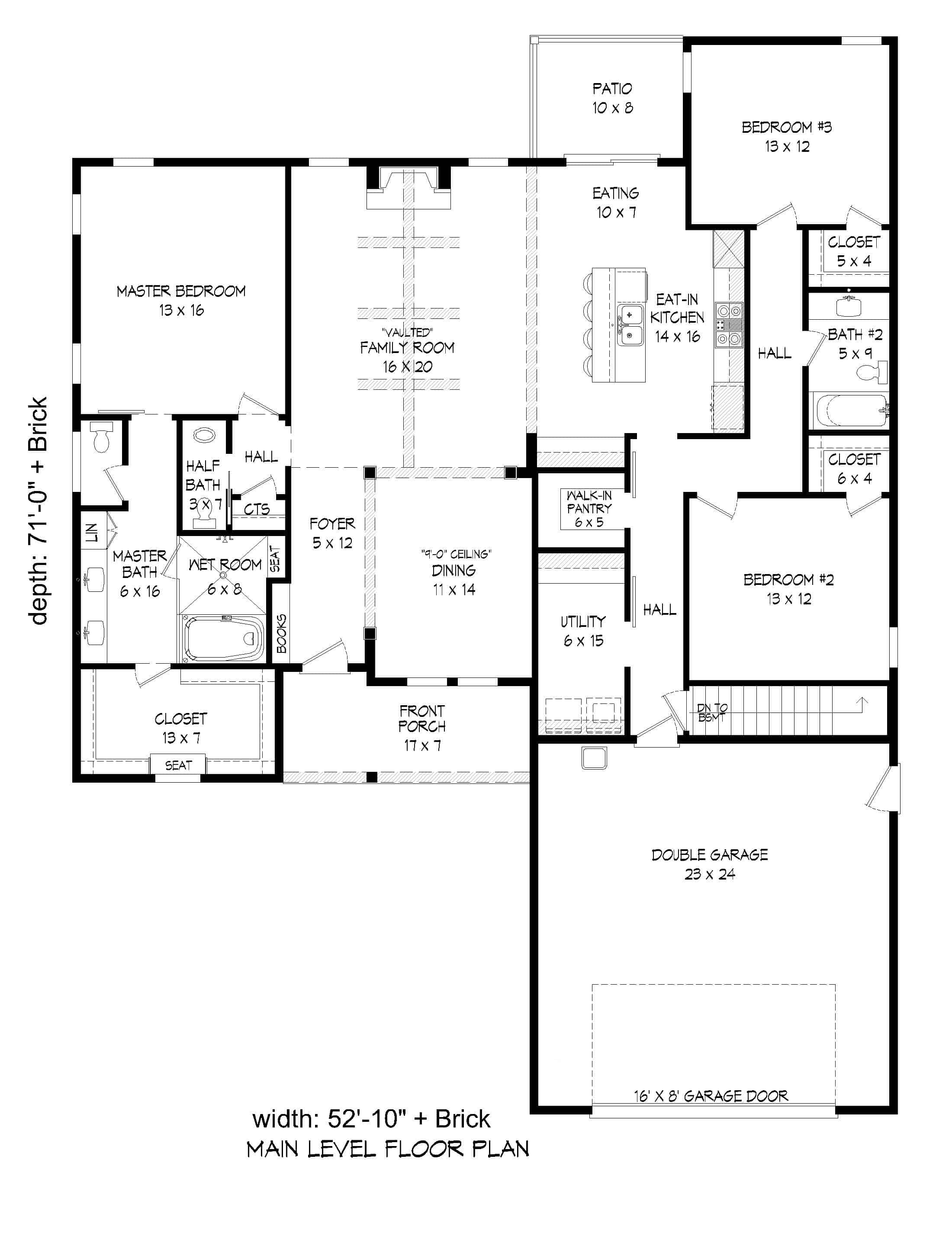
Floor Plans

Floor Plan First Story
Floor Plan First Story
Plan Collection

Can I modify this plan?

Yes! This plan can be customized—contact us for a free quote.

Additional Notes from Designer

NOTE FROM DESIGNER REGARDING PLAN PURCHASES: 80% of a 5 set purchase price can be applied to any PDF or CAD license upgrade. Additionally, 80% of PDF Study purchase price can be applied to any CAD or PDF license upgrade.

House Plan Description

The cozy covered front porch will welcome you as you step up this understated Ranch house with Bungalow style undertones. With its spacious rooms and wonderful amenities – like a walk-in closet for every bedroom, walk-in kitchen pantry, and vaulted family room – this house is sure to please all members of the family. The endearing home's 1-story home has 2174 square feet of fully conditioned living space and includes 3 bedrooms.

Home Details

Summary
Plan #:196-1262
Starting at:$1325.00
Floors:1
Bedrooms:3
Full Baths:2
Half Baths:1
Garage:
Square Footage
Heated Area:2174 Sq. Ft.
First Floor:2174 Sq. Ft.
Unheated Area:
Basement:2174 Sq. Ft.
Garage:590 Sq. Ft.
Porch:189 Sq. Ft.
Dimensions
Width:52' 10''
Architectural Styles
Exterior Wall Material
Vinyl SidingWood Siding
Roofing Type
GableHipHalf Hip
Roofing Material
Asphalt Shingles
Roof Pitch
4/128/12
Ceiling Height
9 Foot Ceiling
Special Feature
FireplaceMud RoomFamily RoomSplit BathroomStorageVaulted CeilingsOpen Floor PlanL-Shaped
Garage Type
Attached GarageFront Entry
Fireplaces
One Fireplace
Exterior Wall Framing
2x6
Kitchen Features
Kitchen IslandNook/Breakfast AreaWalk-in PantryPeninsula/Eating BarEat-In Kitchen
Porches and Exterior Features
Covered Front PorchPatio
Master Suite Features
Main Floor MasterMaster BathroomWalk In ClosetSplit Master Bedroom

What’s Included

Most plan sets include the following:

What’s Not Included

These items are  NOT included:

Related House Plans

Plan Collection
Plan Collection
Plan Collection
Plan#142-1168
Starting at$1395
2597
Sq Ft
1
Story
3
Bed
2.5
Bath
2
Car
Plan Collection
Plan Collection
Plan Collection
Plan#117-1092
Starting at$1095
2091
Sq Ft
1
Story
3
Bed
2.5
Bath
2
Car
Plan Collection
Plan Collection
Plan Collection
Plan#106-1276
Starting at$1295
2344
Sq Ft
1
Story
3
Bed
2.5
Bath
2
Car
View All

Other Plans By This Designer

Plan Collection
Plan Collection
Plan Collection
Plan#196-1211
Starting at$695
650
Sq Ft
2
Story
1
Bed
1
Bath
2
Car
Plan Collection
Plan Collection
Plan Collection
Plan#196-1196
Starting at$810
1500
Sq Ft
1
Story
2
Bed
2
Bath
3
Car
Plan Collection
Plan Collection
Plan Collection
Plan#196-1216
Starting at$845
1727
Sq Ft
2
Story
2
Bed
2
Bath
2
Car