3-Bedroom, 2172 Sq Ft Farmhouse Plan with Walk-in Pantry

Front elevation of Farmhouse home (ThePlanCollection: House Plan #189-1163)

Images/Plans copyrighted by designer. Photos may reflect homeowner modifications.

About House Plan #189-1163

Sq Ft
2172
Sq Ft
Bedrooms
3
Bedrooms
Bathroom
2
Baths
Half Baths
1
Half Baths
Bedrooms
2
Cars
Bedrooms
1
Stories
Bedrooms
63' 0'
Width
Bedrooms
72
Depth
Starting at$1595.00What's included
STEP 1Bedrooms
STEP 2Bedrooms
STEP 3Bedrooms

Subtotal:$0
Plan Collection

How much will it cost to build?

Estimate your costs based on your location and materials.

Free Cost Instant Estimator

Floor Plans

Floor Plan First Story
Floor Plan First Story
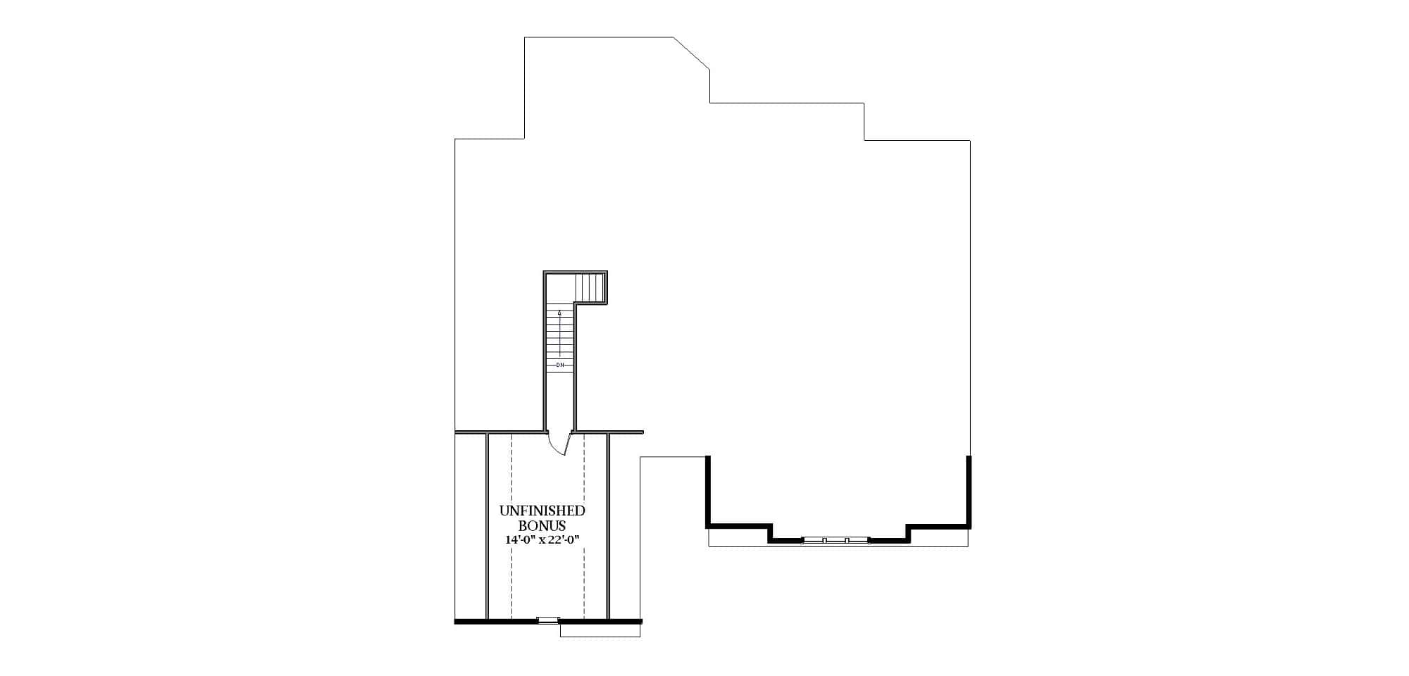
Bonus Room
Bonus Room
Plan Collection

Can I modify this plan?

Yes! This plan can be customized—contact us for a free quote.

Additional Notes from Designer

Please Note: CAD Files for this plan typically take 2-3 additional business days to prepare. PLEASE NOTE: Some options (different foundations, RRR, etc.) may take an additional 2-3 business days to prepare! Please keep this in mind regarding shipping when ordering. Thank you!

NOTE: Porch sq ft figures may include any deck sq ft as well.

PLEASE NOTE: This plan is a concept plan and will need an additional 20-25 business to complete BEFORE being shipped out, regardless of the plan package you purchased. Please keep this in mind when ordering!

House Plan Description

Radiating with charming Farmhouse attributes, this Country style beauty sprawls across 2,172 square feet, presenting 3 bedrooms, 2.5 baths, and a 2-car garage. What's more, it comes with a wonderful variety of added features:

  • Great Room, Dining Room, Kitchen with Walk-in Pantry
  • Master Bedroom with Walk-in Closet, Master Bathroom

Home Details

Summary
Plan #:189-1163
Starting at:$1595.00
Floors:1
Bedrooms:3
Full Baths:2
Half Baths:1
Garage:
Square Footage
Heated Area:2172 Sq. Ft.
First Floor:2172 Sq. Ft.
Unheated Area:
Bonus Room:335 Sq. Ft.
Garage:543 Sq. Ft.
Porch:710 Sq. Ft.
Dimensions
Architectural Styles
Exterior Wall Material
Wood SidingLap Siding
Roofing Type
Gable/DormerShed
Roofing Material
Metal
Ceiling Height
9 Foot Ceiling8 Foot Ceiling
Special Feature
FireplaceDining RoomMud RoomBonus RoomFamily RoomMain Level LaundryColor PhotosStorageOpen Floor Plan
Garage Type
Attached GarageFront Entry
Fireplaces
One Fireplace
Exterior Wall Framing
2x6
Building Lot Type
Flat Site
Kitchen Features
Kitchen IslandWalk-in Pantry
Porches and Exterior Features
Covered Front PorchSundeckScreened Porch/Sunroom
Master Suite Features
Main Floor MasterMaster BathroomWalk In ClosetSecond Floor MasterSplit Master Bedroom

What’s Included

Most plan sets include the following:

icon text-secondary-400 includedFoundation Detail

icon text-secondary-400 includedFloor plans

icon text-secondary-400 includedExterior Elevations

icon text-secondary-400 includedCross-section elevations

icon text-secondary-400 includedInterior elevations

icon text-secondary-400 includedArial view

icon text-secondary-400 includedColor rendering of the front elevation

icon text-secondary-400 includedRoof plan

icon text-secondary-400 includedRoof Framing

icon text-secondary-400 includedCeiling Framing

icon text-secondary-400 includedFloor Framing

icon text-secondary-400 includedElectrical Layout

icon text-secondary-400 includedNotes and Details

What’s Not Included

These items are  NOT included:

icon text-secondary-400 includedArchitectural or Engineering Stamp - handled locally if required.

icon text-secondary-400 includedSite Plan - handled locally when required.

icon text-secondary-400 includedMechanical Drawings (location of heating and air equipment and ductwork) - your subcontractors handle this.

icon text-secondary-400 includedPlumbing Drawings (drawings showing the actual plumbing pipe sizes and locations) - your subcontractors handle this.

icon text-secondary-400 includedEnergy calculations - handled locally when required.

Related House Plans

Plan Collection
Plan Collection
Plan Collection
Plan#142-1168
Starting at$1395
2597
Sq Ft
1
Story
3
Bed
2.5
Bath
2
Car
Plan Collection
Plan Collection
Plan Collection
Plan#117-1092
Starting at$1095
2091
Sq Ft
1
Story
3
Bed
2.5
Bath
2
Car
Plan Collection
Plan Collection
Plan Collection
Plan#106-1276
Starting at$1295
2344
Sq Ft
1
Story
3
Bed
2.5
Bath
2
Car
View All

Other Plans By This Designer

Plan Collection
Plan Collection
Plan Collection
Plan#189-1118
Starting at$1595
2737
Sq Ft
2
Story
4
Bed
3
Bath
2
Car
Plan Collection
Plan Collection
Plan Collection
Plan#189-1013
Starting at$1595
3263
Sq Ft
2
Story
5
Bed
3.5
Bath
2
Car
Plan Collection
Plan Collection
Plan Collection
Plan#189-1135
Starting at$1595
2954
Sq Ft
1
Story
3
Bed
3
Bath
3
Car