3-Bedroom, 2167 Sq Ft Ranch Plan with Fireplace

Ranch house (ThePlanCollection: Plan #192-1063)

Images/Plans copyrighted by designer. Photos may reflect homeowner modifications.

About House Plan #192-1063

Sq Ft
2167
Sq Ft
Bedrooms
3
Bedrooms
Bathroom
2
Baths
Half Baths
0
Half Baths
Bedrooms
2
Cars
Bedrooms
1
Stories
Bedrooms
64' 0'
Width
Bedrooms
64
Depth
Starting at$600.00What's included
STEP 1Bedrooms
STEP 2Bedrooms
STEP 3Bedrooms

Subtotal:$0
Plan Collection

How much will it cost to build?

Estimate your costs based on your location and materials.

Free Cost Instant Estimator

Floor Plans

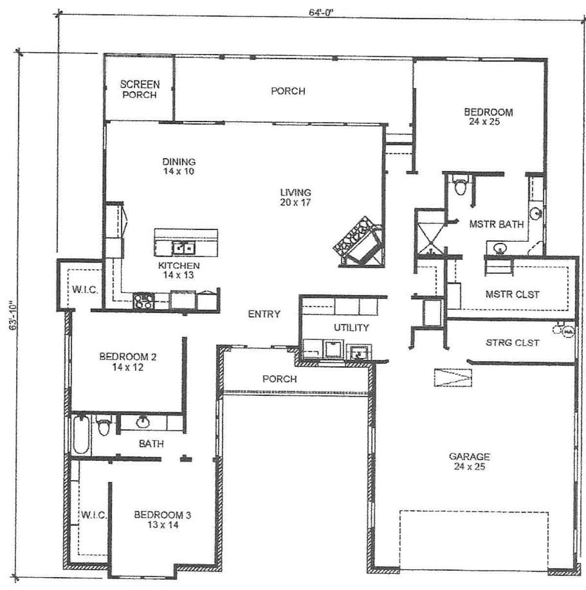
Floor Plan Main Level
Floor Plan Main Level
Plan Collection

Can I modify this plan?

Yes! This plan can be customized—contact us for a free quote.

Additional Notes from Designer

Please Note: The Reproducible Master for this plan is sent to you on bond paper that reproduces well.

House Plan Description

The charming secluded covered front porch creates an inviting entry to this Ranch home in the Contemporary style. The house has 2167 square feet total heated and cooled area that maximizes every available square foot of space. Each of the three bedrooms has a walk-in closet, so there's lots of storage space, and the high ceilings – 10 feet high minimum, with a 15-foot ceiling in the living room and vaulted ceiling in the master bedroom – means the house seems much bigger than it really is. Other amenities include a covered rear porch –...

Home Details

Summary
Plan #:192-1063
Starting at:$600.00
Floors:1
Bedrooms:3
Full Baths:2
Half Baths:0
Garage:
Square Footage
Heated Area:2167 Sq. Ft.
First Floor:2167 Sq. Ft.
Unheated Area:
Garage:732 Sq. Ft.
Porch:386 Sq. Ft.
Dimensions
Architectural Styles
Exterior Wall Material
Vinyl SidingRock/StoneWood Siding
Roofing Type
GableGable/Shed Dormer
Roofing Material
Metal
Ceiling Height
10 Foot Ceiling
Special Feature
FireplaceMud RoomFamily RoomMain Level LaundrySplit BathroomStorageVaulted CeilingsOpen Floor Plan
Garage Type
Attached GarageFront Entry
Fireplaces
One Fireplace
Exterior Wall Framing
2x4
Building Lot Type
Flat Site
Kitchen Features
Kitchen IslandPeninsula/Eating BarEat-In Kitchen
Porches and Exterior Features
Covered Front PorchCovered Rear PorchScreened Porch/Sunroom
Master Suite Features
Main Floor MasterMaster BathroomWalk In ClosetSplit Master Bedroom

What’s Included

Most plan sets include the following:

icon text-secondary-400 includedFLOOR PLAN: Showing all dimensions, window and door locations, laminated beams, columns, floor materials, ceiling heights, fireplace size, and specifications.

icon text-secondary-400 includedELECTRICAL LAYOUT:Specifications, notes, schedules, and plan defining the location of panels, service, lighting fixtures, switches, outlets, fans, etc.

icon text-secondary-400 includedFRONT, REAR, AND SIDE ELEVATIONS:The front, rear, and side elevations of the house as drawn. Shows placement of doors & windows on exterior of house, as well as roof pitches, ridge heights, and locations of chimney, exterior vents, etc. The elevations show the positioning of the final grade of the lot, exterior finishes, and other details that are necessary to give the home exterior architectural styling.

What’s Not Included

These items are  NOT included:

icon text-secondary-400 includedArchitectural or Engineering Stamp - handled locally if required.

icon text-secondary-400 includedSite Plan - handled locally when required.

icon text-secondary-400 includedMechanical Drawings (location of heating and air equipment and ductwork) - your subcontractors handle this.

icon text-secondary-400 includedPlumbing Drawings (drawings showing the actual plumbing pipe sizes and locations) - your subcontractors handle this.

icon text-secondary-400 includedEnergy calculations - handled locally when required.

Related House Plans

Plan Collection
Plan Collection
Plan Collection
Plan#142-1168
Starting at$1395
2597
Sq Ft
1
Story
3
Bed
2.5
Bath
2
Car
Plan Collection
Plan Collection
Plan Collection
Plan#117-1092
Starting at$1095
2091
Sq Ft
1
Story
3
Bed
2.5
Bath
2
Car
Plan Collection
Plan Collection
Plan Collection
Plan#106-1276
Starting at$1295
2344
Sq Ft
1
Story
3
Bed
2.5
Bath
2
Car
View All

Other Plans By This Designer

Plan Collection
Plan Collection
Plan Collection
Plan#192-1001
Starting at$500
1270
Sq Ft
1
Story
2
Bed
2
Bath
0
Car
Plan Collection
Plan Collection
Plan Collection
Plan#192-1030
Starting at$500
2125
Sq Ft
1
Story
3
Bed
2
Bath
0
Car
Plan Collection
Plan Collection
Plan Collection
Plan#192-1061
Starting at$475
672
Sq Ft
1
Story
1
Bed
1
Bath
0
Car