Estimate your costs based on your location and materials.
Yes! This plan can be customized—contact us for a free quote.
Yes! This plan can be customized—contact us for a free quote.
On some plans, Basement Foundations, Walkout Basement Foundations & 2x6 Conversions could take up to ONE WEEK to produce. Materials Lists could take up to FOUR WEEKS to produce and they will be for the ORIGINAL plan! Any modifications will NOT be reflected on the Materials List. NOTE FROM DESIGNER: If you purchase a CAD, you will automatically receive the unlimited build license - no need to purchase separately!
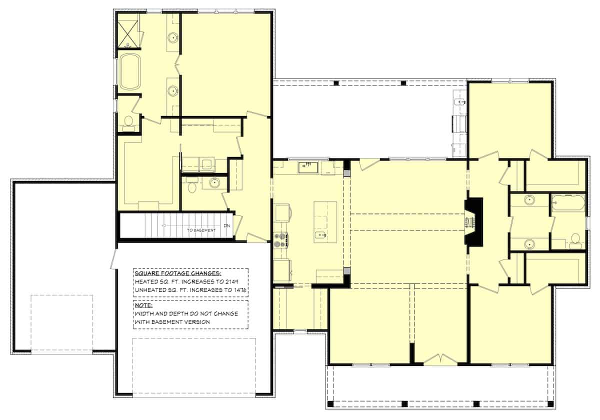
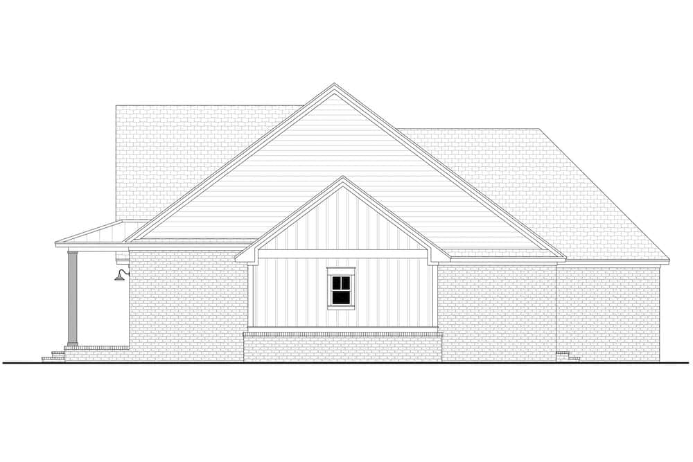
You're sure to take a close look once you see this majestic Ranch style home with a Contemporary touch, filled with artsy charm. The white vertical siding, multiple gables, and a gracious front porch further enhance the dynamic design of this house and may make it zoom to the top of your dream home list. The spectacular 1-story home's floor plan has 2125 square feet of heated and cooled living space, with an 883-square-foot 3-car garage.
The lovely front covered porch will welcome you upon arriving at the front of the house, and the lavish entry foyer leads to the dining...
Estimate your costs based on your location and materials.
All sales of house plans, modifications, and other products found on this site are final. No refunds or exchanges can be given once your order has begun the fulfillment process. Please see our Policies for additional information.
All plans offered on ThePlanCollection.com are designed to conform to the local building codes when and where the original plan was drawn.
The homes as shown in photographs and renderings may differ from the actual blueprints. For more detailed information, please review the floor plan images herein carefully.
Estimate your costs based on your location and materials.