4-Bedroom, 2118 Sq Ft Craftsman Plan with Covered Rear Porch

Front elevation of Craftsman home (ThePlanCollection: House Plan #158-1193)

Images/Plans copyrighted by designer. Photos may reflect homeowner modifications.

About House Plan #158-1193

Sq Ft
2118
Sq Ft
Bedrooms
4
Bedrooms
Bathroom
2
Baths
Half Baths
1
Half Baths
Bedrooms
0
Cars
Bedrooms
2
Stories
Bedrooms
28' 0'
Width
Bedrooms
28
Depth
Starting at$1395.00What's included
STEP 1Bedrooms
STEP 2Bedrooms
STEP 3Bedrooms

Subtotal:$0
Plan Collection

How much will it cost to build?

Estimate your costs based on your location and materials.

Free Cost Instant Estimator

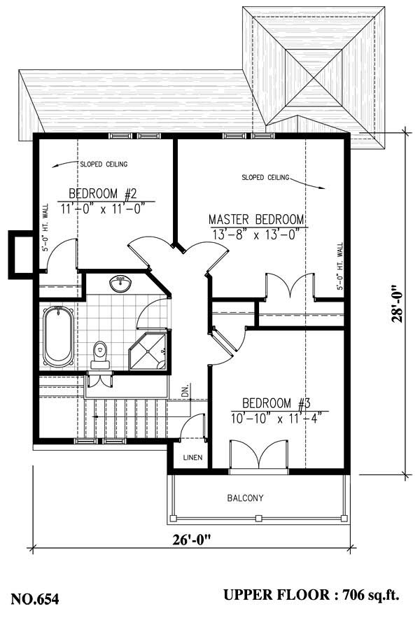
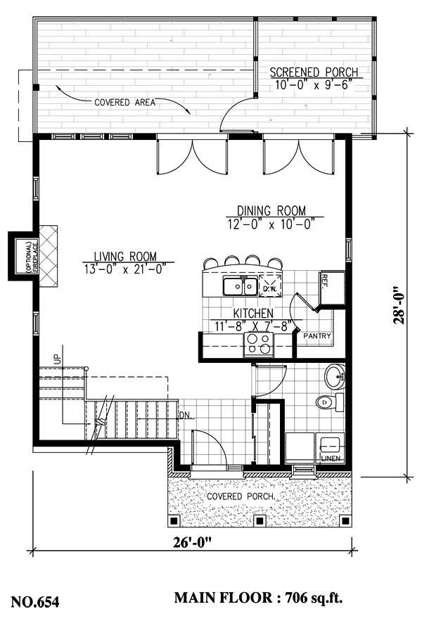
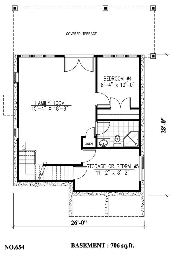
Floor Plans

Floor Plan Basement
Floor Plan Basement
Floor Plan First Story
Floor Plan First Story
Floor Plan Second Story
Floor Plan Second Story
Plan Collection

Can I modify this plan?

Yes! This plan can be customized—contact us for a free quote.

Additional Notes from Designer

PLEASE NOTE: Not ALL plans from this designer have a materials list available for purchase as an add-on. Please contact us to verify that it is available BEFORE ordering! This designer does not offer framing or an electrical layout with their plans.

House Plan Description

This alluring Craftsman has 2118 living sq ft and is ideal for a sloping lot. The 2-story floor plan includes 4 bedrooms.

Home Details

Summary
Plan #:158-1193
Starting at:$1395.00
Floors:2
Bedrooms:4
Full Baths:2
Half Baths:1
Garage:
Square Footage
Heated Area:2118 Sq. Ft.
First Floor:706 Sq. Ft.
Second Floor:706 Sq. Ft.
Unheated Area:
Basement:706 Sq. Ft.
Dimensions
Ridge Height:34' 0''
Architectural Styles
Exterior Wall Material
BrickWood Siding
Roofing Type
GableHip
Roofing Material
Asphalt Shingles
Roof Pitch
12/125/12
Ceiling Height
8 Foot Ceiling
Special Feature
FireplaceDining RoomFamily RoomMain Level LaundryStorageBalcony
Exterior Wall Framing
2x6
Building Lot Type
Down SiteNarrow Lot Design
Kitchen Features
Nook/Breakfast AreaWalk-in PantryEat-In Kitchen
Porches and Exterior Features
Covered Front PorchCovered Rear PorchScreened Porch/Sunroom
Master Suite Features
Second Floor Master

What’s Included

Most plan sets include the following:

icon text-secondary-400 includedExterior Elevations

icon text-secondary-400 includedFoundations

icon text-secondary-400 includedMain floor plans

icon text-secondary-400 includedUpper floor plan if applicable

icon text-secondary-400 includedRoof Sections

icon text-secondary-400 includedMiscellaneous

What’s Not Included

These items are  NOT included:

icon text-secondary-400 includedArchitectural or Engineering Stamp - handled locally if required.

icon text-secondary-400 includedNO FRAMING

icon text-secondary-400 includedNO ELECTRICAL

icon text-secondary-400 includedSite Plan - handled locally when required.

icon text-secondary-400 includedMechanical Drawings (location of heating and air equipment and ductwork) - your subcontractors handle this.

icon text-secondary-400 includedPlumbing Drawings (drawings showing the actual plumbing pipe sizes and locations) - your subcontractors handle this.

icon text-secondary-400 includedEnergy calculations - handled locally when required.

Related House Plans

Plan Collection
Plan Collection
Plan Collection
Plan#169-1035
Starting at$720
2482
Sq Ft
2
Story
4
Bed
2.5
Bath
3
Car
Plan Collection
Plan Collection
Plan Collection
Plan#178-1080
Starting at$1005
1980
Sq Ft
2
Story
4
Bed
2.5
Bath
2
Car
Plan Collection
Plan Collection
Plan Collection
Plan#173-1015
Starting at$1150
1840
Sq Ft
2
Story
4
Bed
2.5
Bath
2
Car
View All

Other Plans By This Designer

Plan Collection
Plan Collection
Plan Collection
Plan#158-1303
Starting at$755
1421
Sq Ft
1
Story
3
Bed
2
Bath
1
Car
Plan Collection
Plan Collection
Plan Collection
Plan#158-1273
Starting at$1255
2130
Sq Ft
2
Story
5
Bed
2.5
Bath
0
Car
Plan Collection
Plan Collection
Plan Collection
Plan#158-1296
Starting at$1455
8277
Sq Ft
2
Story
6
Bed
5.5
Bath
3
Car