3-Bedroom, 2089 Sq Ft Contemporary Plan with Master Bathroom

Main image for house plan # 4202

Images/Plans copyrighted by designer. Photos may reflect homeowner modifications.

About House Plan #126-1189

Sq Ft
2089
Sq Ft
Bedrooms
3
Bedrooms
Bathroom
1
Baths
Half Baths
1
Half Baths
Bedrooms
1
Cars
Bedrooms
2
Stories
Bedrooms
39' 0'
Width
Bedrooms
40
Depth
Starting at$1605.00What's included
STEP 1Bedrooms
STEP 2Bedrooms
STEP 3Bedrooms

Subtotal:$0
Plan Collection

How much will it cost to build?

Estimate your costs based on your location and materials.

Free Cost Instant Estimator

Floor Plans

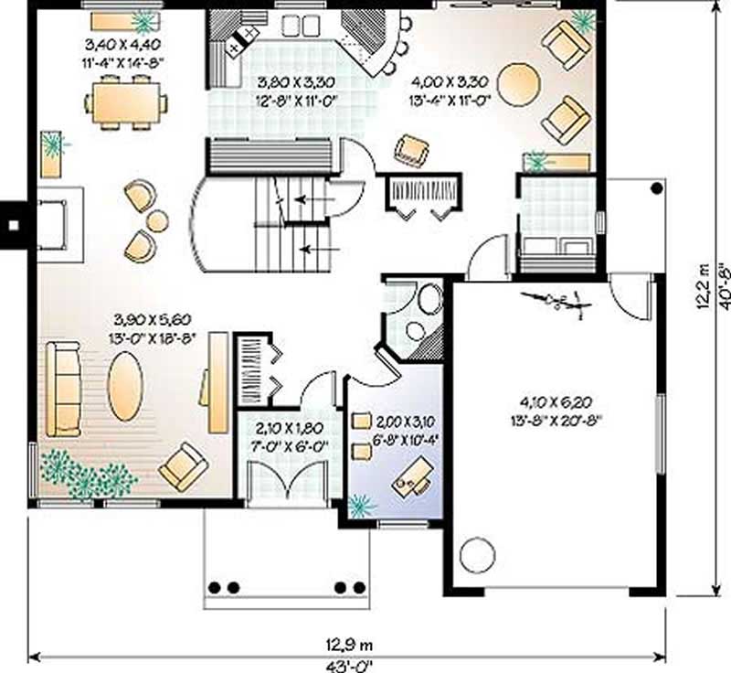
Main Floor Plan
Main Floor Plan
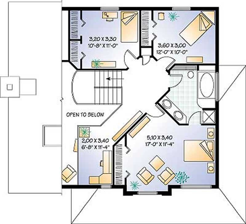
Upper Level Floor Plan
Upper Level Floor Plan
Plan Collection

Can I modify this plan?

Yes! This plan can be customized—contact us for a free quote.

Additional Notes from Designer

Please Note that the designer's office will be closed for the summer holidays from July 20th to August 2024. This designer's plans take 7-10 additional business days regardless of the type of delivery (express, email, etc). Please keep this in mind when ordering. BCIN is available for this designer - please submit a modification request for cost and time frame. PLEASE NOTE! This designer's plans do NOT come with an electrical layout. They will provide an electrical layout for an additional fee.

House Plan Description

Main level: Family room with fireplace, dining room, kitchen / breakfast area, foyer, home office or bedroom #4, sitting room off kitchen, half bath, laundry room. 2nd level: master bedroom with access to bathroom, 2 secondary bedrooms, full bathroom, mezzanine or study overlooking family room. One-car garage: 287 sq.ft. (25.83 sq.m.) Fireplace. Foyer. Home office. Master bedroom has direct access to bathroom. Snack-bar in kitchen. Abundant windowing. Special ceiling treatments. Cathedral ceiling.

Home Details

Summary
Plan #:126-1189
Starting at:$1605.00
Floors:2
Bedrooms:3
Full Baths:1
Half Baths:1
Garage:
Square Footage
Heated Area:2089 Sq. Ft.
First Floor:1204 Sq. Ft.
Second Floor:885 Sq. Ft.
Unheated Area:
Garage:283 Sq. Ft.
Dimensions
Depth:40' 8''
Ridge Height:27'10' 0''
Architectural Styles
Exterior Wall Material
Vinyl SidingStucco
Roofing Type
Gable
Roof Pitch
7/12
Ceiling Height
8 Foot Ceiling
Special Feature
FireplaceDining RoomHome OfficeFamily Room
Garage Type
Attached Garage
Fireplaces
One Fireplace
Exterior Wall Framing
2x6
Building Lot Type
Narrow Lot Design

What’s Included

Most plan sets include the following:

icon text-secondary-400 includedExterior elevations

icon text-secondary-400 includedFoundation plan

icon text-secondary-400 includedMain floor plan

icon text-secondary-400 includedUpper floor plan (if applicable)

icon text-secondary-400 includedRoof plan

icon text-secondary-400 includedTruss diagrams & building sections

icon text-secondary-400 includedConstruction details

icon text-secondary-400 includedTypical wall section

What’s Not Included

These items are  NOT included:

icon text-secondary-400 includedArchitectural or Engineering Stamp - handled locally if required.

icon text-secondary-400 includedSite Plan - handled locally when required.

icon text-secondary-400 includedNo Electrical

icon text-secondary-400 includedMechanical Drawings (location of heating and air equipment and ductwork) - your subcontractors handle this.

icon text-secondary-400 includedPlumbing Drawings (drawings showing the actual plumbing pipe sizes and locations) - your subcontractors handle this.

icon text-secondary-400 includedEnergy calculations - handled locally when required.

Related House Plans

Plan Collection
Plan Collection
Plan Collection
Plan#158-1289
Starting at$755
1697
Sq Ft
2
Story
3
Bed
1.5
Bath
2
Car
Plan Collection
Plan Collection
Plan Collection
Plan#158-1275
Starting at$995
1850
Sq Ft
2
Story
3
Bed
1.5
Bath
2
Car
Plan Collection
Plan Collection
Plan Collection
Plan#158-1071
Starting at$1255
2178
Sq Ft
2
Story
3
Bed
1.5
Bath
2
Car
View All

Other Plans By This Designer

Plan Collection
Plan Collection
Plan Collection
Plan#126-1856
Starting at$1180
943
Sq Ft
2
Story
3
Bed
2
Bath
0
Car
Plan Collection
Plan Collection
Plan Collection
Plan#126-1325
Starting at$3065
7624
Sq Ft
3
Story
16
Bed
8
Bath
0
Car
Plan Collection
Plan Collection
Plan Collection
Plan#126-1855
Starting at$1125
700
Sq Ft
1
Story
2
Bed
1
Bath
0
Car