3-Bedroom, 2079 Sq Ft Coastal Plan with Walk In Closet

Front view of Coastal home (ThePlanCollection: House Plan #170-2704)

Images/Plans copyrighted by designer. Photos may reflect homeowner modifications.

About House Plan #170-2704

Sq Ft
2079
Sq Ft
Bedrooms
3
Bedrooms
Bathroom
2
Baths
Half Baths
0
Half Baths
Bedrooms
2
Cars
Bedrooms
2
Stories
Bedrooms
26' 0'
Width
Bedrooms
70
Depth
Starting at$1065.00What's included
STEP 1Bedrooms
STEP 2Bedrooms
STEP 3Bedrooms

Subtotal:$0
Plan Collection

How much will it cost to build?

Estimate your costs based on your location and materials.

Free Cost Instant Estimator

Floor Plans

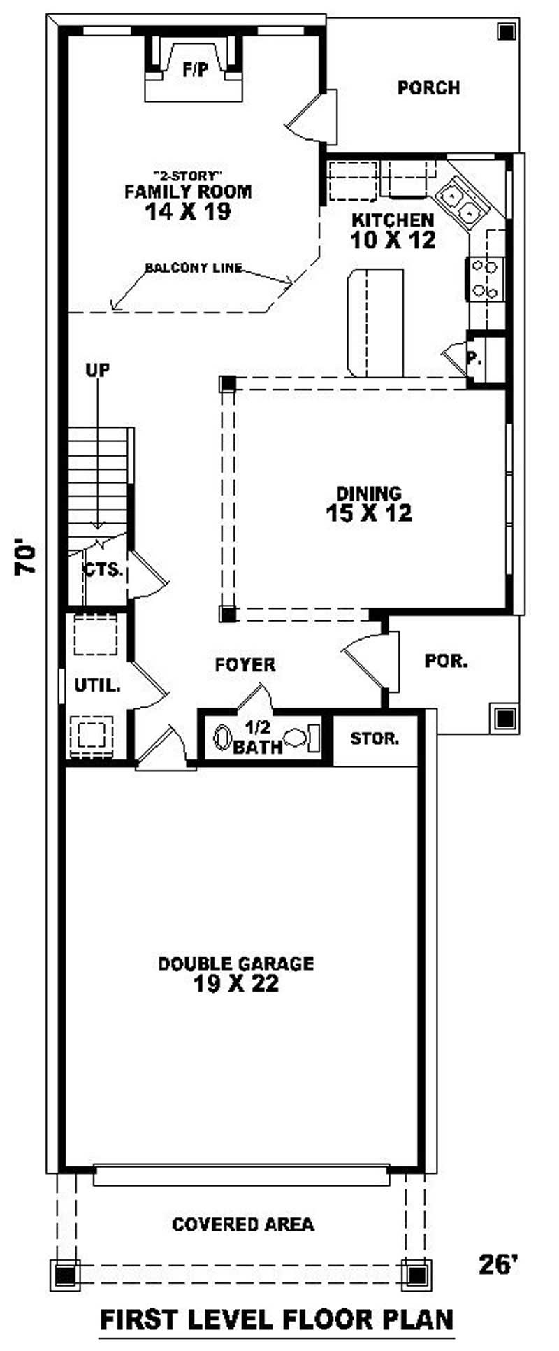
FIRST LEVEL FLOOR PLAN
FIRST LEVEL FLOOR PLAN
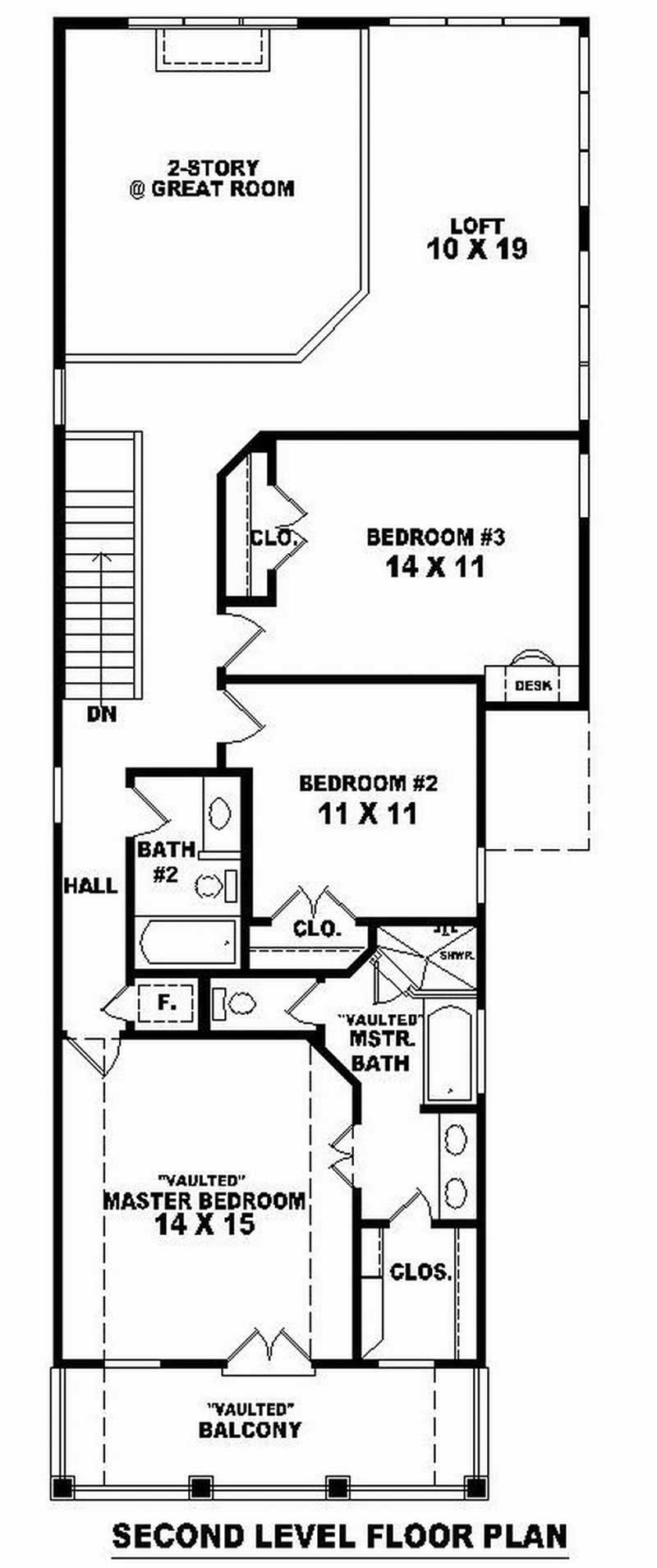
SECOND LEVEL FLOOR PLAN
SECOND LEVEL FLOOR PLAN
Plan Collection

Can I modify this plan?

Yes! This plan can be customized—contact us for a free quote.

Additional Notes from Designer

PLEASE NOTE: The designer's office will be closed from 10/21/2022 to 11/1/2022. All orders and modification requests for this designer will be fulfilled when the designer resumes office on 11/2/2022. Some plans may take 2-3 weeks to receive! Additionally, not ALL plans from this designer are available in CAD or PDF, some additional charges may apply. Contact us with any questions or concerns BEFORE ordering! Thank you!

House Plan Description

This beautiful coastal home design with Cape Cod influences has 2079 square feet of living space. The two story floor plan includes 3 bedrooms.

Home Details

Summary
Plan #:170-2704
Starting at:$1065.00
Floors:2
Bedrooms:3
Full Baths:2
Half Baths:0
Garage:
Square Footage
Heated Area:2079 Sq. Ft.
First Floor:916 Sq. Ft.
Second Floor:1163 Sq. Ft.
Unheated Area:
Dimensions
Ridge Height:27' 0''
Architectural Styles
Exterior Wall Material
Aluminum SidingVinyl SidingWood Siding
Roof Pitch
8/12
Ceiling Height
9 Foot Ceiling
Garage Type
Attached Garage
Fireplaces
One Fireplace
Exterior Wall Framing
2x4
Building Lot Type
Narrow Lot Design

What’s Included

Most plan sets include the following:

icon text-secondary-400 includedFoundation

icon text-secondary-400 includedFloor Plans

icon text-secondary-400 includedFraming

icon text-secondary-400 includedRoof

icon text-secondary-400 includedCabinet

icon text-secondary-400 includedStair Detail

icon text-secondary-400 includedElevation

icon text-secondary-400 includedElectrical layout

What’s Not Included

These items are  NOT included:

icon text-secondary-400 includedArchitectural or Engineering Stamp - handled locally if required.

icon text-secondary-400 includedSite Plan - handled locally when required.

icon text-secondary-400 includedMechanical Drawings (location of heating and air equipment and duct work) - your subcontractors handle this.

icon text-secondary-400 includedPlumbing Drawings (drawings showing the actual plumbing pipe sizes and locations) - your subcontractors handle this.

icon text-secondary-400 includedEnergy calculations - handled locally when required.

Related House Plans

Plan Collection
Plan Collection
Plan Collection
Plan#126-1297
Starting at$1715
2257
Sq Ft
2
Story
3
Bed
2.5
Bath
2
Car
Plan Collection
Plan Collection
Plan Collection
Plan#169-1146
Starting at$720
1664
Sq Ft
2
Story
3
Bed
2.5
Bath
2
Car
Plan Collection
Plan Collection
Plan Collection
Plan#116-1007
Starting at$0
1586
Sq Ft
2
Story
3
Bed
2.5
Bath
0
Car
View All

Other Plans By This Designer

Plan Collection
Plan Collection
Plan Collection
Plan#170-1006
Starting at$1920
5625
Sq Ft
2
Story
7
Bed
4
Bath
3
Car
Plan Collection
Plan Collection
Plan Collection
Plan#170-1701
Starting at$770
1057
Sq Ft
1
Story
2
Bed
2
Bath
0
Car
Plan Collection
Plan Collection
Plan Collection
Plan#170-2772
Starting at$1105
2386
Sq Ft
2
Story
3
Bed
2
Bath
0
Car