3-Bedroom, 2042 Sq Ft Barndominium Plan with Pocket Office

Front elevation of Barndominium home (ThePlanCollection: House Plan #120-2811)

Images/Plans copyrighted by designer. Photos may reflect homeowner modifications.

About House Plan #120-2811

Sq Ft
2042
Sq Ft
Bedrooms
3
Bedrooms
Bathroom
2
Baths
Half Baths
1
Half Baths
Bedrooms
3
Cars
Bedrooms
2
Stories
Bedrooms
83' 8'
Width
Bedrooms
48
Depth
Starting at$1155.00What's included
STEP 1Bedrooms
STEP 2Bedrooms
STEP 3Bedrooms

Subtotal:$0
Plan Collection

How much will it cost to build?

Estimate your costs based on your location and materials.

Free Cost Instant Estimator

Floor Plans

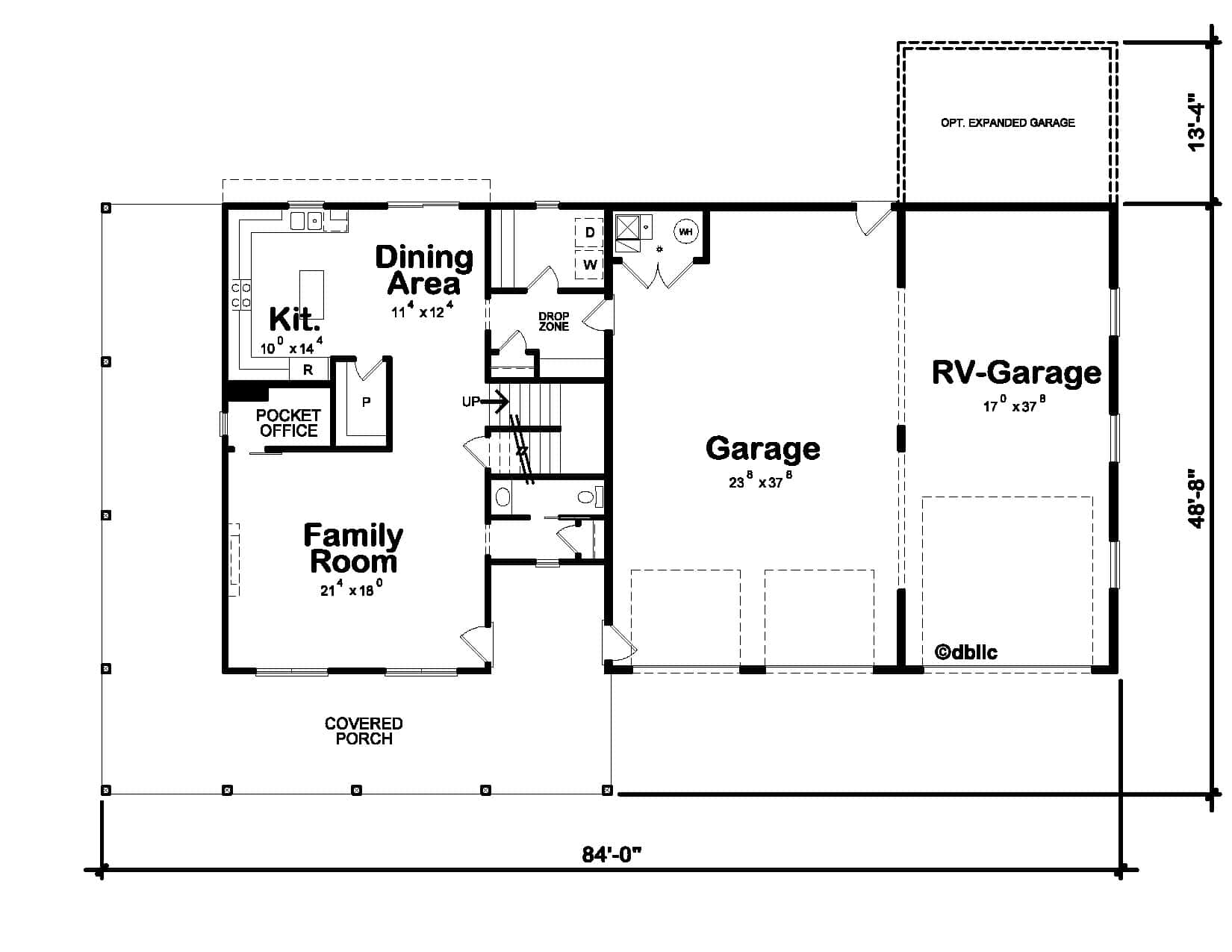
Floor Plan First Story
Floor Plan First Story
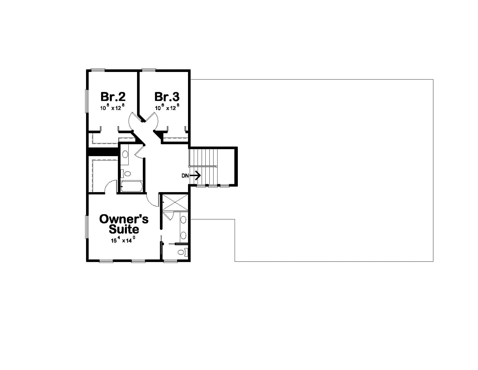
Floor Plan Second Story
Floor Plan Second Story
Basement Option Stair Location
Basement Option Stair Location
Plan Collection

Can I modify this plan?

Yes! This plan can be customized—contact us for a free quote.

Additional Notes from Designer

PLEASE NOTE! If you order an optional foundation and a materials list, the materials list will NOT include the optional foundation, only the standard foundation. The designer can provide an updated materials list for a fee, so please ask for a quote!

House Plan Description

Brimming with allure from its enduring details, this Barndominium style abode encompasses 2,042 square feet and features 3 bedrooms, 2.5 baths, and a 3-car garage. Moreover, it presents a delightful fusion of elements, signifying sophistication in every aspect:

  • Family Room, Pocket Office, Kitchen with Walk-in Pantry
  • Master Bedroom with Walk-in Closet, Master Bathroom
  • Open Floor Plan

Home Details

Summary
Plan #:120-2811
Starting at:$1155.00
Floors:2
Bedrooms:3
Full Baths:2
Half Baths:1
Garage:
Square Footage
Heated Area:2042 Sq. Ft.
First Floor:1147 Sq. Ft.
Second Floor:895 Sq. Ft.
Unheated Area:
Garage:1616 Sq. Ft.
Dimensions
Width:83' 8''
Depth:48' 8''
Architectural Styles
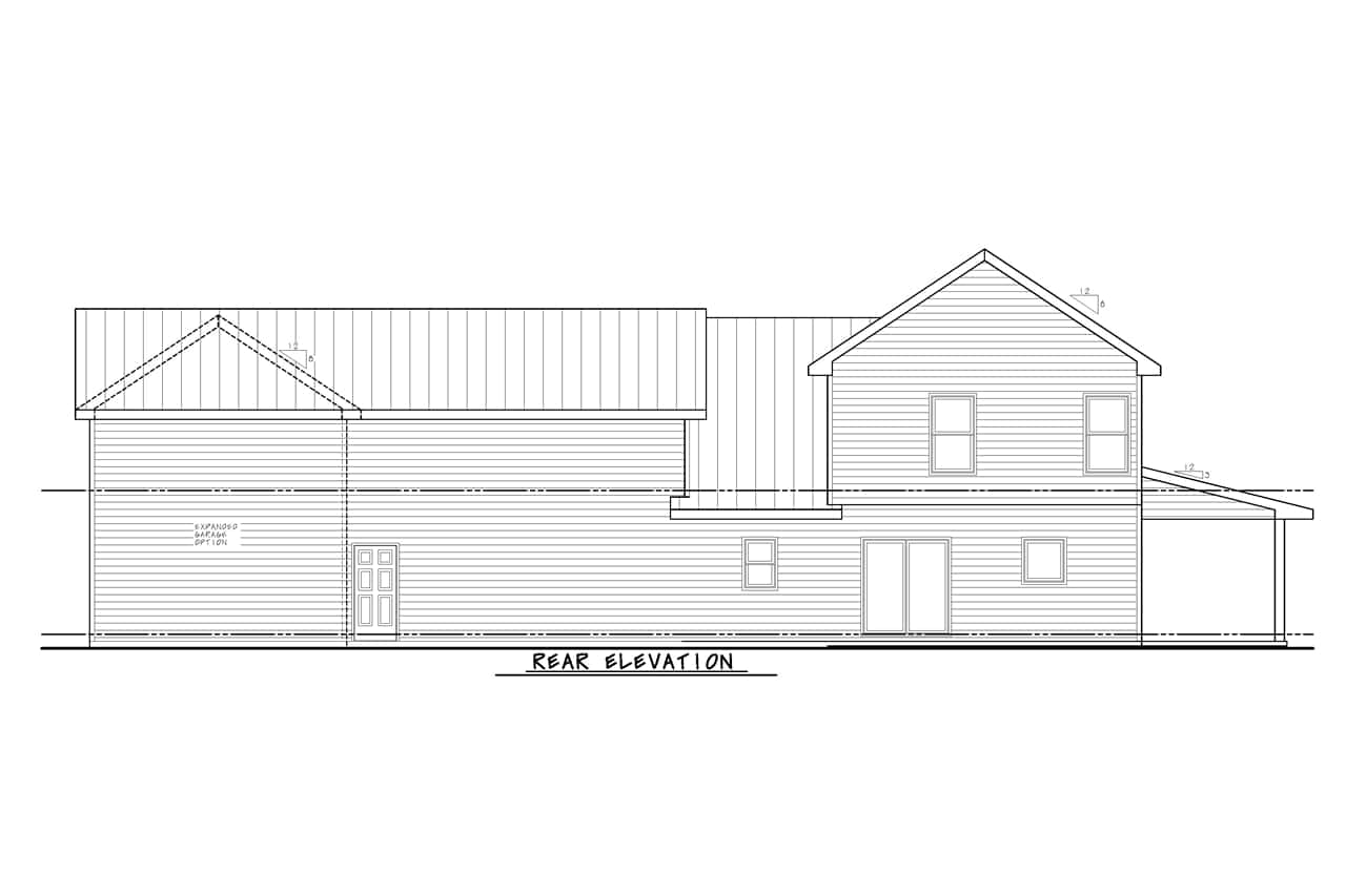
Exterior Wall Material
Rock/StoneBoard and Batten
Roofing Type
Gable
Roofing Material
Metal
Roof Pitch
4/128/12
Ceiling Height
9 Foot Ceiling8 Foot Ceiling
Special Feature
Home OfficeMud RoomFamily RoomMain Level LaundryColor PhotosOpen Floor Plan
Garage Type
Attached GarageFront Entry
Exterior Wall Framing
2x4
Building Lot Type
Flat Site
Kitchen Features
Kitchen IslandWalk-in PantryEat-In Kitchen
Porches and Exterior Features
Wrap Around Porch
Master Suite Features
Master BathroomWalk In ClosetSecond Floor MasterSplit Master Bedroom

What’s Included

Most plan sets include the following:

icon text-secondary-400 includedCover Page. Each home plan features the front elevation and informative reference sections including, general notes and design criteria*, abbreviations, and symbols for your plan.

icon text-secondary-400 includedElevations. Scaled elevations for the front, rear, and sides are provided. All elevations are detailed and an aerial view of the roof is provided.

icon text-secondary-400 includedFoundations. Foundations are fully engineered for each design, whether slab or basement.

icon text-secondary-400 includedMain Level Floor Plan

icon text-secondary-400 includedSecond Level Floor Plan

icon text-secondary-400 includedElectrical layout

icon text-secondary-400 includedWall & Stair Sections

What’s Not Included

These items are  NOT included:

icon text-secondary-400 includedArchitectural or Engineering Stamp - handled locally if required.

icon text-secondary-400 includedSite Plan - handled locally when required.

icon text-secondary-400 includedMechanical Drawings (location of heating and air equipment and ductwork) - your subcontractors handle this.

icon text-secondary-400 includedPlumbing Drawings (drawings showing the actual plumbing pipe sizes and locations) - your subcontractors handle this.

icon text-secondary-400 includedEnergy calculations - handled locally when required.

Related House Plans

Plan Collection
Plan Collection
Plan Collection
Plan#169-1146
Starting at$720
1664
Sq Ft
2
Story
3
Bed
2.5
Bath
2
Car
Plan Collection
Plan Collection
Plan Collection
Plan#116-1007
Starting at$0
1586
Sq Ft
2
Story
3
Bed
2.5
Bath
0
Car
Plan Collection
Plan Collection
Plan Collection
Plan#178-1144
Starting at$985
1683
Sq Ft
2
Story
3
Bed
2.5
Bath
0
Car
View All

Other Plans By This Designer

Plan Collection
Plan Collection
Plan Collection
Plan#120-2655
Starting at$1005
800
Sq Ft
1
Story
2
Bed
1
Bath
0
Car
Plan Collection
Plan Collection
Plan Collection
Plan#120-2696
Starting at$1105
1642
Sq Ft
1
Story
3
Bed
2.5
Bath
2
Car
Plan Collection
Plan Collection
Plan Collection
Plan#120-1117
Starting at$1105
1699
Sq Ft
2
Story
3
Bed
2.5
Bath
2
Car