Estimate your costs based on your location and materials.
Yes! This plan can be customized—contact us for a free quote.
Yes! This plan can be customized—contact us for a free quote.
NOTE FROM DESIGNER REGARDING PLAN PURCHASES: 80% of a 5 set purchase price can be applied to any PDF or CAD license upgrade. Additionally, 80% of PDF Study purchase price can be applied to any CAD or PDF license upgrade.
A highly attractive and desirable home, this 3-story contemporary Modern-style house gives you a total heated area of 2030 square feet with a straightforward design, perfect for you and your family, especially if you have a very narrow building lot!
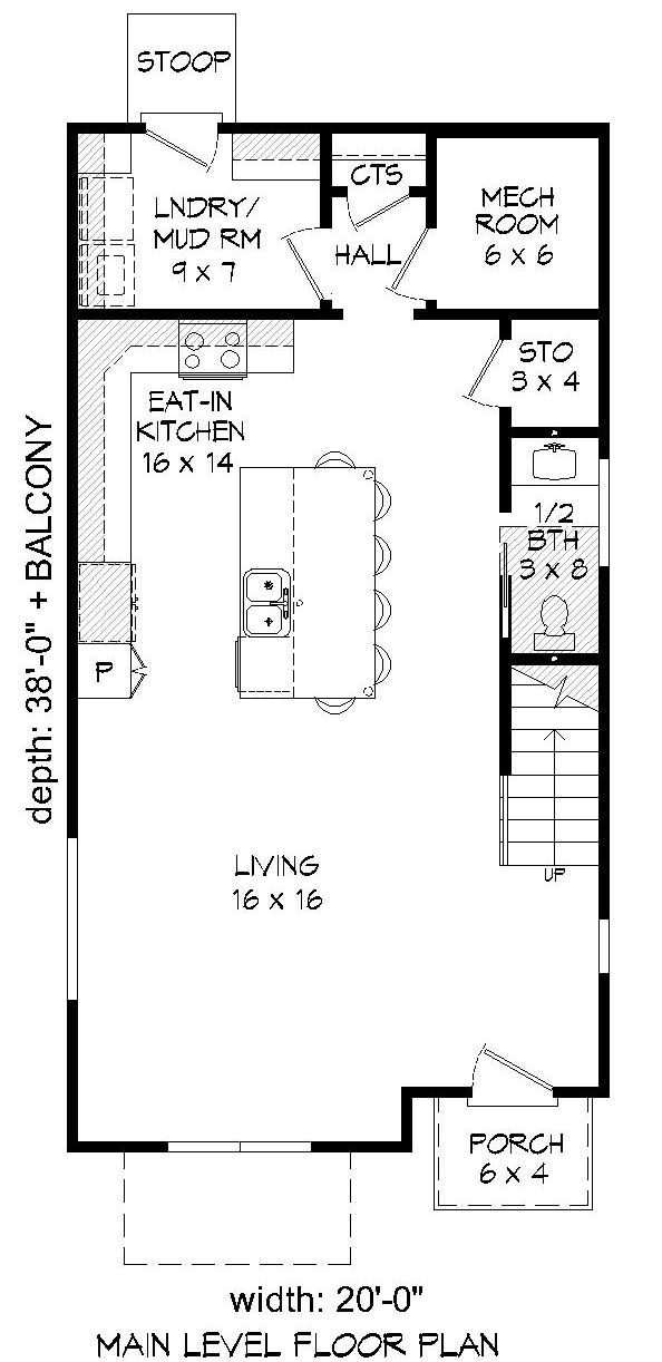
There's no wasted space in this vertical-living floor plan. The the roomy open floor plan on the main level is great for entertaining, the master bedroom and third-floor bedroom have private balconies, and there's a covered porch area off the bonus room on the third floor for scenic outdoor living.
Estimate your costs based on your location and materials.
All sales of house plans, modifications, and other products found on this site are final. No refunds or exchanges can be given once your order has begun the fulfillment process. Please see our Policies for additional information.
All plans offered on ThePlanCollection.com are designed to conform to the local building codes when and where the original plan was drawn.
The homes as shown in photographs and renderings may differ from the actual blueprints. For more detailed information, please review the floor plan images herein carefully.
Estimate your costs based on your location and materials.