Estimate your costs based on your location and materials.
Yes! This plan can be customized—contact us for a free quote.
Yes! This plan can be customized—contact us for a free quote.
Please Note! This designer does NOT ship paper copies to Canada. Please order your plans in electronic format (PDF or CAD)! USDA Approval is available for this plan. If interested, submit a modification request for a free quote. What is USDA Approval? Certification that a particular house plan meets the housing requirements of the US Department of Agriculture's Rural Housing Service. This is one of the requirements if you intend to apply for a loan through the Rural Housing Service.
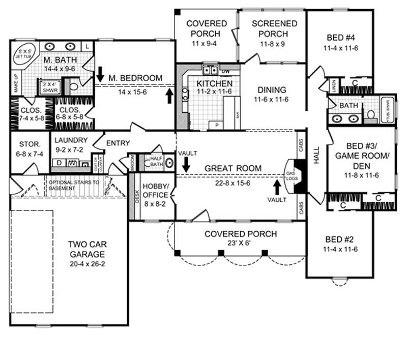
A great home for the growing family. This 4 bedroom beauty should fulfill the needs of many with the optional bedroom / game room / den, and the very popular flex space which could be used as a much-needed home office or hobby room. The home's open floorplan and split-bedroom layout provides an excellent use of space. The master suite is packed with features including a vaulted ceiling, an oversized jet tub, dual lavatories, large shower, and large his and her walk-in closets. Plenty of space is provided for socializing with family and friends including at the raised bar in the...
Estimate your costs based on your location and materials.
All sales of house plans, modifications, and other products found on this site are final. No refunds or exchanges can be given once your order has begun the fulfillment process. Please see our Policies for additional information.
All plans offered on ThePlanCollection.com are designed to conform to the local building codes when and where the original plan was drawn.
The homes as shown in photographs and renderings may differ from the actual blueprints. For more detailed information, please review the floor plan images herein carefully.
Estimate your costs based on your location and materials.