3-Bedroom, 1984 Sq Ft Farmhouse Plan with Walk-in Pantry

Farmhouse home (ThePlanCollection: Plan #194-1009)

Images/Plans copyrighted by designer. Photos may reflect homeowner modifications.

About House Plan #194-1009

Sq Ft
1984
Sq Ft
Bedrooms
3
Bedrooms
Bathroom
2
Baths
Half Baths
0
Half Baths
Bedrooms
3
Cars
Bedrooms
1
Stories
Bedrooms
56' 0'
Width
Bedrooms
74
Depth
Starting at$1195.00What's included
STEP 1Bedrooms
STEP 2Bedrooms
STEP 3Bedrooms

Subtotal:$0
Plan Collection

How much will it cost to build?

Estimate your costs based on your location and materials.

Free Cost Instant Estimator

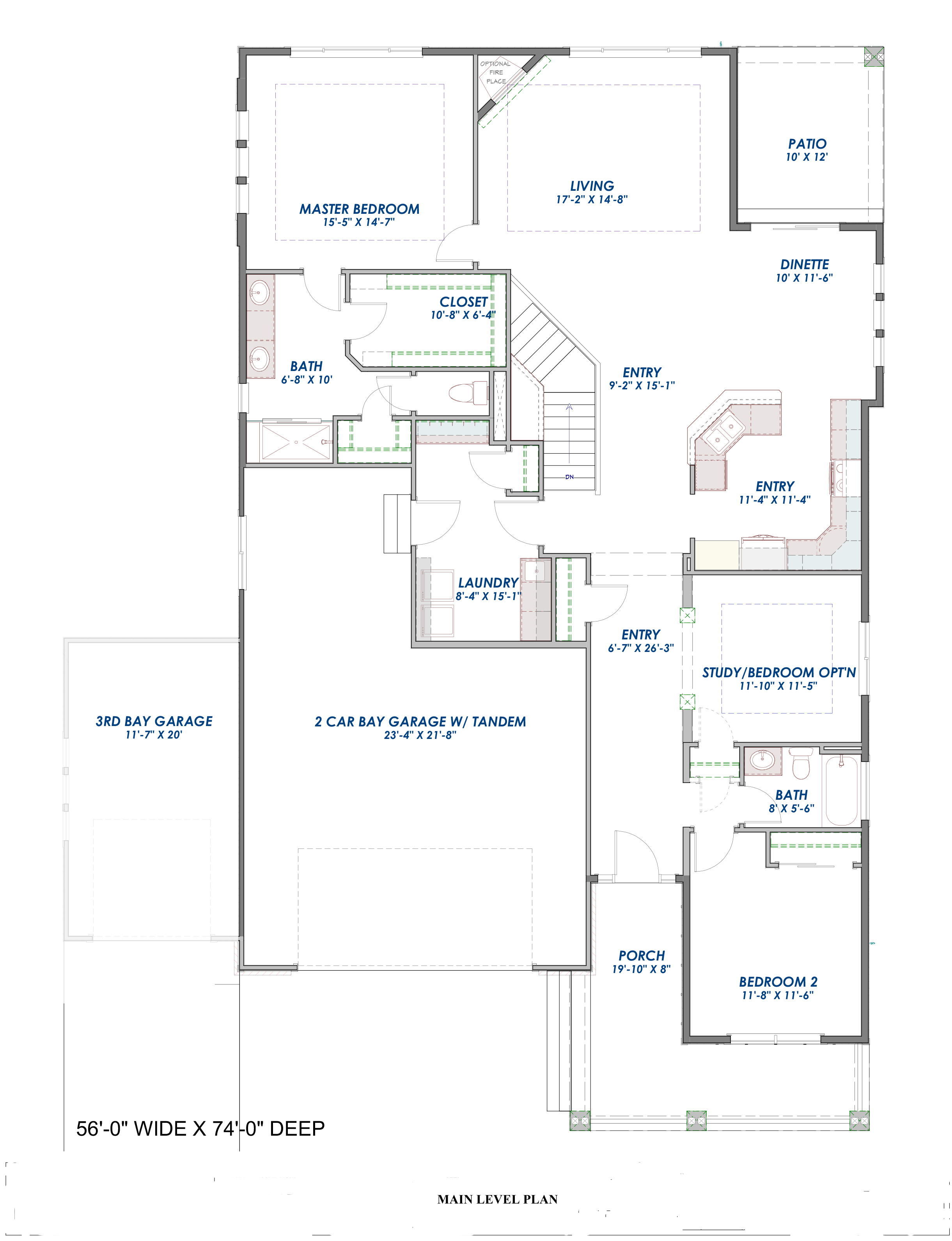
Floor Plans

Floor Plan Main Level
Floor Plan Main Level
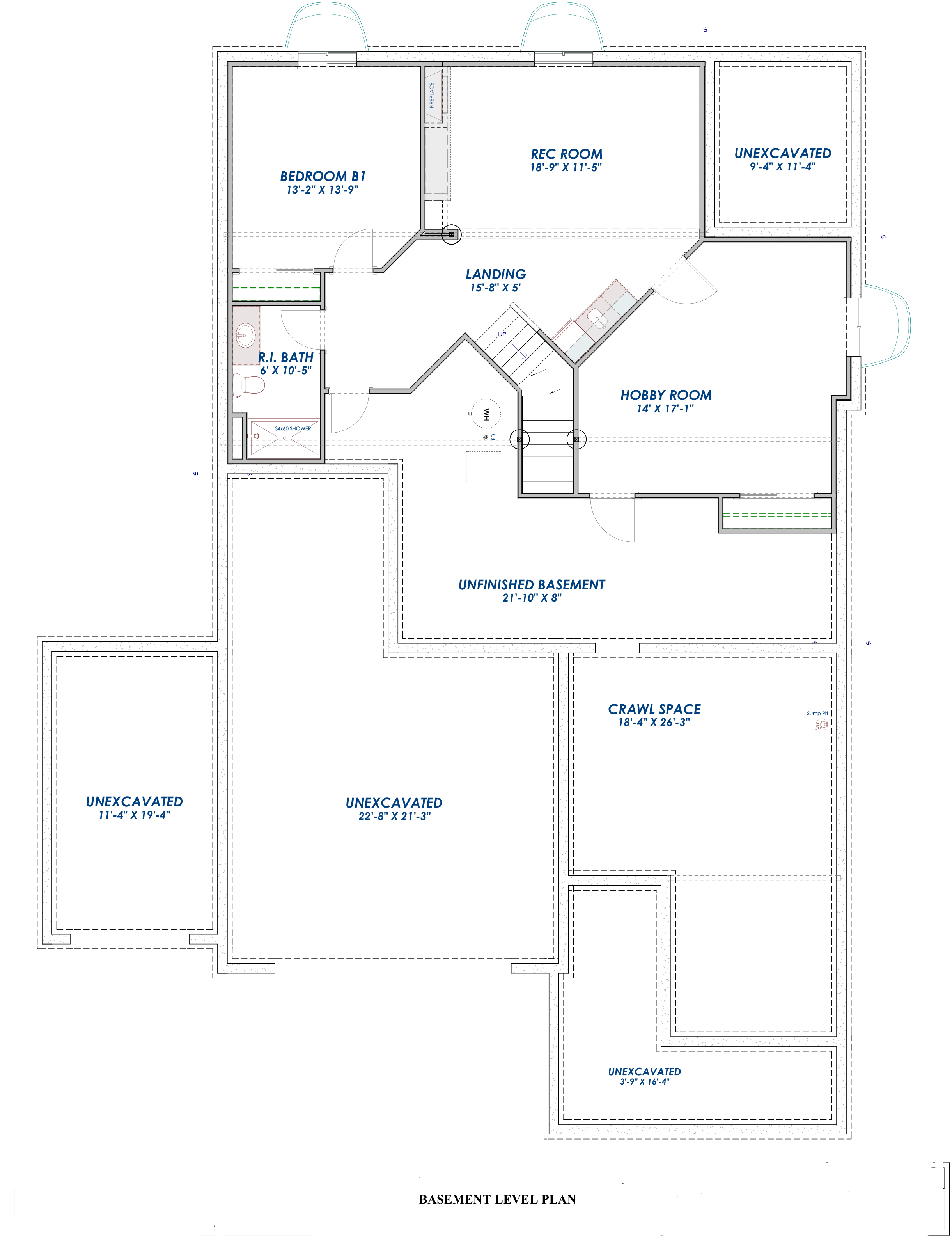
Floor Plan Basement
Floor Plan Basement
Plan Collection

Can I modify this plan?

Yes! This plan can be customized—contact us for a free quote.

House Plan Description

This lovely Farmhouse style home with Craftsman influences (Plan #194-1009) has 1984 square feet of living space. The 1 story floor plan includes 3 bedrooms – or 2 bedrooms and a study. There is also 1417 square feet of unfinished space in the basement that is roughed out for a 3rd or 4th bedroom, a recreation room, a hobby room, and a full bathroom if you so desire.

Home Details

Summary
Plan #:194-1009
Starting at:$1195.00
Floors:1
Bedrooms:3
Full Baths:2
Half Baths:0
Garage:
Square Footage
Heated Area:1984 Sq. Ft.
First Floor:1984 Sq. Ft.
Unheated Area:
Basement:1417 Sq. Ft.
Garage:645 Sq. Ft.
Porch:297 Sq. Ft.
Dimensions
Architectural Styles
Exterior Wall Material
Wood Siding
Roofing Type
GableHip
Roofing Material
Asphalt Shingles
Roof Pitch
4/128/12
Ceiling Height
9 Foot Ceiling8 Foot Ceiling
Special Feature
FireplaceHome OfficeMud RoomFamily RoomMain Level LaundryStorageOpen Floor Plan
Garage Type
Attached GarageFront Entry
Fireplaces
One Fireplace
Exterior Wall Framing
2x6
Kitchen Features
Kitchen IslandNook/Breakfast AreaPeninsula/Eating Bar
Porches and Exterior Features
Covered Front PorchCovered Rear Patio
Master Suite Features
Main Floor MasterMaster BathroomWalk In ClosetSplit Master Bedroom

What’s Included

Most plan sets include the following:

icon text-secondary-400 includedCover Sheet - project statistics, including square footage, 3D images (typically), general notes, and drawings sheet index.

icon text-secondary-400 includedFoundation/basement plan - showing room/wall layout, beams, posts, joist direction, and often electrical outlets, switches, and light locations.

icon text-secondary-400 includedMain Level Plan - floor plan rooms and walls dimensioned, window and door sizes noted, plumbing, millwork locations, and other general notes.

icon text-secondary-400 includedUpper-Level Plan (if needed) - same information as Main Level.

icon text-secondary-400 includedMain Level Electrical Plan - electrical outlets, switches, and light locations shown.

icon text-secondary-400 includedUpper-Level Electrical Plan (if needed) - electrical outlets, switches, and light locations shown. (sometimes just the lighting is shown)

icon text-secondary-400 includedExterior Elevations - Elevations of the Front and Right side with notes, dimensions, and material designations.

icon text-secondary-400 includedSections and details - One or more building sections to show vertical relationships and construction plate heights, details as needed.

What’s Not Included

These items are  NOT included:

icon text-secondary-400 includedArchitectural or Engineering Stamp - handled locally if required.

icon text-secondary-400 includedSite Plan - handled locally when required.

icon text-secondary-400 includedMechanical Drawings (location of heating and air equipment and ductwork) - your subcontractors handle this.

icon text-secondary-400 includedPlumbing Drawings (drawings showing the actual plumbing pipe sizes and locations) - your subcontractors handle this.

icon text-secondary-400 includedEnergy calculations - handled locally when required.

Related House Plans

Plan Collection
Plan Collection
Plan Collection
Plan#117-1092
Starting at$1095
2091
Sq Ft
1
Story
3
Bed
2.5
Bath
2
Car
Plan Collection
Plan Collection
Plan Collection
Plan#106-1276
Starting at$1295
2344
Sq Ft
1
Story
3
Bed
2.5
Bath
2
Car
Plan Collection
Plan Collection
Plan Collection
Plan#141-1243
Starting at$1485
1640
Sq Ft
1
Story
3
Bed
2
Bath
2
Car
View All

Other Plans By This Designer

Plan Collection
Plan Collection
Plan Collection
Plan#194-1056
Starting at$1395
3582
Sq Ft
1
Story
4
Bed
4.5
Bath
4
Car
Plan Collection
Plan Collection
Plan Collection
Plan#194-1057
Starting at$1395
3692
Sq Ft
1
Story
4
Bed
4.5
Bath
4
Car
Plan Collection
Plan Collection
Plan Collection
Plan#194-1010
Starting at$1395
2605
Sq Ft
1
Story
2
Bed
2.5
Bath
3
Car