3-Bedroom, 1979 Sq Ft Cottage Plan with Corner Fireplace

Cottage home (ThePlanCollection: Plan #196-1054)

Images/Plans copyrighted by designer. Photos may reflect homeowner modifications.

About House Plan #196-1054

Sq Ft
1979
Sq Ft
Bedrooms
3
Bedrooms
Bathroom
2
Baths
Half Baths
0
Half Baths
Bedrooms
2
Cars
Bedrooms
2
Stories
Bedrooms
23' 9'
Width
Bedrooms
57
Depth
Starting at$1225.00What's included
STEP 1Bedrooms
STEP 2Bedrooms
STEP 3Bedrooms

Subtotal:$0
Plan Collection

How much will it cost to build?

Estimate your costs based on your location and materials.

Free Cost Instant Estimator

Floor Plans

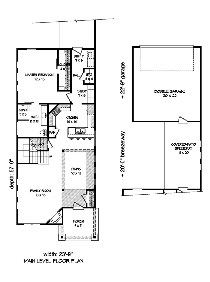
Floor Plan Main Level
Floor Plan Main Level
Floor Plan Upper Level
Floor Plan Upper Level
Plan Collection

Can I modify this plan?

Yes! This plan can be customized—contact us for a free quote.

Additional Notes from Designer

NOTE FROM DESIGNER REGARDING PLAN PURCHASES: 80% of a 5 set purchase price can be applied to any PDF or CAD license upgrade. Additionally, 80% of PDF Study purchase price can be applied to any CAD or PDF license upgrade.

House Plan Description

This elegant Cottage style home with Country characteristics (Plan #196-1054) has 1979 square feet of living space. The 2-story floor plan includes 3 bedrooms; a small study, or pocket office; and a detached garage in the rear.

Home Details

Summary
Plan #:196-1054
Starting at:$1225.00
Floors:2
Bedrooms:3
Full Baths:2
Half Baths:0
Garage:
Square Footage
Heated Area:1979 Sq. Ft.
First Floor:1210 Sq. Ft.
Second Floor:769 Sq. Ft.
Unheated Area:
Garage:692 Sq. Ft.
Porch:90 Sq. Ft.
Dimensions
Width:23' 9''
Architectural Styles
Exterior Wall Material
Vinyl SidingWood SidingShakes
Roofing Type
Gable
Roofing Material
Asphalt ShinglesMetal
Roof Pitch
12/12
Ceiling Height
9 Foot Ceiling8 Foot Ceiling
Special Feature
FireplaceDining RoomHome OfficeFamily RoomMain Level LaundryStorageOpen Floor Plan
Garage Type
Detached GarageRear Entry
Fireplaces
One Fireplace
Exterior Wall Framing
2x4
Building Lot Type
Narrow Lot Design
Kitchen Features
Kitchen IslandPeninsula/Eating Bar
Porches and Exterior Features
BreezewayCovered Front Porch
Master Suite Features
Main Floor MasterMaster BathroomWalk In ClosetSplit Master Bedroom

What’s Included

Most plan sets include the following:

What’s Not Included

These items are  NOT included:

Related House Plans

Plan Collection
Plan Collection
Plan Collection
Plan#126-1297
Starting at$1715
2257
Sq Ft
2
Story
3
Bed
2.5
Bath
2
Car
Plan Collection
Plan Collection
Plan Collection
Plan#169-1146
Starting at$720
1664
Sq Ft
2
Story
3
Bed
2.5
Bath
2
Car
Plan Collection
Plan Collection
Plan Collection
Plan#116-1007
Starting at$0
1586
Sq Ft
2
Story
3
Bed
2.5
Bath
0
Car
View All

Other Plans By This Designer

Plan Collection
Plan Collection
Plan Collection
Plan#196-1211
Starting at$695
650
Sq Ft
2
Story
1
Bed
1
Bath
2
Car
Plan Collection
Plan Collection
Plan Collection
Plan#196-1196
Starting at$810
1500
Sq Ft
1
Story
2
Bed
2
Bath
3
Car
Plan Collection
Plan Collection
Plan Collection
Plan#196-1216
Starting at$845
1727
Sq Ft
2
Story
2
Bed
2
Bath
2
Car