3-Bedroom, 1888 Sq Ft Colonial Plan with Fireplace

Colonial style home design (ThePlanCollection: Plan #196-1279)

Images/Plans copyrighted by designer. Photos may reflect homeowner modifications.

About House Plan #196-1279

Sq Ft
1888
Sq Ft
Bedrooms
3
Bedrooms
Bathroom
2
Baths
Half Baths
1
Half Baths
Bedrooms
2
Cars
Bedrooms
2
Stories
Bedrooms
20' 0'
Width
Bedrooms
92
Depth
Starting at$1225.00What's included
STEP 1Bedrooms
STEP 2Bedrooms
STEP 3Bedrooms

Subtotal:$0
Plan Collection

How much will it cost to build?

Estimate your costs based on your location and materials.

Free Cost Instant Estimator

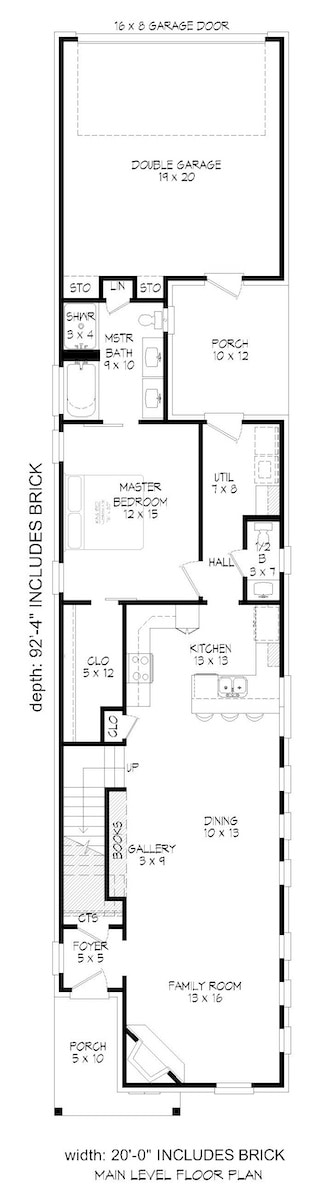
Floor Plans

Main Level
Main Level
Upper Level
Upper Level
Plan Collection

Can I modify this plan?

Yes! This plan can be customized—contact us for a free quote.

Additional Notes from Designer

NOTE FROM DESIGNER REGARDING PLAN PURCHASES: 80% of a 5 set purchase price can be applied to any PDF or CAD license upgrade. Additionally, 80% of PDF Study purchase price can be applied to any CAD or PDF license upgrade.

House Plan Description

Enjoy this well-designed Colonial style home, which features an excellent architectural design and is sure to capture your attention. The elegant home's 2-story floor plan has 1888 square feet of living space and includes 3 bedrooms. The house has room for all members of the family and features that will surely please everyone, such as
• Fireplace in the family room
• Utility room right off the rear porch
• Capacious walk-in closets in every bedroom
• A powder room
• Eating bar in the kitchen

Home Details

Summary
Plan #:196-1279
Starting at:$1225.00
Floors:2
Bedrooms:3
Full Baths:2
Half Baths:1
Garage:
Square Footage
Heated Area:1888 Sq. Ft.
First Floor:1217 Sq. Ft.
Second Floor:671 Sq. Ft.
Unheated Area:
Second Floor:124 Sq. Ft.
Garage:437 Sq. Ft.
Dimensions
Depth:92' 4''
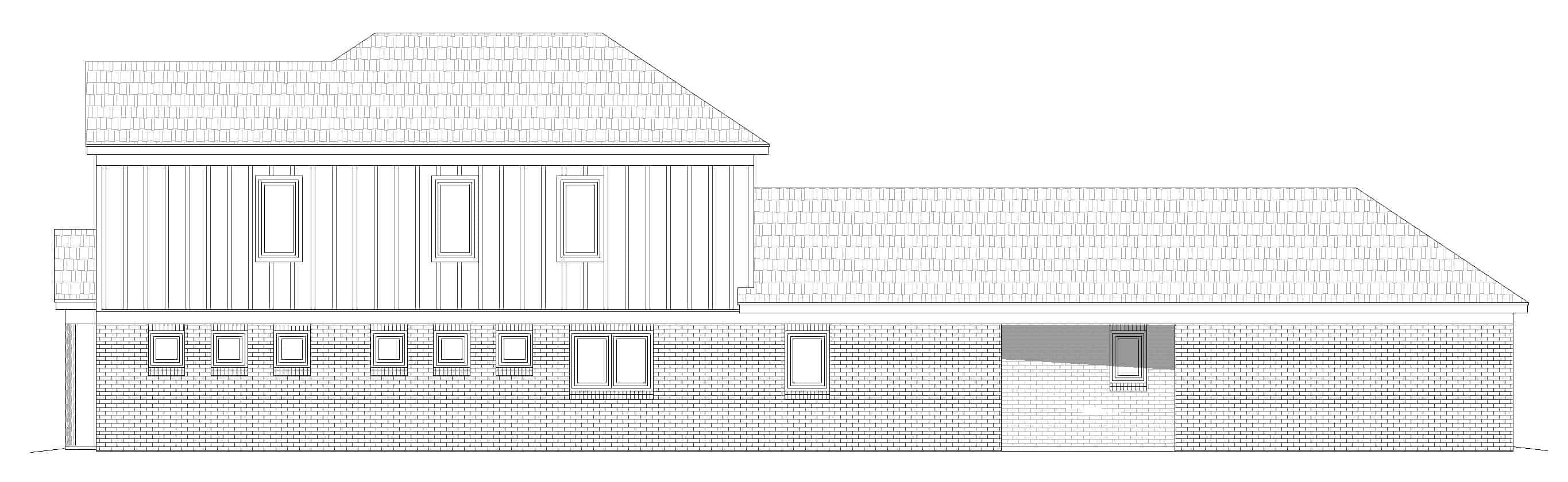
Architectural Styles
Exterior Wall Material
Vinyl SidingBrickWood SidingShakes
Roofing Type
GableHip
Roofing Material
Asphalt Shingles
Roof Pitch
8/12
Ceiling Height
9 Foot Ceiling
Special Feature
FireplaceMud RoomFamily RoomMain Level LaundryLoftStorageOpen Floor Plan
Garage Type
Attached GarageRear Entry
Fireplaces
One Fireplace
Exterior Wall Framing
2x4
Building Lot Type
Narrow Lot Design
Kitchen Features
Peninsula/Eating BarEat-In Kitchen
Porches and Exterior Features
Covered Front PorchCovered Rear Porch
Master Suite Features
Main Floor MasterMaster BathroomWalk In ClosetSplit Master Bedroom

What’s Included

Most plan sets include the following:

What’s Not Included

These items are  NOT included:

Related House Plans

Plan Collection
Plan Collection
Plan Collection
Plan#117-1104
Starting at$895
1421
Sq Ft
2
Story
3
Bed
2
Bath
2
Car
Plan Collection
Plan Collection
Plan Collection
Plan#126-1297
Starting at$1715
2257
Sq Ft
2
Story
3
Bed
2.5
Bath
2
Car
Plan Collection
Plan Collection
Plan Collection
Plan#169-1146
Starting at$720
1664
Sq Ft
2
Story
3
Bed
2.5
Bath
2
Car
View All

Other Plans By This Designer

Plan Collection
Plan Collection
Plan Collection
Plan#196-1211
Starting at$695
650
Sq Ft
2
Story
1
Bed
1
Bath
2
Car
Plan Collection
Plan Collection
Plan Collection
Plan#196-1196
Starting at$810
1500
Sq Ft
1
Story
2
Bed
2
Bath
3
Car
Plan Collection
Plan Collection
Plan Collection
Plan#196-1216
Starting at$845
1727
Sq Ft
2
Story
2
Bed
2
Bath
2
Car