3-Bedroom, 1880 Sq Ft Modern Plan with Balcony

Modern home (ThePlanCollection: Plan #108-1969)

Images/Plans copyrighted by designer. Photos may reflect homeowner modifications.

About House Plan #108-1969

Sq Ft
1880
Sq Ft
Bedrooms
3
Bedrooms
Bathroom
2
Baths
Half Baths
1
Half Baths
Bedrooms
2
Cars
Bedrooms
1.5
Stories
Bedrooms
38' 0'
Width
Bedrooms
59
Depth
Starting at$1425.00What's included
STEP 1Bedrooms
STEP 2Bedrooms
STEP 3Bedrooms

Subtotal:$0
Plan Collection

How much will it cost to build?

Estimate your costs based on your location and materials.

Free Cost Instant Estimator

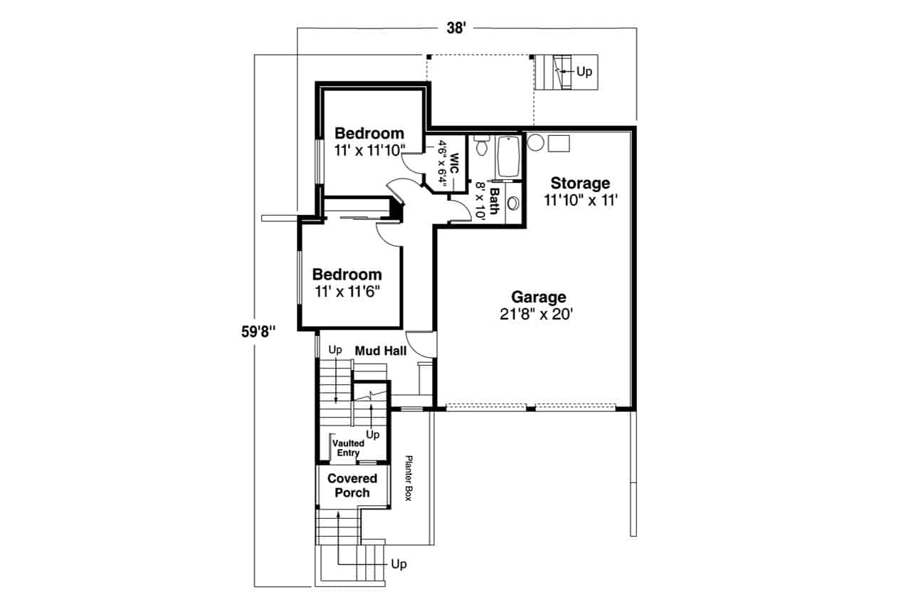
Floor Plans

Floor Plan Main Level
Floor Plan Main Level
Floor Plan Basement
Floor Plan Basement
Plan Collection

Can I modify this plan?

Yes! This plan can be customized—contact us for a free quote.

Additional Notes from Designer

PLEASE NOTE!! For this designer, The PDF that comes with the PRINT Packages (5 set+PDF and 8 set+PDF) is NOT Modifiable - it is for printing ONLY! PLEASE NOTE!! Optional Foundations (foundations that cost extra money) will take 5-10 business days to complete.

House Plan Description

This Modern style home would be the perfect home for retirement, a vacation getaway, or a starter home! You'll find no no wasted space in this beauty. Natural wood both on the interior and exterior are fused in that country style living all throughout this home.

If you're looking for small open-floor-plan house, this home may be ideal for you and your family. The house is elegant and sophisticated. Also, the interior is well laid out for a retired couple entertaining occasional visitors or a young married couple just...

Home Details

Summary
Plan #:108-1969
Starting at:$1425.00
Floors:1.5
Bedrooms:3
Full Baths:2
Half Baths:1
Garage:
Square Footage
Heated Area:1880 Sq. Ft.
Basement:675 Sq. Ft.
First Floor:1205 Sq. Ft.
Unheated Area:
Garage:571 Sq. Ft.
Dimensions
Depth:59' 8''
Architectural Styles
Exterior Wall Material
StuccoWood Siding
Roofing Type
Shed
Roofing Material
Metal
Roof Pitch
2/12
Ceiling Height
9 Foot Ceiling
Special Feature
Mud RoomFamily RoomMain Level LaundryStorageVaulted CeilingsBalconyOpen Floor Plan
Garage Type
Attached GarageUnder Main Floor EntryFront Entry
Exterior Wall Framing
2x6
Kitchen Features
Walk-in PantryPeninsula/Eating Bar
Porches and Exterior Features
Covered Rear PorchPortico
Master Suite Features
Main Floor MasterMaster BathroomWalk In ClosetSplit Master Bedroom

What’s Included

Most plan sets include the following:

icon text-secondary-400 included Artist’s rendering of the home,

icon text-secondary-400 included Front/Rear/Left and Right Elevations,

icon text-secondary-400 included Main floor plan, Second or Basement floor plans (if applicable),

icon text-secondary-400 included Foundation plan and detail,

icon text-secondary-400 included Floor framing plan,

icon text-secondary-400 included Roof framing plan, supporting details and

icon text-secondary-400 included Electric layout.

What’s Not Included

These items are  NOT included:

icon text-secondary-400 includedArchitectural or Engineering Stamp - handled locally if required.

icon text-secondary-400 includedSite Plan - handled locally when required.

icon text-secondary-400 includedMechanical Drawings (location of heating and air equipment and ductwork) - your subcontractors handle this.

icon text-secondary-400 includedPlumbing Drawings (drawings showing the actual plumbing pipe sizes and locations) - your subcontractors handle this.

icon text-secondary-400 includedEnergy calculations - handled locally when required.

Related House Plans

Plan Collection
Plan Collection
Plan Collection
Plan#142-1180
Starting at$1345
2282
Sq Ft
1.5
Story
3
Bed
2.5
Bath
2
Car
Plan Collection
Plan Collection
Plan Collection
Plan#117-1107
Starting at$895
1848
Sq Ft
1.5
Story
3
Bed
2
Bath
2
Car
Plan Collection
Plan Collection
Plan Collection
Plan#141-1153
Starting at$1485
1853
Sq Ft
1.5
Story
3
Bed
2.5
Bath
2
Car
View All

Other Plans By This Designer

Plan Collection
Plan Collection
Plan Collection
Plan#108-1923
Starting at$1150
2928
Sq Ft
1
Story
4
Bed
3
Bath
2
Car
Plan Collection
Plan Collection
Plan Collection
Plan#108-1538
Starting at$725
1216
Sq Ft
2
Story
2
Bed
2
Bath
0
Car
Plan Collection
Plan Collection
Plan Collection
Plan#108-2031
Starting at$450
1808
Sq Ft
2
Story
2
Bed
1
Bath
2
Car