3–4-Bed, 1840–2765 Sq Ft Farmhouse Plan with Media Room

Farmhouse home design (ThePlanCollection: Plan #196-1276)

Images/Plans copyrighted by designer. Photos may reflect homeowner modifications.

About House Plan #196-1276

Sq Ft
1840
Sq Ft
Bedrooms
4
Bedrooms
Bathroom
3
Baths
Half Baths
1
Half Baths
Bedrooms
0
Cars
Bedrooms
2
Stories
Bedrooms
33' 8'
Width
Bedrooms
42
Depth
Starting at$1225.00What's included
STEP 1Bedrooms
STEP 2Bedrooms
STEP 3Bedrooms

Subtotal:$0
Plan Collection

How much will it cost to build?

Estimate your costs based on your location and materials.

Free Cost Instant Estimator

Floor Plans

Main Level
Main Level
Upper Level
Upper Level
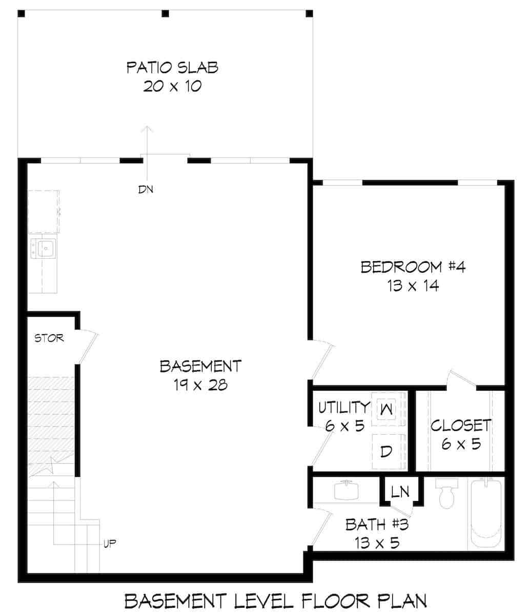
Basement
Basement
Plan Collection

Can I modify this plan?

Yes! This plan can be customized—contact us for a free quote.

Additional Notes from Designer

NOTE FROM DESIGNER REGARDING PLAN PURCHASES: 80% of a 5 set purchase price can be applied to any PDF or CAD license upgrade. Additionally, 80% of PDF Study purchase price can be applied to any CAD or PDF license upgrade.

House Plan Description

This modest but sophisticated Farmhouse style home with Traditional influenced design is unforgettable, mainly because of its potential for a growing family. The desirable 2-story home's floor plan has 1840 square feet of fully conditioned living space in both the main- and upper-level areas and includes 3 bedrooms, plus a 925-square-foot unfinished walkout basement that would add another bedroom and bring the living area to 2765 square feet if finished according to the suggested floor plan. The house has room for all members of the family and wonderful features that will...

Home Details

Summary
Plan #:196-1276
Starting at:$1225.00
Floors:2
Bedrooms:4
Full Baths:3
Half Baths:1
Garage:
Square Footage
Heated Area:1840 Sq. Ft.
First Floor:925 Sq. Ft.
Second Floor:915 Sq. Ft.
Unheated Area:
Basement:925 Sq. Ft.
Porch:280 Sq. Ft.
Dimensions
Width:33' 8''
Depth:42' 9''
Architectural Styles
Exterior Wall Material
Vinyl SidingWood Siding
Roofing Type
GableGable/Shed Dormer
Roofing Material
Asphalt Shingles
Roof Pitch
6/128/12
Ceiling Height
9 Foot Ceiling
Special Feature
Family RoomMain Level LaundryMedia RoomStorageOpen Floor Plan
Exterior Wall Framing
2x4
Building Lot Type
Narrow Lot Design
Kitchen Features
Peninsula/Eating Bar
Porches and Exterior Features
Covered Front PorchSundeckCovered Rear Patio
Master Suite Features
Main Floor MasterMaster BathroomWalk In ClosetSplit Master Bedroom

What’s Included

Most plan sets include the following:

What’s Not Included

These items are  NOT included:

Related House Plans

Plan Collection
Plan Collection
Plan Collection
Plan#178-1096
Starting at$1055
2252
Sq Ft
2
Story
4
Bed
3
Bath
3
Car
Plan Collection
Plan Collection
Plan Collection
Plan#109-1179
Starting at$1395
2253
Sq Ft
2
Story
4
Bed
3
Bath
2
Car
Plan Collection
Plan Collection
Plan Collection
Plan#153-1206
Starting at$1000
2186
Sq Ft
2
Story
4
Bed
3
Bath
2
Car
View All

Other Plans By This Designer

Plan Collection
Plan Collection
Plan Collection
Plan#196-1211
Starting at$695
650
Sq Ft
2
Story
1
Bed
1
Bath
2
Car
Plan Collection
Plan Collection
Plan Collection
Plan#196-1196
Starting at$810
1500
Sq Ft
1
Story
2
Bed
2
Bath
3
Car
Plan Collection
Plan Collection
Plan Collection
Plan#196-1216
Starting at$845
1727
Sq Ft
2
Story
2
Bed
2
Bath
2
Car