Estimate your costs based on your location and materials.
Yes! This plan can be customized—contact us for a free quote.
Yes! This plan can be customized—contact us for a free quote.
On some plans, Basement Foundations, Walkout Basement Foundations & 2x6 Conversions could take up to ONE WEEK to produce. Materials Lists could take up to FOUR WEEKS to produce and they will be for the ORIGINAL plan! Any modifications will NOT be reflected on the Materials List. NOTE FROM DESIGNER: If you purchase a CAD, you will automatically receive the unlimited build license - no need to purchase separately!
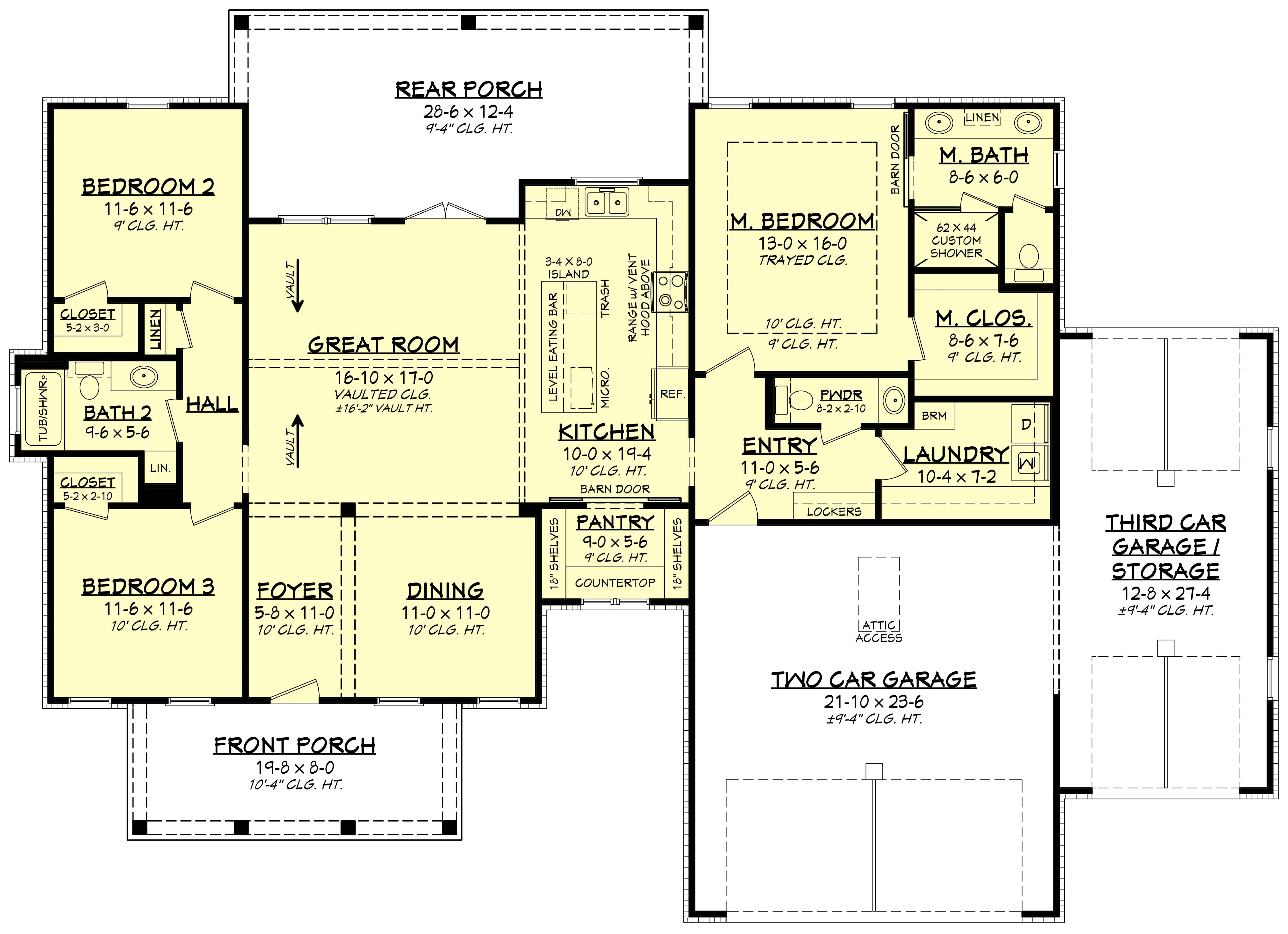
Looking for a spacious and stylish farmhouse plan? This 3-bed, 1797 sq ft design is just what you need! The open floor plan is perfect for entertaining, while the generous front and rear porches are perfect for enjoying the outdoors. Plus, there's plenty of garage space for all your toys - two cars in the main garage, and a third car in the extra garage space with front and rear doors.The kitchen is a chef's dream, with a large island with eating bar and plenty of storage in the walk-in pantry. And there's even an additional half bath for your guests. This farmhouse plan has it...
Estimate your costs based on your location and materials.
All sales of house plans, modifications, and other products found on this site are final. No refunds or exchanges can be given once your order has begun the fulfillment process. Please see our Policies for additional information.
All plans offered on ThePlanCollection.com are designed to conform to the local building codes when and where the original plan was drawn.
The homes as shown in photographs and renderings may differ from the actual blueprints. For more detailed information, please review the floor plan images herein carefully.
Estimate your costs based on your location and materials.