3-Bedroom, 1736 Sq Ft Cottage Plan with Split Master Bedroom

Front elevation of Cottage home (ThePlanCollection: House Plan #196-1180)

Images/Plans copyrighted by designer. Photos may reflect homeowner modifications.

About House Plan #196-1180

Sq Ft
1736
Sq Ft
Bedrooms
3
Bedrooms
Bathroom
2
Baths
Half Baths
0
Half Baths
Bedrooms
2
Cars
Bedrooms
1.5
Stories
Bedrooms
40' 0'
Width
Bedrooms
32
Depth
Starting at$1125.00What's included
STEP 1Bedrooms
STEP 2Bedrooms
STEP 3Bedrooms

Subtotal:$0
Plan Collection

How much will it cost to build?

Estimate your costs based on your location and materials.

Free Cost Instant Estimator

Floor Plans

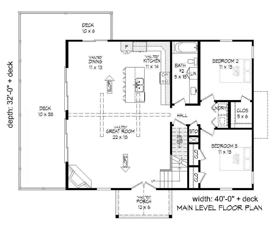
Floor Plan Main Level
Floor Plan Main Level
Floor Plan Upper Level
Floor Plan Upper Level
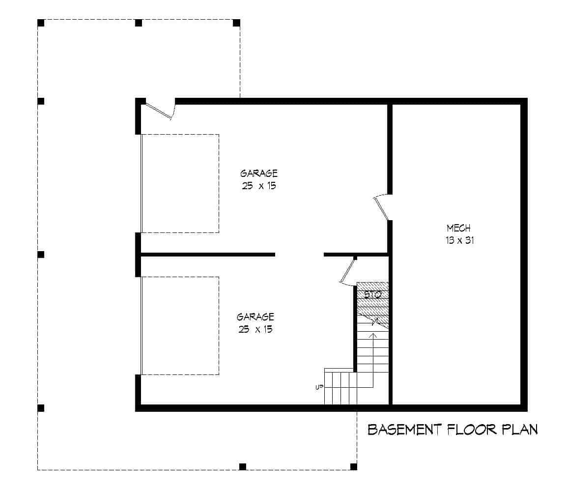
Floor Plan Basement
Floor Plan Basement
Plan Collection

Can I modify this plan?

Yes! This plan can be customized—contact us for a free quote.

Additional Notes from Designer

NOTE FROM DESIGNER REGARDING PLAN PURCHASES: 80% of a 5 set purchase price can be applied to any PDF or CAD license upgrade. Additionally, 80% of PDF Study purchase price can be applied to any CAD or PDF license upgrade.

House Plan Description

       This  1.5 story Cottage style home is truly an amazing house design both inside out and a must-have for you and your family's enjoyment. It has 1,280 square feet unheated basement garage and holding a 1,736-square -foot heated space under its roof. Its subtle and natural use of materials for the roof and exterior walls give it natural curb appeal among its...

Home Details

Summary
Plan #:196-1180
Starting at:$1125.00
Floors:1.5
Bedrooms:3
Full Baths:2
Half Baths:0
Garage:
Square Footage
Heated Area:1736 Sq. Ft.
First Floor:1280 Sq. Ft.
Second Floor:456 Sq. Ft.
Unheated Area:
Basement:1280 Sq. Ft.
Porch:542 Sq. Ft.
Dimensions
Architectural Styles
Exterior Wall Material
Wood SidingShakes
Roofing Type
Gable
Roofing Material
Wood Shakes
Roof Pitch
12/12
Ceiling Height
10 Foot Ceiling8 Foot Ceiling
Special Feature
Family RoomMain Level LaundryStorageVaulted CeilingsBalconyOpen Floor Plan
Garage Type
Under Main Floor Entry
Fireplaces
One Fireplace
Exterior Wall Framing
2x4
Building Lot Type
Narrow Lot Design
Kitchen Features
Kitchen IslandPeninsula/Eating Bar
Porches and Exterior Features
Covered Front PorchSundeck
Master Suite Features
Master BathroomWalk In ClosetSecond Floor MasterSplit Master Bedroom

What’s Included

Most plan sets include the following:

What’s Not Included

These items are  NOT included:

Related House Plans

Plan Collection
Plan Collection
Plan Collection
Plan#117-1107
Starting at$895
1848
Sq Ft
1.5
Story
3
Bed
2
Bath
2
Car
Plan Collection
Plan Collection
Plan Collection
Plan#117-1141
Starting at$895
1742
Sq Ft
1.5
Story
3
Bed
2.5
Bath
2
Car
Plan Collection
Plan Collection
Plan Collection
Plan#153-1952
Starting at$1100
1874
Sq Ft
1.5
Story
3
Bed
2.5
Bath
0
Car
View All

Other Plans By This Designer

Plan Collection
Plan Collection
Plan Collection
Plan#196-1211
Starting at$695
650
Sq Ft
2
Story
1
Bed
1
Bath
2
Car
Plan Collection
Plan Collection
Plan Collection
Plan#196-1196
Starting at$810
1500
Sq Ft
1
Story
2
Bed
2
Bath
3
Car
Plan Collection
Plan Collection
Plan Collection
Plan#196-1216
Starting at$845
1727
Sq Ft
2
Story
2
Bed
2
Bath
2
Car