4-Bedroom, 1730 Sq Ft Farmhouse Plan with Open Floor Plan

Front elevation of Farmhouse home (ThePlanCollection: House Plan #208-1036)

Images/Plans copyrighted by designer. Photos may reflect homeowner modifications.

About House Plan #208-1036

Sq Ft
1730
Sq Ft
Bedrooms
4
Bedrooms
Bathroom
2
Baths
Half Baths
1
Half Baths
Bedrooms
2
Cars
Bedrooms
2
Stories
Bedrooms
28' 0'
Width
Bedrooms
68
Depth
Starting at$1145.00What's included
STEP 1Bedrooms
STEP 2Bedrooms
STEP 3Bedrooms

Subtotal:$0
Plan Collection

How much will it cost to build?

Estimate your costs based on your location and materials.

Free Cost Instant Estimator

Floor Plans

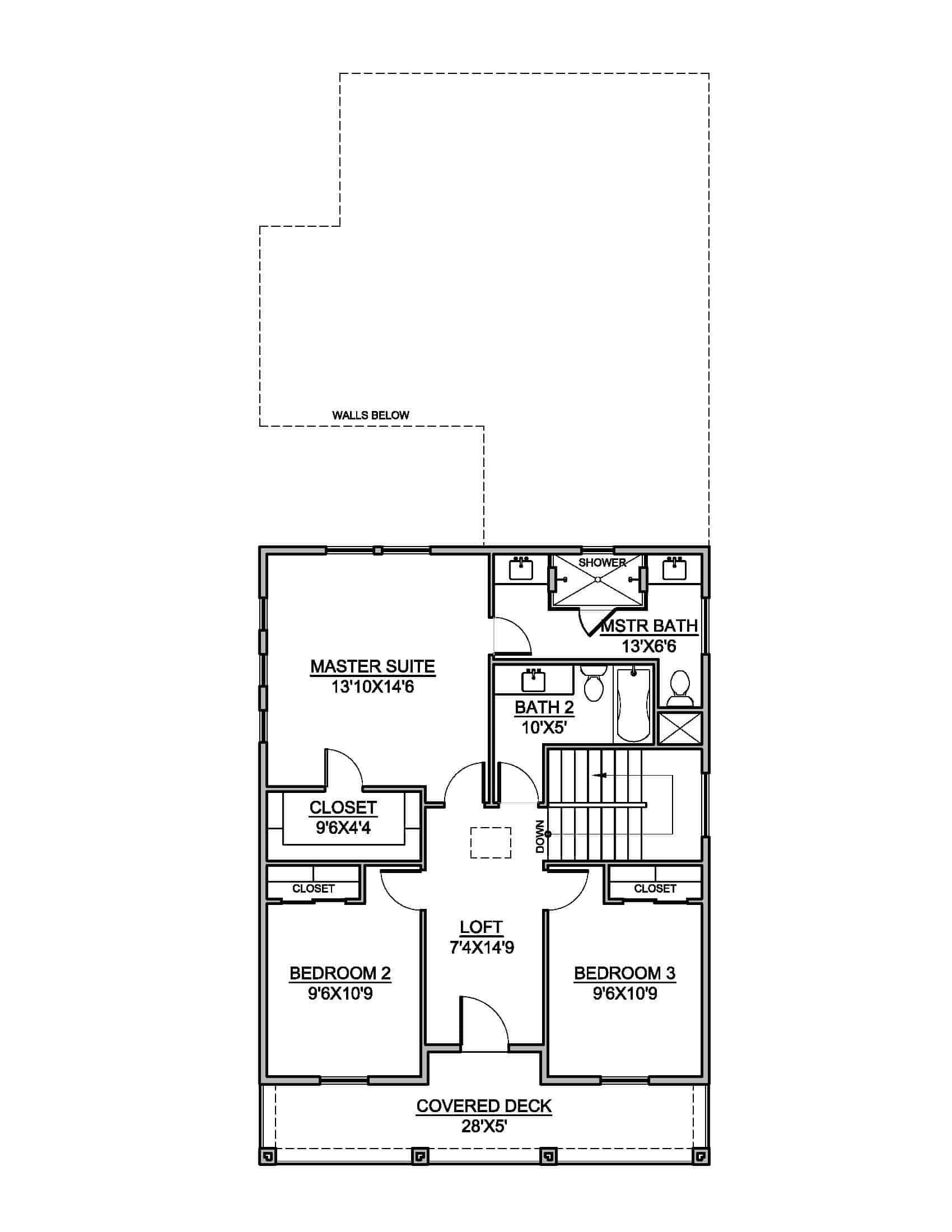
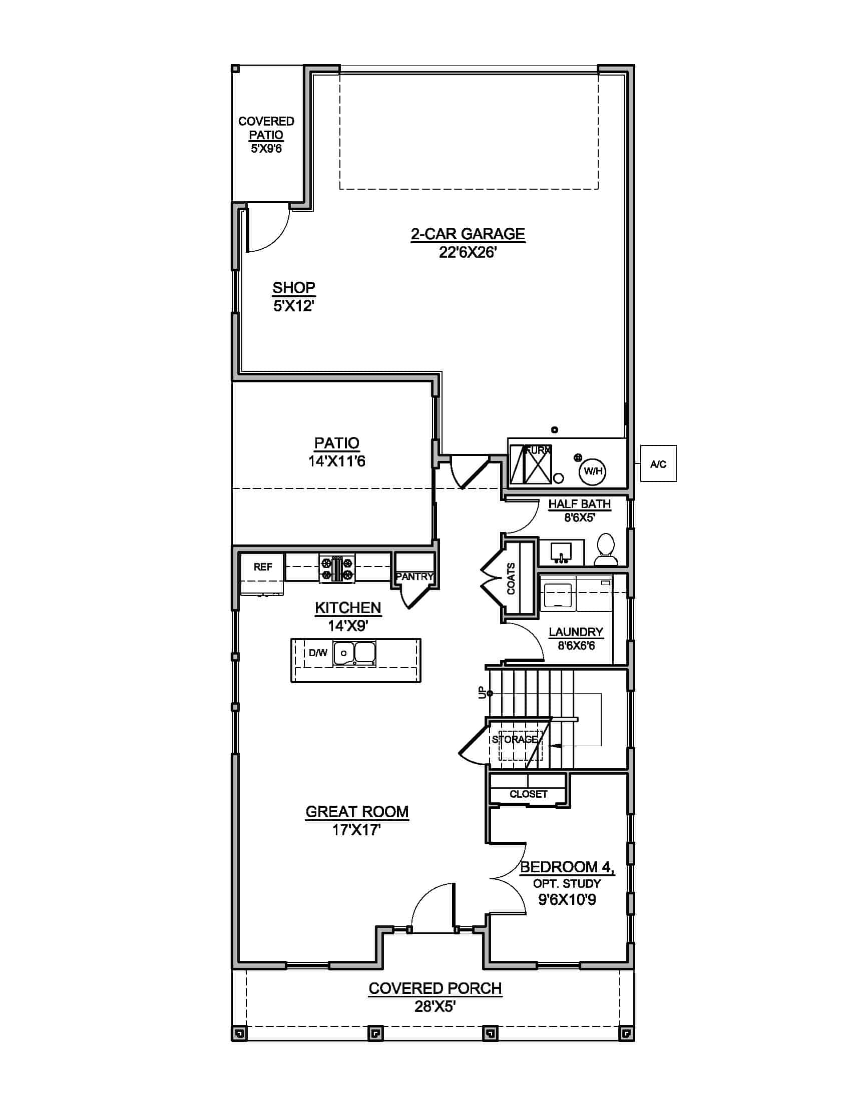
Main Level
Main Level
Upper Level
Upper Level
Plan Collection

Can I modify this plan?

Yes! This plan can be customized—contact us for a free quote.

Additional Notes from Designer

PLEASE NOTE: This designer's 5 sets, 8 sets & CADs all come with a PDF as well.

House Plan Description

Stepping up to the front of the house, you will be amazed by the sight of this Farmhouse Traditional style home. The eye-catching 2-story floor plan has 1730 square feet of fully conditioned living space. The stunning design inside and out provides amenities that will surely satisfy the family such as:

• Family room
• Walk-in kitchen pantry
• Powder room
• A loft
• Lots of storage space

 

Home Details

Summary
Plan #:208-1036
Starting at:$1145.00
Floors:2
Bedrooms:4
Full Baths:2
Half Baths:1
Garage:
Square Footage
Heated Area:1730 Sq. Ft.
First Floor:876 Sq. Ft.
Second Floor:854 Sq. Ft.
Unheated Area:
Garage:661 Sq. Ft.
Porch:472 Sq. Ft.
Dimensions
Architectural Styles
Exterior Wall Material
Vinyl SidingWood Siding
Roofing Type
Dutch Gable
Roofing Material
Asphalt Shingles
Roof Pitch
5/128/12
Ceiling Height
9 Foot Ceiling8 Foot Ceiling
Special Feature
Mud RoomMain Level LaundryLoftStorageWorkshopOpen Floor Plan
Garage Type
Attached GarageRear Entry
Exterior Wall Framing
2x6
Building Lot Type
Narrow Lot Design
Kitchen Features
Kitchen IslandWalk-in PantryPeninsula/Eating Bar
Porches and Exterior Features
Covered Front PorchCovered Rear Patio
Master Suite Features
Master BathroomWalk In ClosetSecond Floor Master

What’s Included

Most plan sets include the following:

icon text-secondary-400 includedCover sheet with Rendering on front

icon text-secondary-400 includedGeneral IRC notes page

icon text-secondary-400 includedFront & Rear Elevation Page

icon text-secondary-400 includedLeft / Right elevation page

icon text-secondary-400 includedMonolithic foundation plan

icon text-secondary-400 includedMain Floor Plan – Wood Frame

icon text-secondary-400 includedRoof slope and drainage Plan

icon text-secondary-400 includedRoof Framing Plan (Truss)

icon text-secondary-400 includedBuilding Section (wood frame)

icon text-secondary-400 includedMain Electrical Plan

What’s Not Included

These items are  NOT included:

icon text-secondary-400 includedArchitectural or Engineering Stamp - handled locally if required.

icon text-secondary-400 includedSite Plan - handled locally when required.

icon text-secondary-400 includedMechanical Drawings (location of heating and air equipment and ductwork) - your subcontractors handle this.

icon text-secondary-400 includedPlumbing Drawings (drawings showing the actual plumbing pipe sizes and locations) - your subcontractors handle this.

icon text-secondary-400 includedEnergy calculations - handled locally when required.

Related House Plans

Plan Collection
Plan Collection
Plan Collection
Plan#178-1080
Starting at$1005
1980
Sq Ft
2
Story
4
Bed
2.5
Bath
2
Car
Plan Collection
Plan Collection
Plan Collection
Plan#173-1015
Starting at$1150
1840
Sq Ft
2
Story
4
Bed
2.5
Bath
2
Car
Plan Collection
Plan Collection
Plan Collection
Plan#119-1121
Starting at$1045
1649
Sq Ft
2
Story
4
Bed
2.5
Bath
2
Car
View All

Other Plans By This Designer

Plan Collection
Plan Collection
Plan Collection
Plan#208-1005
Starting at$1145
1791
Sq Ft
1
Story
3
Bed
2
Bath
2
Car
Plan Collection
Plan Collection
Plan Collection
Plan#208-1025
Starting at$1145
2621
Sq Ft
1
Story
4
Bed
4.5
Bath
2
Car
Plan Collection
Plan Collection
Plan Collection
Plan#208-1027
Starting at$1145
1638
Sq Ft
1
Story
2
Bed
2
Bath
3
Car