4-Bedroom, 1716 Sq Ft Bungalow Plan with Interior Photos

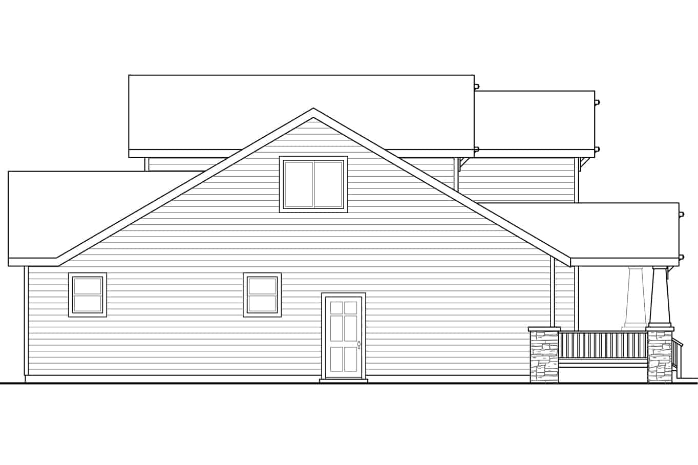
Front elevation of Bungalow home (ThePlanCollection: House Plan #108-1960)

Images/Plans copyrighted by designer. Photos may reflect homeowner modifications.

About House Plan #108-1960

Sq Ft
1716
Sq Ft
Bedrooms
4
Bedrooms
Bathroom
2
Baths
Half Baths
1
Half Baths
Bedrooms
2
Cars
Bedrooms
1.5
Stories
Bedrooms
40' 0'
Width
Bedrooms
55
Depth
Starting at$1425.00What's included
STEP 1Bedrooms
STEP 2Bedrooms
STEP 3Bedrooms

Subtotal:$0
Plan Collection

How much will it cost to build?

Estimate your costs based on your location and materials.

Free Cost Instant Estimator

Floor Plans

Floor Plan Main Level
Floor Plan Main Level
Floor Plan Upper Level
Floor Plan Upper Level
Plan Collection

Can I modify this plan?

Yes! This plan can be customized—contact us for a free quote.

Additional Notes from Designer

PLEASE NOTE!! For this designer, The PDF that comes with the PRINT Packages (5 set+PDF and 8 set+PDF) is NOT Modifiable - it is for printing ONLY! PLEASE NOTE!! Optional Foundations (foundations that cost extra money) will take 5-10 business days to complete.

House Plan Description

If you're looking for something just a bit bigger than a small house, this transitional, country-style bungalow may be perfect for you and your family. The amazing house has a total heated area of 1716 square feet main and second levels. There's no wasted space in this comfortable home.

The varied rooflines and heights, together with the use of natural materials and stone cladding give this house its curb appeal.

A  457-square-foot 2-car garage located at the front of the house offers a secondary entry to the home and an entry from...

Home Details

Summary
Plan #:108-1960
Starting at:$1425.00
Floors:1.5
Bedrooms:4
Full Baths:2
Half Baths:1
Garage:
Square Footage
Heated Area:1716 Sq. Ft.
First Floor:1139 Sq. Ft.
Second Floor:577 Sq. Ft.
Unheated Area:
Bonus Room:301 Sq. Ft.
Garage:457 Sq. Ft.
Dimensions
Architectural Styles
Exterior Wall Material
Vinyl SidingRock/StoneWood SidingShakes
Roofing Type
GableGable/Dormer
Roofing Material
Asphalt Shingles
Roof Pitch
7/12
Ceiling Height
9 Foot Ceiling
Special Feature
Bonus RoomFamily RoomMain Level LaundryColor PhotosOpen Floor PlanInterior Photos
Garage Type
Attached GarageFront Entry
Exterior Wall Framing
2x6
Kitchen Features
Walk-in PantryPeninsula/Eating Bar
Porches and Exterior Features
Covered Front PorchCovered Rear Patio
Master Suite Features
Main Floor MasterMaster BathroomWalk In ClosetSplit Master Bedroom

What’s Included

Most plan sets include the following:

icon text-secondary-400 included Artist’s rendering of the home,

icon text-secondary-400 included Front/Rear/Left and Right Elevations,

icon text-secondary-400 included Main floor plan, Second or Basement floor plans (if applicable),

icon text-secondary-400 included Foundation plan and detail,

icon text-secondary-400 included Floor framing plan,

icon text-secondary-400 included Roof framing plan, supporting details and

icon text-secondary-400 included Electric layout.

What’s Not Included

These items are  NOT included:

icon text-secondary-400 includedArchitectural or Engineering Stamp - handled locally if required.

icon text-secondary-400 includedSite Plan - handled locally when required.

icon text-secondary-400 includedMechanical Drawings (location of heating and air equipment and ductwork) - your subcontractors handle this.

icon text-secondary-400 includedPlumbing Drawings (drawings showing the actual plumbing pipe sizes and locations) - your subcontractors handle this.

icon text-secondary-400 includedEnergy calculations - handled locally when required.

Related House Plans

Plan Collection
Plan Collection
Plan Collection
Plan#126-1081
Starting at$2035
2136
Sq Ft
1.5
Story
4
Bed
2
Bath
2
Car
Plan Collection
Plan Collection
Plan Collection
Plan#153-1226
Starting at$1000
1472
Sq Ft
1.5
Story
4
Bed
2
Bath
0
Car
Plan Collection
Plan Collection
Plan Collection
Plan#178-1303
Starting at$985
1692
Sq Ft
1.5
Story
4
Bed
2.5
Bath
2
Car
View All

Other Plans By This Designer

Plan Collection
Plan Collection
Plan Collection
Plan#108-1923
Starting at$1150
2928
Sq Ft
1
Story
4
Bed
3
Bath
2
Car
Plan Collection
Plan Collection
Plan Collection
Plan#108-1538
Starting at$725
1216
Sq Ft
2
Story
2
Bed
2
Bath
0
Car
Plan Collection
Plan Collection
Plan Collection
Plan#108-2031
Starting at$450
1808
Sq Ft
2
Story
2
Bed
1
Bath
2
Car