3-Bedroom, 1684 Sq Ft Bungalow Plan with Main Floor Master

Front elevation of Bungalow home (ThePlanCollection: House Plan #158-1259)

Images/Plans copyrighted by designer. Photos may reflect homeowner modifications.

About House Plan #158-1259

Sq Ft
1684
Sq Ft
Bedrooms
3
Bedrooms
Bathroom
2
Baths
Half Baths
0
Half Baths
Bedrooms
1
Cars
Bedrooms
1.5
Stories
Bedrooms
40' 0'
Width
Bedrooms
43
Depth
Starting at$1135.00What's included
STEP 1Bedrooms
STEP 2Bedrooms
STEP 3Bedrooms

Subtotal:$0
Plan Collection

How much will it cost to build?

Estimate your costs based on your location and materials.

Free Cost Instant Estimator

Floor Plans

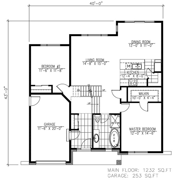
Floor Plan Main Level
Floor Plan Main Level
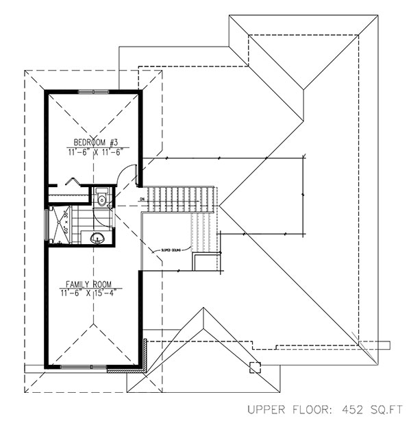
Floor Plan Upper Level
Floor Plan Upper Level
Plan Collection

Can I modify this plan?

Yes! This plan can be customized—contact us for a free quote.

Additional Notes from Designer

PLEASE NOTE: Not ALL plans from this designer have a materials list available for purchase as an add-on. Please contact us to verify that it is available BEFORE ordering! This designer does not offer framing or an electrical layout with their plans.

House Plan Description

This lovely Bungalow-style home with Prairie influences (House Plan #158-1259) has 1684 square feet of living space. The 1 1/2-story floor plan includes 3 bedrooms and 2 baths.

Home Details

Summary
Plan #:158-1259
Starting at:$1135.00
Floors:1.5
Bedrooms:3
Full Baths:2
Half Baths:0
Garage:
Square Footage
Heated Area:1684 Sq. Ft.
First Floor:1232 Sq. Ft.
Second Floor:452 Sq. Ft.
Unheated Area:
Basement:1232 Sq. Ft.
Dimensions
Architectural Styles
Exterior Wall Material
BrickRock/StoneWood Siding
Roofing Type
Hip
Roofing Material
Tiles
Roof Pitch
5/12
Ceiling Height
9 Foot Ceiling
Special Feature
Dining RoomFamily RoomColor PhotosOpen Floor Plan
Garage Type
Attached Garage
Exterior Wall Framing
2x6
Building Lot Type
Narrow Lot Design
Kitchen Features
Walk-in Pantry
Porches and Exterior Features
Covered Front Porch
Master Suite Features
Main Floor MasterSplit Master Bedroom

What’s Included

Most plan sets include the following:

icon text-secondary-400 includedExterior Elevations

icon text-secondary-400 includedFoundations

icon text-secondary-400 includedMain floor plans

icon text-secondary-400 includedUpper floor plan if applicable

icon text-secondary-400 includedRoof Sections

icon text-secondary-400 includedMiscellaneous

What’s Not Included

These items are  NOT included:

icon text-secondary-400 includedArchitectural or Engineering Stamp - handled locally if required.

icon text-secondary-400 includedNO FRAMING

icon text-secondary-400 includedNO ELECTRICAL

icon text-secondary-400 includedSite Plan - handled locally when required.

icon text-secondary-400 includedMechanical Drawings (location of heating and air equipment and ductwork) - your subcontractors handle this.

icon text-secondary-400 includedPlumbing Drawings (drawings showing the actual plumbing pipe sizes and locations) - your subcontractors handle this.

icon text-secondary-400 includedEnergy calculations - handled locally when required.

Related House Plans

Plan Collection
Plan Collection
Plan Collection
Plan#117-1141
Starting at$895
1742
Sq Ft
1.5
Story
3
Bed
2.5
Bath
2
Car
Plan Collection
Plan Collection
Plan Collection
Plan#117-1140
Starting at$895
1486
Sq Ft
1.5
Story
3
Bed
2
Bath
2
Car
Plan Collection
Plan Collection
Plan Collection
Plan#193-1205
Starting at$1200
1764
Sq Ft
1.5
Story
3
Bed
2.5
Bath
0
Car
View All

Other Plans By This Designer

Plan Collection
Plan Collection
Plan Collection
Plan#158-1303
Starting at$755
1421
Sq Ft
1
Story
3
Bed
2
Bath
1
Car
Plan Collection
Plan Collection
Plan Collection
Plan#158-1273
Starting at$1255
2130
Sq Ft
2
Story
5
Bed
2.5
Bath
0
Car
Plan Collection
Plan Collection
Plan Collection
Plan#158-1296
Starting at$1455
8277
Sq Ft
2
Story
6
Bed
5.5
Bath
3
Car