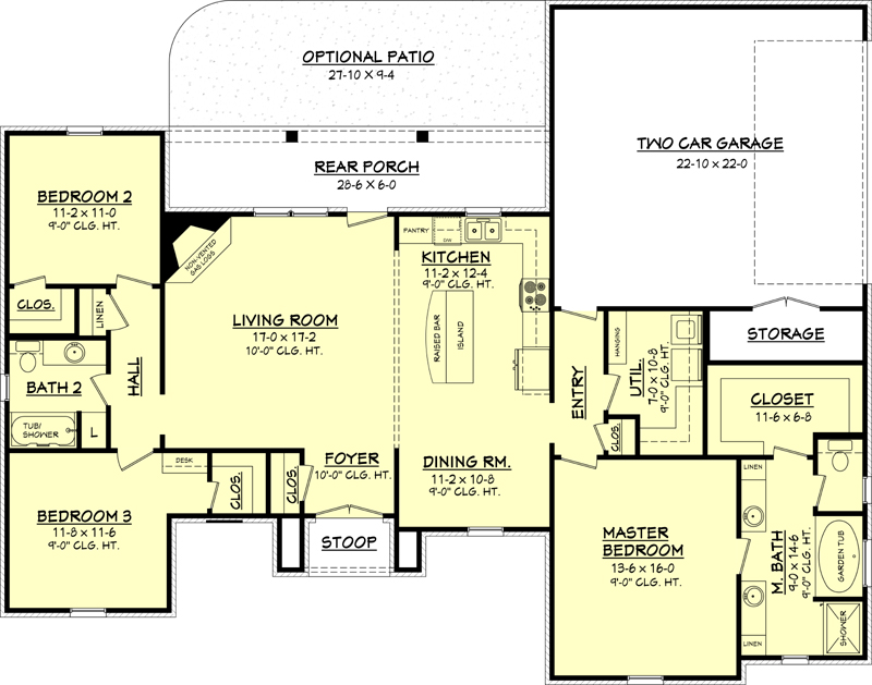
3-Bedroom, 1675 Sq Ft Acadian Plan with Covered Rear Porch

Acadian House (#142-1066) at The Plan Collection.

Images/Plans copyrighted by designer. Photos may reflect homeowner modifications.

About House Plan #142-1066

Sq Ft
1675
Sq Ft
Bedrooms
3
Bedrooms
Bathroom
2
Baths
Half Baths
0
Half Baths
Bedrooms
2
Cars
Bedrooms
1
Stories
Bedrooms
63' 10'
Width
Bedrooms
50
Depth
Starting at$1295.00What's included
STEP 1Bedrooms
STEP 2Bedrooms
STEP 3Bedrooms

Subtotal:$0
Plan Collection

How much will it cost to build?

Estimate your costs based on your location and materials.

Free Cost Instant Estimator

Floor Plans

Floor Plan Main Level
Floor Plan Main Level
Plan Collection

Can I modify this plan?

Yes! This plan can be customized—contact us for a free quote.

Additional Notes from Designer

On some plans, Basement Foundations, Walkout Basement Foundations & 2x6 Conversions could take up to ONE WEEK to produce. Materials Lists could take up to FOUR WEEKS to produce and they will be for the ORIGINAL plan! Any modifications will NOT be reflected on the Materials List. NOTE FROM DESIGNER: If you purchase a CAD, you will automatically receive the unlimited build license - no need to purchase separately!

Please Note: Ordering 2x6 Exterior Wall Framing option will require an additional 5 business days before plan can be shipped.

House Plan Description

This attractive Acadian style home (Plan # 142-1066) has over 1670 square feet of living space. The one story floor plan includes 3 bedrooms and 2 bathrooms. The exterior of this home has a graceful covered rear porch and patio. Inside, this open floor plan connects the great room, kitchen, and dining room into a large, free-flowing space. The main floor also includes a welcoming master bedroom suite.

Home Details

Summary
Plan #:142-1066
Starting at:$1295.00
Floors:1
Bedrooms:3
Full Baths:2
Half Baths:0
Garage:
Square Footage
Heated Area:1675 Sq. Ft.
First Floor:1675 Sq. Ft.
Unheated Area:
First Floor:47 Sq. Ft.
Garage:523 Sq. Ft.
Porch:212 Sq. Ft.
Dimensions
Width:63' 10''
Ridge Height:22' 0''
Architectural Styles
Exterior Wall Material
Brick
Roofing Type
Hip
Roofing Material
Asphalt Shingles
Roof Pitch
8/1214/12
Ceiling Height
9 Foot Ceiling
Special Feature
FireplaceMain Level LaundryStorageOpen Floor Plan
Garage Type
Attached GarageRear Entry
Fireplaces
One Fireplace
Exterior Wall Framing
2x4
Building Lot Type
Flat Site
Kitchen Features
Kitchen IslandPeninsula/Eating Bar
Porches and Exterior Features
Covered Front PorchCovered Rear Porch
Master Suite Features
Main Floor MasterMaster BathroomWalk In ClosetSplit Master Bedroom

What’s Included

Most plan sets include the following:

icon text-secondary-400 includedCover sheet

icon text-secondary-400 includedFoundation plan

icon text-secondary-400 includedDimensional floor plan

icon text-secondary-400 includedExterior views

icon text-secondary-400 includedRoof plan

icon text-secondary-400 includedElectrical layout

icon text-secondary-400 includedWall section(s)

icon text-secondary-400 includedBuilding section(s)

icon text-secondary-400 includedCabinet elevations

What’s Not Included

These items are  NOT included:

icon text-secondary-400 includedArchitectural or Engineering Stamp - handled locally if required.

icon text-secondary-400 includedSite Plan - handled locally when required.

icon text-secondary-400 includedMechanical Drawings (location of heating and air equipment and ductwork) - your subcontractors handle this.

icon text-secondary-400 includedPlumbing Drawings (drawings showing the actual plumbing pipe sizes and locations) - your subcontractors handle this.

icon text-secondary-400 includedEnergy calculations - handled locally when required.

icon text-secondary-400 includedNo Framing

Related House Plans

Plan Collection
Plan Collection
Plan Collection
Plan#117-1092
Starting at$1095
2091
Sq Ft
1
Story
3
Bed
2.5
Bath
2
Car
Plan Collection
Plan Collection
Plan Collection
Plan#141-1243
Starting at$1485
1640
Sq Ft
1
Story
3
Bed
2
Bath
2
Car
Plan Collection
Plan Collection
Plan Collection
Plan#142-1082
Starting at$1295
1834
Sq Ft
1
Story
3
Bed
2
Bath
2
Car
View All

Other Plans By This Designer

Plan Collection
Plan Collection
Plan Collection
Plan#142-1244
Starting at$1545
3086
Sq Ft
1
Story
4
Bed
3.5
Bath
3
Car
Plan Collection
Plan Collection
Plan Collection
Plan#142-1256
Starting at$1295
1599
Sq Ft
1
Story
3
Bed
2.5
Bath
2
Car
Plan Collection
Plan Collection
Plan Collection
Plan#142-1265
Starting at$1245
1448
Sq Ft
1
Story
2
Bed
2
Bath
1
Car