3-Bedroom, 1643 Sq Ft Country Ranch Plan with 2 Master Suites

Country Ranch home (ThePlanCollection: Plan #196-1198)

Images/Plans copyrighted by designer. Photos may reflect homeowner modifications.

About House Plan #196-1198

Sq Ft
1643
Sq Ft
Bedrooms
2
Bedrooms
Bathroom
3
Baths
Half Baths
0
Half Baths
Bedrooms
0
Cars
Bedrooms
1
Stories
Bedrooms
58' 8'
Width
Bedrooms
31
Depth
Starting at$1125.00What's included
STEP 1Bedrooms
STEP 2Bedrooms
STEP 3Bedrooms

Subtotal:$0
Plan Collection

How much will it cost to build?

Estimate your costs based on your location and materials.

Free Cost Instant Estimator

Floor Plans

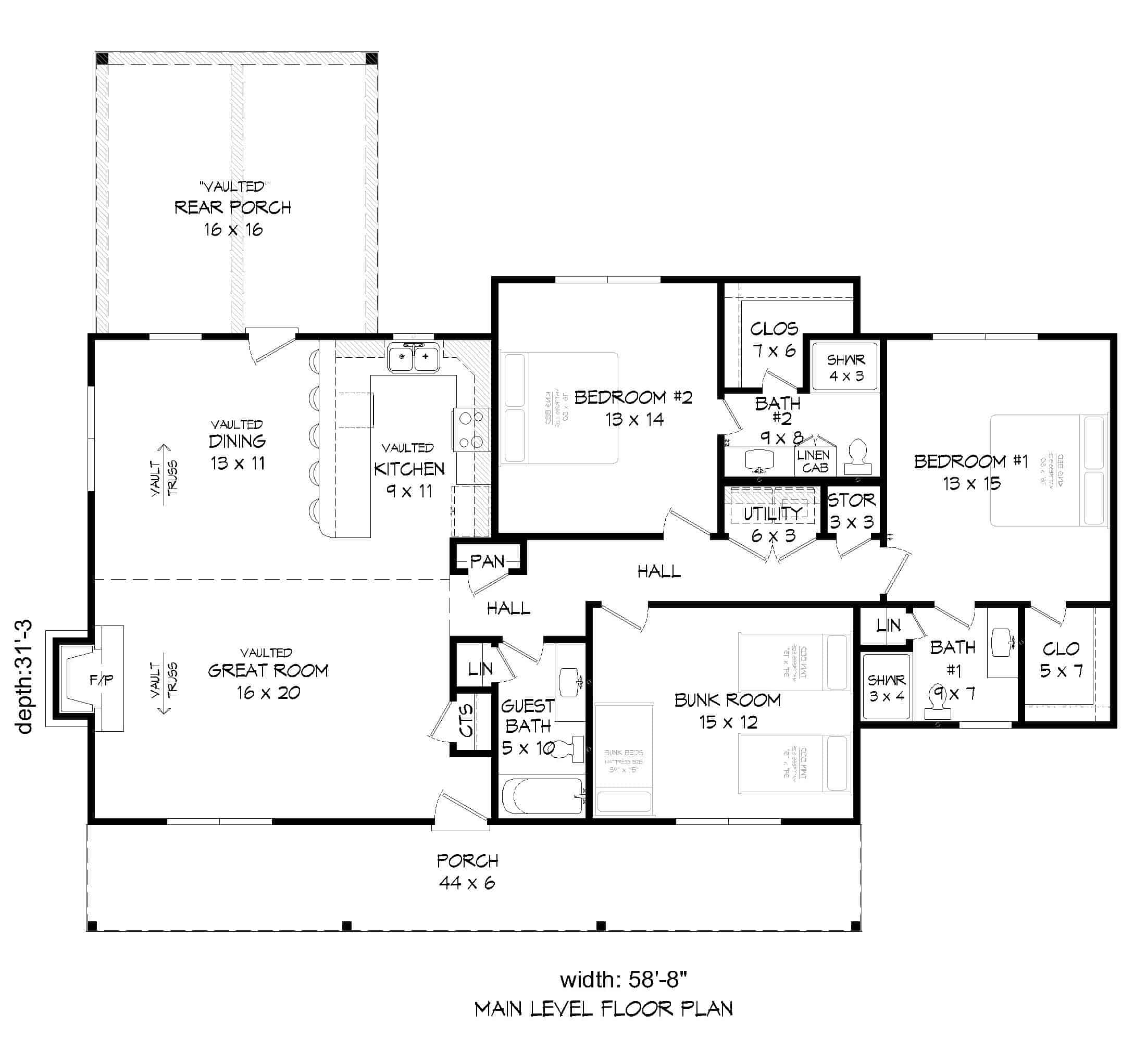
Floor Plan Main Level
Floor Plan Main Level
Plan Collection

Can I modify this plan?

Yes! This plan can be customized—contact us for a free quote.

Additional Notes from Designer

NOTE FROM DESIGNER REGARDING PLAN PURCHASES: 80% of a 5 set purchase price can be applied to any PDF or CAD license upgrade. Additionally, 80% of PDF Study purchase price can be applied to any CAD or PDF license upgrade.

House Plan Description

You’ll love the spacious country feeling in this Ranch home with its open layout, excellent design, and Country style flavor. The simple wide covered entry porch provides a nice transition into the home. HIghlights include two master suites, a vaulted Great Room, and a large covered rear porch with vaulted roof. The adorable single-story home's floor plan has 1643 square feet of heated and cooled living space and includes 2 bedrooms and a bunk room for occasional guests. 

Home Details

Summary
Plan #:196-1198
Starting at:$1125.00
Floors:1
Bedrooms:2
Full Baths:3
Half Baths:0
Garage:
Square Footage
Heated Area:1643 Sq. Ft.
First Floor:1643 Sq. Ft.
Unheated Area:
Porch:520 Sq. Ft.
Dimensions
Width:58' 8''
Depth:31' 3''
Architectural Styles
Exterior Wall Material
Wood Siding
Roofing Type
Gable
Roofing Material
Asphalt Shingles
Roof Pitch
3/126/12
Ceiling Height
9 Foot Ceiling
Special Feature
FireplaceGuest RoomFamily RoomMain Level LaundryStorageVaulted CeilingsOpen Floor Plan
Fireplaces
One Fireplace
Exterior Wall Framing
2x4
Kitchen Features
Peninsula/Eating BarEat-In Kitchen
Porches and Exterior Features
Covered Front PorchCovered Rear Porch
Master Suite Features
Main Floor MasterTwo or More Master SuitesMaster BathroomWalk In Closet

What’s Included

Most plan sets include the following:

What’s Not Included

These items are  NOT included:

Related House Plans

Plan Collection
Plan Collection
Plan Collection
Plan#163-1025
Starting at$1110
1522
Sq Ft
1
Story
2
Bed
3
Bath
2
Car
Plan Collection
Plan Collection
Plan Collection
Plan#132-1687
Starting at$1145
1978
Sq Ft
1
Story
2
Bed
3
Bath
2
Car
Plan Collection
Plan Collection
Plan Collection
Plan#132-1527
Starting at$1145
2039
Sq Ft
1
Story
2
Bed
3.5
Bath
3
Car
View All

Other Plans By This Designer

Plan Collection
Plan Collection
Plan Collection
Plan#196-1211
Starting at$695
650
Sq Ft
2
Story
1
Bed
1
Bath
2
Car
Plan Collection
Plan Collection
Plan Collection
Plan#196-1196
Starting at$810
1500
Sq Ft
1
Story
2
Bed
2
Bath
3
Car
Plan Collection
Plan Collection
Plan Collection
Plan#196-1216
Starting at$845
1727
Sq Ft
2
Story
2
Bed
2
Bath
2
Car