4-Bedroom, 1599 Sq Ft Ranch Plan with Covered Rear Patio

Ranch home (ThePlanCollection: Plan #108-1997)

Images/Plans copyrighted by designer. Photos may reflect homeowner modifications.

About House Plan #108-1997

Sq Ft
1599
Sq Ft
Bedrooms
4
Bedrooms
Bathroom
2
Baths
Half Baths
0
Half Baths
Bedrooms
2
Cars
Bedrooms
1
Stories
Bedrooms
48' 0'
Width
Bedrooms
55
Depth
Starting at$1350.00What's included
STEP 1Bedrooms
STEP 2Bedrooms
STEP 3Bedrooms

Subtotal:$0
Plan Collection

How much will it cost to build?

Estimate your costs based on your location and materials.

Free Cost Instant Estimator

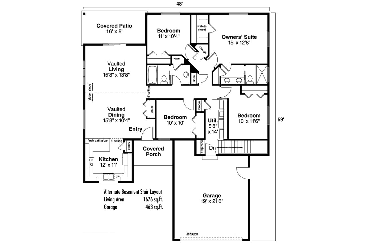
Floor Plans

Floor Plan First Story
Floor Plan First Story
Basement Option Stair Location
Basement Option Stair Location
Plan Collection

Can I modify this plan?

Yes! This plan can be customized—contact us for a free quote.

Additional Notes from Designer

PLEASE NOTE!! For this designer, The PDF that comes with the PRINT Packages (5 set+PDF and 8 set+PDF) is NOT Modifiable - it is for printing ONLY! PLEASE NOTE!! Optional Foundations (foundations that cost extra money) will take 5-10 business days to complete.

NOTE: Allow 5–10 days for Secondary Foundation Options to ship.

House Plan Description

You'll enjoy coming home to this fabulous Country Ranch style home – simple but elegant. Its subtle and style-appropriate use of materials for the roof and exterior walls gives it natural curb appeal. The house has 1599 square feet of heated and cooled living area that maximizes every available square foot of space. Enjoy the spectacular features on this plan such as:

• 4 bedrooms
• Vaulted ceiling in the living room and dining area
• Spacious utility room
• Reach-in kitchen pantry

Home Details

Summary
Plan #:108-1997
Starting at:$1350.00
Floors:1
Bedrooms:4
Full Baths:2
Half Baths:0
Garage:
Square Footage
Heated Area:1599 Sq. Ft.
First Floor:1599 Sq. Ft.
Unheated Area:
Garage:440 Sq. Ft.
Dimensions
Architectural Styles
Exterior Wall Material
Vinyl SidingWood SidingShakes
Roofing Type
Gable
Roofing Material
Asphalt Shingles
Roof Pitch
5/12
Ceiling Height
8 Foot Ceiling
Special Feature
Family RoomMain Level LaundrySplit BathroomStorageVaulted CeilingsOpen Floor PlanL-Shaped
Garage Type
Attached GarageFront Entry
Exterior Wall Framing
2x6
Kitchen Features
Peninsula/Eating Bar
Porches and Exterior Features
PorticoCovered Rear Patio
Master Suite Features
Main Floor MasterMaster BathroomWalk In Closet

What’s Included

Most plan sets include the following:

icon text-secondary-400 included Artist’s rendering of the home,

icon text-secondary-400 included Front/Rear/Left and Right Elevations,

icon text-secondary-400 included Main floor plan, Second or Basement floor plans (if applicable),

icon text-secondary-400 included Foundation plan and detail,

icon text-secondary-400 included Floor framing plan,

icon text-secondary-400 included Roof framing plan, supporting details and

icon text-secondary-400 included Electric layout.

What’s Not Included

These items are  NOT included:

icon text-secondary-400 includedArchitectural or Engineering Stamp - handled locally if required.

icon text-secondary-400 includedSite Plan - handled locally when required.

icon text-secondary-400 includedMechanical Drawings (location of heating and air equipment and ductwork) - your subcontractors handle this.

icon text-secondary-400 includedPlumbing Drawings (drawings showing the actual plumbing pipe sizes and locations) - your subcontractors handle this.

icon text-secondary-400 includedEnergy calculations - handled locally when required.

Related House Plans

Plan Collection
Plan Collection
Plan Collection
Plan#142-1078
Starting at$1295
1798
Sq Ft
1
Story
4
Bed
2
Bath
2
Car
Plan Collection
Plan Collection
Plan Collection
Plan#153-1440
Starting at$1100
1965
Sq Ft
1
Story
4
Bed
2
Bath
2
Car
Plan Collection
Plan Collection
Plan Collection
Plan#150-1008
Starting at$1345
1938
Sq Ft
1
Story
4
Bed
2
Bath
2
Car
View All

Other Plans By This Designer

Plan Collection
Plan Collection
Plan Collection
Plan#108-1923
Starting at$1150
2928
Sq Ft
1
Story
4
Bed
3
Bath
2
Car
Plan Collection
Plan Collection
Plan Collection
Plan#108-1538
Starting at$725
1216
Sq Ft
2
Story
2
Bed
2
Bath
0
Car
Plan Collection
Plan Collection
Plan Collection
Plan#108-2031
Starting at$450
1808
Sq Ft
2
Story
2
Bed
1
Bath
2
Car