3-Bedroom, 1501 Sq Ft Country Plan with Peninsula/Eating Bar

Main image for house plan # 12729

Images/Plans copyrighted by designer. Photos may reflect homeowner modifications.

About House Plan #126-1367

Sq Ft
1501
Sq Ft
Bedrooms
3
Bedrooms
Bathroom
1
Baths
Half Baths
0
Half Baths
Bedrooms
0
Cars
Bedrooms
2
Stories
Bedrooms
29' 4'
Width
Bedrooms
30
Depth
Starting at$1555.00What's included
STEP 1Bedrooms
STEP 2Bedrooms
STEP 3Bedrooms

Subtotal:$0
Plan Collection

How much will it cost to build?

Estimate your costs based on your location and materials.

Free Cost Instant Estimator

Floor Plans

HOME FLOOR PLAN
HOME FLOOR PLAN
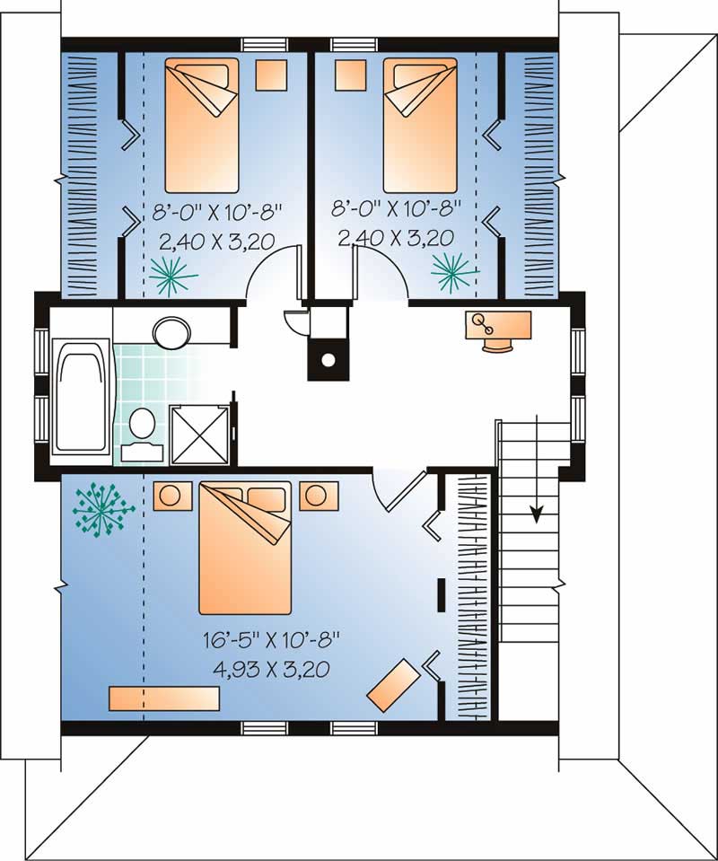
HOME PLAN SECOND LEVEL
HOME PLAN SECOND LEVEL
Plan Collection

Can I modify this plan?

Yes! This plan can be customized—contact us for a free quote.

Additional Notes from Designer

Please Note that the designer's office will be closed for the summer holidays from July 20th to August 2024. This designer's plans take 7-10 additional business days regardless of the type of delivery (express, email, etc). Please keep this in mind when ordering. BCIN is available for this designer - please submit a modification request for cost and time frame. PLEASE NOTE! This designer's plans do NOT come with an electrical layout. They will provide an electrical layout for an additional fee.

House Plan Description

Main level: Entry hall with coat closet, family room with fireplace, dining room, kitchen, half-bath with laundry facilities. 2nd level: 3 bedrooms, bathroom, computer area. Wrap around porch, built-ins, special ceiling treatments, abundant and special fenestration.

Home Details

Summary
Plan #:126-1367
Starting at:$1555.00
Floors:2
Bedrooms:3
Full Baths:1
Half Baths:0
Garage:
Square Footage
Heated Area:1501 Sq. Ft.
First Floor:781 Sq. Ft.
Second Floor:720 Sq. Ft.
Unheated Area:
Dimensions
Width:29' 4''
Architectural Styles
Roof Pitch
12/126/12
Special Feature
FireplaceDining RoomFamily Room
Building Lot Type
Narrow Lot Design
Porches and Exterior Features
Wrap Around Porch

What’s Included

Most plan sets include the following:

icon text-secondary-400 includedExterior elevations

icon text-secondary-400 includedFoundation plan

icon text-secondary-400 includedMain floor plan

icon text-secondary-400 includedUpper floor plan (if applicable)

icon text-secondary-400 includedRoof plan

icon text-secondary-400 includedTruss diagrams & building sections

icon text-secondary-400 includedConstruction details

icon text-secondary-400 includedTypical wall section

What’s Not Included

These items are  NOT included:

icon text-secondary-400 includedArchitectural or Engineering Stamp - handled locally if required.

icon text-secondary-400 includedSite Plan - handled locally when required.

icon text-secondary-400 includedNo Electrical

icon text-secondary-400 includedMechanical Drawings (location of heating and air equipment and ductwork) - your subcontractors handle this.

icon text-secondary-400 includedPlumbing Drawings (drawings showing the actual plumbing pipe sizes and locations) - your subcontractors handle this.

icon text-secondary-400 includedEnergy calculations - handled locally when required.

Related House Plans

Plan Collection
Plan Collection
Plan Collection
Plan#158-1289
Starting at$755
1697
Sq Ft
2
Story
3
Bed
1.5
Bath
2
Car
Plan Collection
Plan Collection
Plan Collection
Plan#126-1270
Starting at$1395
1286
Sq Ft
2
Story
3
Bed
1.5
Bath
0
Car
Plan Collection
Plan Collection
Plan Collection
Plan#173-1028
Starting at$1100
1399
Sq Ft
2
Story
3
Bed
1.5
Bath
2
Car
View All

Other Plans By This Designer

Plan Collection
Plan Collection
Plan Collection
Plan#126-1856
Starting at$1180
943
Sq Ft
2
Story
3
Bed
2
Bath
0
Car
Plan Collection
Plan Collection
Plan Collection
Plan#126-1325
Starting at$3065
7624
Sq Ft
3
Story
16
Bed
8
Bath
0
Car
Plan Collection
Plan Collection
Plan Collection
Plan#126-1855
Starting at$1125
700
Sq Ft
1
Story
2
Bed
1
Bath
0
Car