2-Bedroom, 1417 Sq Ft Modern Plan with Walk-in Pantry

Modern home (ThePlanCollection: Plan #208-1004)

Images/Plans copyrighted by designer. Photos may reflect homeowner modifications.

About House Plan #208-1004

Sq Ft
1417
Sq Ft
Bedrooms
2
Bedrooms
Bathroom
2
Baths
Half Baths
0
Half Baths
Bedrooms
2
Cars
Bedrooms
1
Stories
Bedrooms
48' 0'
Width
Bedrooms
55
Depth
Starting at$1145.00What's included
STEP 1Bedrooms
STEP 2Bedrooms
STEP 3Bedrooms

Subtotal:$0
Plan Collection

How much will it cost to build?

Estimate your costs based on your location and materials.

Free Cost Instant Estimator

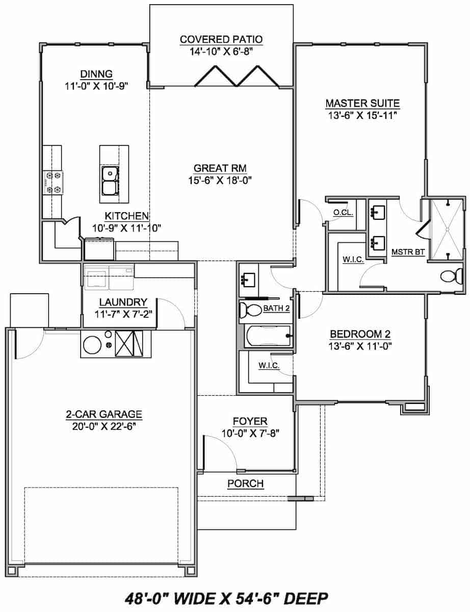
Floor Plans

Floor Plan Main Level
Floor Plan Main Level
Plan Collection

Can I modify this plan?

Yes! This plan can be customized—contact us for a free quote.

Additional Notes from Designer

PLEASE NOTE: This designer's 5 sets, 8 sets & CADs all come with a PDF as well.

House Plan Description

You'll find inspired design and stunning architecture in this Modern style house, which would make a great vacation home. You’ll also love the open and airy feel of the house with its variety of windows, making the rooms brilliant and sunny. The beautiful garage entrance gives a further boost to the exterior design – and curb appeal. This sweet home's 1-story floor plan has 1417 square feet of fully conditioned living space and includes 2 bedrooms.

Home Details

Summary
Plan #:208-1004
Starting at:$1145.00
Floors:1
Bedrooms:2
Full Baths:2
Half Baths:0
Garage:
Square Footage
Heated Area:1417 Sq. Ft.
First Floor:1417 Sq. Ft.
Unheated Area:
Garage:492 Sq. Ft.
Porch:190 Sq. Ft.
Dimensions
Depth:55' 8''
Architectural Styles
Exterior Wall Material
StuccoRock/Stone
Roofing Type
Flat
Roof Pitch
Other
Ceiling Height
10 Foot Ceiling9 Foot Ceiling12 Foot Ceiling
Special Feature
Mud RoomFamily RoomMain Level LaundrySplit BathroomStorageOpen Floor Plan
Garage Type
Attached GarageFront Entry
Exterior Wall Framing
2x4
Kitchen Features
Kitchen IslandWalk-in PantryPeninsula/Eating Bar
Porches and Exterior Features
Covered Front PorchCovered Rear Patio
Master Suite Features
Main Floor MasterMaster BathroomWalk In Closet

What’s Included

Most plan sets include the following:

icon text-secondary-400 includedCover sheet with Rendering on front

icon text-secondary-400 includedGeneral IRC notes page

icon text-secondary-400 includedFront & Rear Elevation Page

icon text-secondary-400 includedLeft / Right elevation page

icon text-secondary-400 includedMonolithic foundation plan

icon text-secondary-400 includedMain Floor Plan – Wood Frame

icon text-secondary-400 includedRoof slope and drainage Plan

icon text-secondary-400 includedRoof Framing Plan (Truss)

icon text-secondary-400 includedBuilding Section (wood frame)

icon text-secondary-400 includedMain Electrical Plan

What’s Not Included

These items are  NOT included:

icon text-secondary-400 includedArchitectural or Engineering Stamp - handled locally if required.

icon text-secondary-400 includedSite Plan - handled locally when required.

icon text-secondary-400 includedMechanical Drawings (location of heating and air equipment and ductwork) - your subcontractors handle this.

icon text-secondary-400 includedPlumbing Drawings (drawings showing the actual plumbing pipe sizes and locations) - your subcontractors handle this.

icon text-secondary-400 includedEnergy calculations - handled locally when required.

Related House Plans

Plan Collection
Plan Collection
Plan Collection
Plan#123-1071
Starting at$850
1292
Sq Ft
1
Story
2
Bed
2
Bath
0
Car
Plan Collection
Plan Collection
Plan Collection
Plan#132-1697
Starting at$1145
1176
Sq Ft
1
Story
2
Bed
2
Bath
0
Car
Plan Collection
Plan Collection
Plan Collection
Plan#136-1028
Starting at$1350
1092
Sq Ft
1
Story
2
Bed
2
Bath
0
Car
View All

Other Plans By This Designer

Plan Collection
Plan Collection
Plan Collection
Plan#208-1005
Starting at$1145
1791
Sq Ft
1
Story
3
Bed
2
Bath
2
Car
Plan Collection
Plan Collection
Plan Collection
Plan#208-1025
Starting at$1145
2621
Sq Ft
1
Story
4
Bed
4.5
Bath
2
Car
Plan Collection
Plan Collection
Plan Collection
Plan#208-1027
Starting at$1145
1638
Sq Ft
1
Story
2
Bed
2
Bath
3
Car