2-Bedroom, 1298 Sq Ft Country Plan with Guest Room

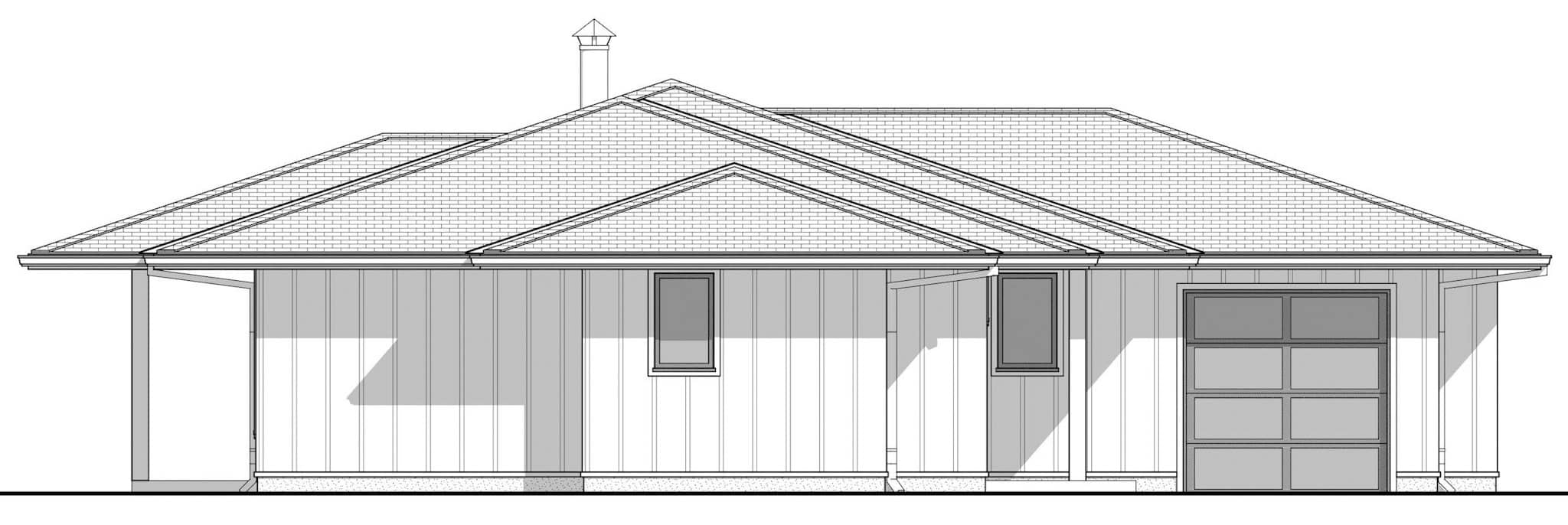
Front elevation of Country home (ThePlanCollection: House Plan #211-1077)

Images/Plans copyrighted by designer. Photos may reflect homeowner modifications.

About House Plan #211-1077

Sq Ft
1298
Sq Ft
Bedrooms
2
Bedrooms
Bathroom
2
Baths
Half Baths
0
Half Baths
Bedrooms
1
Cars
Bedrooms
1
Stories
Bedrooms
52' 0'
Width
Bedrooms
54
Depth
Starting at$900.00What's included
STEP 1Bedrooms
STEP 2Bedrooms
STEP 3Bedrooms

Subtotal:$0
Plan Collection

How much will it cost to build?

Estimate your costs based on your location and materials.

Free Cost Instant Estimator

Floor Plans

Floor Plan First Story
Floor Plan First Story
Plan Collection

Can I modify this plan?

Yes! This plan can be customized—contact us for a free quote.

Additional Notes from Designer

When ordering RRR, please know that it could take an additional 3-5 business days to complete BEFORE your order is sent out, regardless of the package ordered. Some of the plans with a RRR will requite drafting and for these specific plans, they will be available and completed March 20th, 2023

Note: Porch sq ft figures may include any deck sq ft as well.

House Plan Description

Brimming with allure from its enduring Country details, this Bungalow style abode encompasses 1,298 square feet and features 2 bedrooms, 2 baths, and a 1-car garage. Moreover, it presents a delightful fusion of elements, signifying sophistication in every aspect:

  • Living Room, Den, Guest Room, Kitchen with Walk-in Pantry
  • Master Bedroom with Walk-in Closet, Master Bathroom, Private Deck
  • Open Floor Plan

Home Details

Summary
Plan #:211-1077
Starting at:$900.00
Floors:1
Bedrooms:2
Full Baths:2
Half Baths:0
Garage:
Square Footage
Heated Area:1298 Sq. Ft.
First Floor:1298 Sq. Ft.
Unheated Area:
Garage:345 Sq. Ft.
Porch:430 Sq. Ft.
Dimensions
Depth:54' 4''
Architectural Styles
Exterior Wall Material
Wood SidingLap Siding
Roofing Type
Hip
Roofing Material
Asphalt Shingles
Roof Pitch
4/12
Ceiling Height
9 Foot Ceiling
Special Feature
FireplaceGuest RoomMud RoomFamily RoomMain Level LaundryDenOpen Floor Plan
Garage Type
Attached GarageSide Entry
Fireplaces
One Fireplace
Exterior Wall Framing
2x6
Building Lot Type
Flat Site
Kitchen Features
Kitchen IslandWalk-in PantryEat-In Kitchen
Porches and Exterior Features
Covered Front PorchCovered Rear Patio
Master Suite Features
Main Floor MasterMaster BathroomWalk In ClosetPrivate DeckSplit Master Bedroom

What’s Included

Most plan sets include the following:

icon text-secondary-400 includedFillable site plan, rendering, and general notations page

icon text-secondary-400 includedFloor plans

icon text-secondary-400 includedFoundation plan

icon text-secondary-400 includedRoof plan

icon text-secondary-400 includedElevations

icon text-secondary-400 includedminimum of 2 sections + 1 typical wall section

icon text-secondary-400 includedElectrical plan

What’s Not Included

These items are  NOT included:

icon text-secondary-400 includedArchitectural or Engineering Stamp - handled locally if required.

icon text-secondary-400 includedSite Plan - handled locally when required.

icon text-secondary-400 includedMechanical Drawings (location of heating and air equipment and ductwork) - your subcontractors handle this.

icon text-secondary-400 includedPlumbing Drawings (drawings showing the actual plumbing pipe sizes and locations) - your subcontractors handle this.

icon text-secondary-400 includedEnergy Calculations - handled locally when required.

icon text-secondary-400 includedNo Framing

Related House Plans

Plan Collection
Plan Collection
Plan Collection
Plan#123-1071
Starting at$850
1292
Sq Ft
1
Story
2
Bed
2
Bath
0
Car
Plan Collection
Plan Collection
Plan Collection
Plan#132-1697
Starting at$1145
1176
Sq Ft
1
Story
2
Bed
2
Bath
0
Car
Plan Collection
Plan Collection
Plan Collection
Plan#174-1050
Starting at$610
1036
Sq Ft
1
Story
2
Bed
2
Bath
1
Car
View All

Other Plans By This Designer

Plan Collection
Plan Collection
Plan Collection
Plan#211-1001
Starting at$850
967
Sq Ft
1
Story
3
Bed
2
Bath
0
Car
Plan Collection
Plan Collection
Plan Collection
Plan#211-1053
Starting at$950
1626
Sq Ft
1
Story
3
Bed
2.5
Bath
2
Car
Plan Collection
Plan Collection
Plan Collection
Plan#211-1038
Starting at$900
1543
Sq Ft
1
Story
3
Bed
2
Bath
2
Car