3-Bedroom, 1030 Sq Ft Country Plan with Butler's Pantry

This is a 3D rendering of these Ranch Home Plans.

Images/Plans copyrighted by designer. Photos may reflect homeowner modifications.

About House Plan #148-1061

Sq Ft
1030
Sq Ft
Bedrooms
3
Bedrooms
Bathroom
1
Baths
Half Baths
0
Half Baths
Bedrooms
2
Cars
Bedrooms
1
Stories
Bedrooms
60' 0'
Width
Bedrooms
26
Depth
Starting at$750.00What's included
STEP 1Bedrooms
STEP 2Bedrooms
STEP 3Bedrooms

Subtotal:$0
Plan Collection

How much will it cost to build?

Estimate your costs based on your location and materials.

Free Cost Instant Estimator

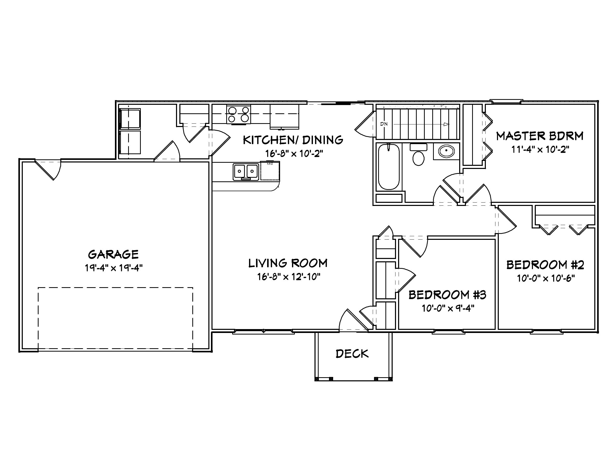
Floor Plans

Floor Plan First Story
Floor Plan First Story
Plan Collection

Can I modify this plan?

Yes! This plan can be customized—contact us for a free quote.

House Plan Description

Are you looking for a simple set of Ranch Houseplans with a lot of character. Mas1009 might be exactly what you've been searching for!

Home Details

Summary
Plan #:148-1061
Starting at:$750.00
Floors:1
Bedrooms:3
Full Baths:1
Half Baths:0
Garage:
Square Footage
Heated Area:1030 Sq. Ft.
First Floor:1030 Sq. Ft.
Unheated Area:
Dimensions
Ridge Height:16' 0''
Architectural Styles
Roof Pitch
7/12
Special Feature
Dining RoomMud RoomMain Level LaundrySplit Bathroom
Garage Type
Attached GarageFront Entry
Exterior Wall Framing
2x4
Building Lot Type
Flat Site
Kitchen Features
Nook/Breakfast AreaPeninsula/Eating BarEat-In Kitchen
Master Suite Features
Main Floor Master

What’s Included

Most plan sets include the following:

icon text-secondary-400 included- Fully dimensioned, noted Floor Plans - Fully dimensioned, noted Foundation Plan - Building Cross Section - Typical Wall Section - 4 Exterior Elevations - Roof Plan - Two 3D overhead views - Electrical Plan with Legend - Stair Detail Page with Legends - Construction Details, if applicable - General notes throughout plan set - Cover sheet with notes and front elevation

What’s Not Included

These items are  NOT included:

icon text-secondary-400 includedArchitectural or Engineering Stamp - handled locally if required.

icon text-secondary-400 includedSite Plan - handled locally when required.

icon text-secondary-400 includedMechanical Drawings (location of heating and air equipment and ductwork) - your subcontractors handle this.

icon text-secondary-400 includedPlumbing Drawings (drawings showing the actual plumbing pipe sizes and locations) - your subcontractors handle this.

icon text-secondary-400 includedEnergy calculations - handled locally when required.

Related House Plans

Plan Collection
Plan Collection
Plan Collection
Plan#126-1552
Starting at$1340
1147
Sq Ft
1
Story
3
Bed
1
Bath
0
Car
Plan Collection
Plan Collection
Plan Collection
Plan#158-1298
Starting at$755
1180
Sq Ft
1
Story
3
Bed
1
Bath
1
Car
Plan Collection
Plan Collection
Plan Collection
Plan#148-1068
Starting at$750
936
Sq Ft
1
Story
3
Bed
1
Bath
2
Car
View All

Other Plans By This Designer

Plan Collection
Plan Collection
Plan Collection
Plan#148-1064
Starting at$750
1400
Sq Ft
1
Story
3
Bed
2
Bath
2
Car
Plan Collection
Plan Collection
Plan Collection
Plan#148-1062
Starting at$750
1528
Sq Ft
1
Story
3
Bed
2
Bath
2
Car
Plan Collection
Plan Collection
Plan Collection
Plan#148-1080
Starting at$750
1560
Sq Ft
1
Story
3
Bed
2
Bath
2
Car