3-Bedroom, 2356 Sq Ft Country Plan with Master Bathroom

Country home (ThePlanCollection: Plan #135-1294)

Images/Plans copyrighted by designer. Photos may reflect homeowner modifications.

About House Plan #135-1294

Sq Ft
2356
Sq Ft
Bedrooms
3
Bedrooms
Bathroom
2
Baths
Half Baths
0
Half Baths
Bedrooms
2
Cars
Bedrooms
1
Stories
Bedrooms
71' 0'
Width
Bedrooms
55
Depth
Starting at$1610.00What's included
STEP 1Bedrooms
STEP 2Bedrooms
STEP 3Bedrooms

Subtotal:$0
Plan Collection

How much will it cost to build?

Estimate your costs based on your location and materials.

Free Cost Instant Estimator

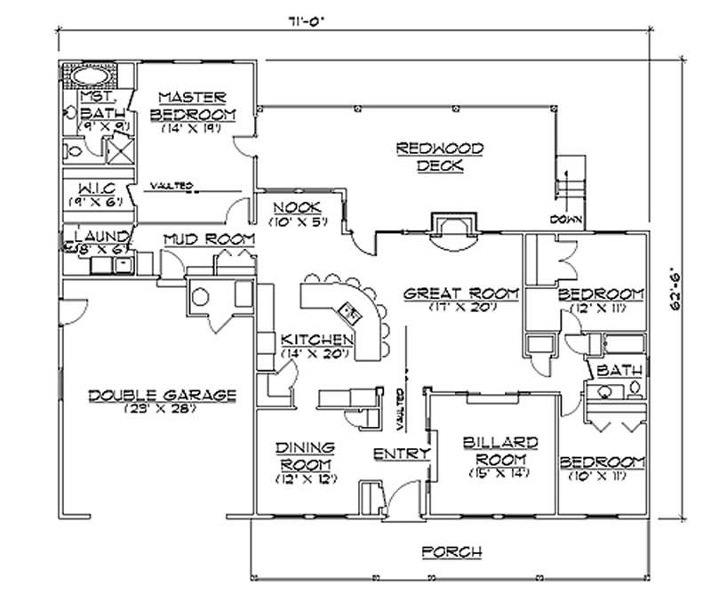
Floor Plans

FLOOR PLAN
FLOOR PLAN
Plan Collection

Can I modify this plan?

Yes! This plan can be customized—contact us for a free quote.

House Plan Description

This lovely country style home design has 2,356 square feet of living space. The two-story floor plan includes 3 bedrooms and 2 bathrooms.

Home Details

Summary
Plan #:135-1294
Starting at:$1610.00
Floors:1
Bedrooms:3
Full Baths:2
Half Baths:0
Garage:
Square Footage
Heated Area:2356 Sq. Ft.
First Floor:2356 Sq. Ft.
Unheated Area:
Basement:2356 Sq. Ft.
Dimensions
Architectural Styles
Exterior Wall Material
Brick
Roofing Type
GableHip
Ceiling Height
9 Foot Ceiling
Garage Type
Attached Garage
Fireplaces
One Fireplace

What’s Included

Most plan sets include the following:

icon text-secondary-400 includedCover

icon text-secondary-400 includedGeneral notes

icon text-secondary-400 includedFoundation/Footing plan

icon text-secondary-400 includedBasement plan

icon text-secondary-400 includedFloor framing plan

icon text-secondary-400 includedMain level plan

icon text-secondary-400 includedUpper-level floor framing (if applicable)

icon text-secondary-400 includedUpper floor plan (if applicable)

icon text-secondary-400 includedRoof framing plan

icon text-secondary-400 includedBuilding sections/details

icon text-secondary-400 includedElectrical layout

What’s Not Included

These items are  NOT included:

icon text-secondary-400 includedArchitectural or Engineering Stamp - handled locally if required.

icon text-secondary-400 includedSite Plan - handled locally when required.

icon text-secondary-400 includedMechanical Drawings (location of heating and air equipment and ductwork) - your subcontractors handle this.

icon text-secondary-400 includedPlumbing Drawings (drawings showing the actual plumbing pipe sizes and locations) - your subcontractors handle this.

icon text-secondary-400 includedEnergy calculations - handled locally when required.

Related House Plans

Plan Collection
Plan Collection
Plan Collection
Plan#142-1168
Starting at$1395
2597
Sq Ft
1
Story
3
Bed
2.5
Bath
2
Car
Plan Collection
Plan Collection
Plan Collection
Plan#117-1092
Starting at$1095
2091
Sq Ft
1
Story
3
Bed
2.5
Bath
2
Car
Plan Collection
Plan Collection
Plan Collection
Plan#142-1082
Starting at$1295
1834
Sq Ft
1
Story
3
Bed
2
Bath
2
Car
View All

Other Plans By This Designer

Plan Collection
Plan Collection
Plan Collection
Plan#135-1015
Starting at$0
5022
Sq Ft
2
Story
5
Bed
5
Bath
4
Car
Plan Collection
Plan Collection
Plan Collection
Plan#135-1081
Starting at$1725
2759
Sq Ft
1
Story
5
Bed
3.5
Bath
3
Car
Plan Collection
Plan Collection
Plan Collection
Plan#135-1018
Starting at$0
3102
Sq Ft
1
Story
5
Bed
3.5
Bath
3
Car