4-Bedroom, 2525 Sq Ft Ranch Plan with Kitchen Island

Main image for house plan # 5359

Images/Plans copyrighted by designer. Photos may reflect homeowner modifications.

About House Plan #178-1009

Sq Ft
2525
Sq Ft
Bedrooms
4
Bedrooms
Bathroom
2
Baths
Half Baths
1
Half Baths
Bedrooms
3
Cars
Bedrooms
1
Stories
Bedrooms
51' 0'
Width
Bedrooms
57
Depth
Starting at$1055.00What's included
STEP 1Bedrooms
STEP 2Bedrooms
STEP 3Bedrooms

Subtotal:$0
Plan Collection

How much will it cost to build?

Estimate your costs based on your location and materials.

Free Cost Instant Estimator

Floor Plans

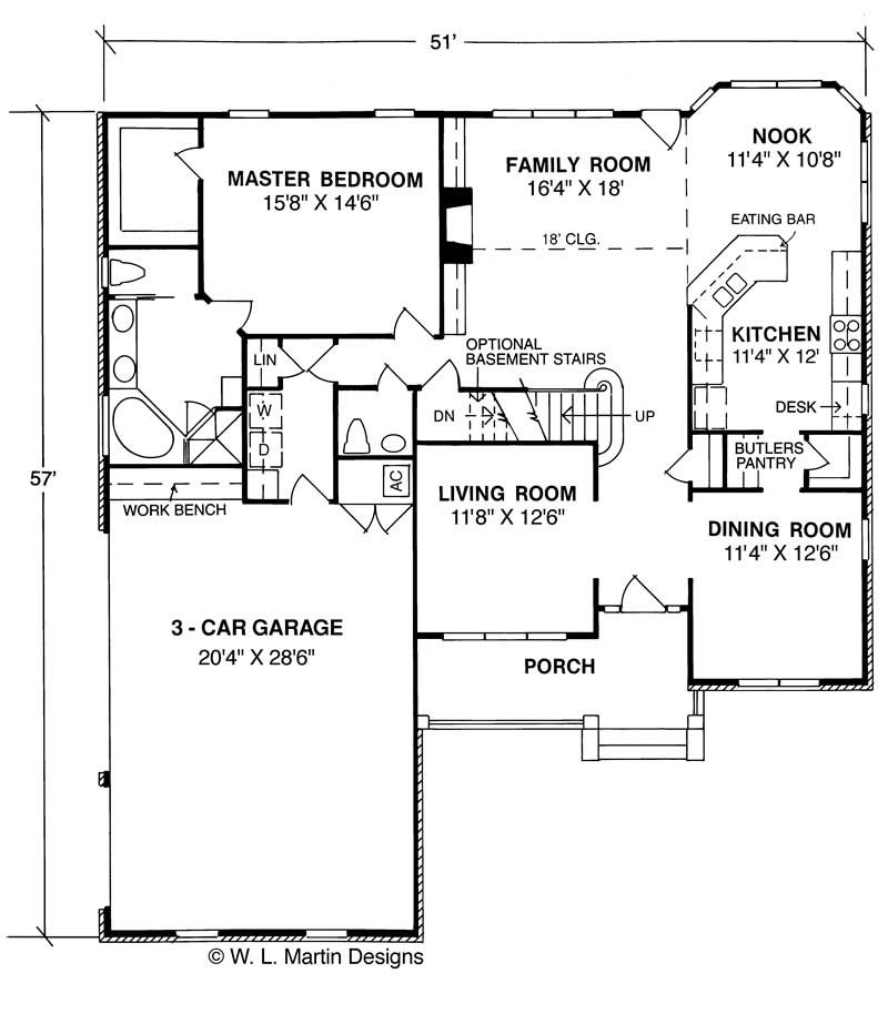
Main Floor Plan
Main Floor Plan
Upper Level Floor Plan
Upper Level Floor Plan
Plan Collection

Can I modify this plan?

Yes! This plan can be customized—contact us for a free quote.

Additional Notes from Designer

Please Note: This plan comes standard with a Construction License that gives the original purchaser the right to build the plan as many times as you like.

House Plan Description

Cape Cod House Plans

Home Details

Summary
Plan #:178-1009
Starting at:$1055.00
Floors:1
Bedrooms:4
Full Baths:2
Half Baths:1
Garage:
Square Footage
Heated Area:2525 Sq. Ft.
First Floor:1604 Sq. Ft.
Second Floor:921 Sq. Ft.
Unheated Area:
Dimensions
Architectural Styles
Exterior Wall Material
Vinyl SidingBrick
Roofing Type
Gable
Garage Type
Attached Garage

What’s Included

Most plan sets include the following:

icon text-secondary-400 includedFront elevation and construction notes

icon text-secondary-400 includedRear and side elevations

icon text-secondary-400 includedFloor plan, including electrical, window and door sizes, floor joist span directions, and ceiling type notes (9’ ceiling, vault, etc)

icon text-secondary-400 includedSecond-floor plan (if applicable) with the same info as shown on first-floor plan

icon text-secondary-400 includedTypical wall section

icon text-secondary-400 includedTypical foundation details

icon text-secondary-400 includedRoof plan showing roof pitches, ridges & valleys.

icon text-secondary-400 includedFoundation plan

What’s Not Included

These items are  NOT included:

icon text-secondary-400 includedArchitectural or Engineering Stamp - handled locally if required.

icon text-secondary-400 includedSite Plan - handled locally when required.

icon text-secondary-400 includedMechanical Drawings (location of heating and air equipment and duct work) - your subcontractors handle this.

icon text-secondary-400 includedPlumbing Drawings (drawings showing the actual plumbing pipe sizes and locations) - your subcontractors handle this.

icon text-secondary-400 includedEnergy calculations - handled locally when required.

Related House Plans

Plan Collection
Plan Collection
Plan Collection
Plan#142-1170
Starting at$1395
2641
Sq Ft
1
Story
4
Bed
2.5
Bath
2
Car
Plan Collection
Plan Collection
Plan Collection
Plan#141-1148
Starting at$1570
2200
Sq Ft
1
Story
4
Bed
2.5
Bath
2
Car
Plan Collection
Plan Collection
Plan Collection
Plan#142-1189
Starting at$1395
2589
Sq Ft
1
Story
4
Bed
2.5
Bath
2
Car
View All

Other Plans By This Designer

Plan Collection
Plan Collection
Plan Collection
Plan#178-1345
Starting at$680
395
Sq Ft
1
Story
1
Bed
1
Bath
0
Car
Plan Collection
Plan Collection
Plan Collection
Plan#178-1248
Starting at$945
1277
Sq Ft
1
Story
3
Bed
2
Bath
0
Car
Plan Collection
Plan Collection
Plan Collection
Plan#178-1393
Starting at$965
1558
Sq Ft
1
Story
3
Bed
2
Bath
0
Car