5-Bedroom, 3743 Sq Ft Contemporary Ranch Plan with Color Photos

Contemporary Ranch home (ThePlanCollection: Plan #120-2644)

Images/Plans copyrighted by designer. Photos may reflect homeowner modifications.

About House Plan #120-2644

Sq Ft
3743
Sq Ft
Bedrooms
5
Bedrooms
Bathroom
4
Baths
Half Baths
0
Half Baths
Bedrooms
4
Cars
Bedrooms
1
Stories
Bedrooms
65' 0'
Width
Bedrooms
68
Depth
Starting at$1475.00What's included
STEP 1Bedrooms
STEP 2Bedrooms
STEP 3Bedrooms

Subtotal:$0
Plan Collection

How much will it cost to build?

Estimate your costs based on your location and materials.

Free Cost Instant Estimator

Floor Plans

Floor Plan Main Level
Floor Plan Main Level
Floor Plan Basement
Floor Plan Basement
Plan Collection

Can I modify this plan?

Yes! This plan can be customized—contact us for a free quote.

Additional Notes from Designer

PLEASE NOTE! If you order an optional foundation and a materials list, the materials list will NOT include the optional foundation, only the standard foundation. The designer can provide an updated materials list for a fee, so please ask for a quote!

House Plan Description

If you're looking forward to entertaining family and friends in your home, then this luxurious Contemporary style home may be the perfect house for you! The floor plan is perfect for accommodating visitors and displays a spectacular standard of architecture. It covers a total heated and cooled area of 3743 square feet for the main and basement levels. 

Approaching the house, you'll be welcomed vt a cozy entry portico. And as you enter the house, you'll immediately feel the open space of the Great Room, with its 10-foot ceiling fireplace...

Home Details

Summary
Plan #:120-2644
Starting at:$1475.00
Floors:1
Bedrooms:5
Full Baths:4
Half Baths:0
Garage:
Square Footage
Heated Area:3743 Sq. Ft.
Basement:1533 Sq. Ft.
First Floor:2210 Sq. Ft.
Unheated Area:
Garage:928 Sq. Ft.
Porch:64 Sq. Ft.
Dimensions
Depth:68' 4''
Architectural Styles
Exterior Wall Material
Vinyl SidingRock/StoneWood Siding
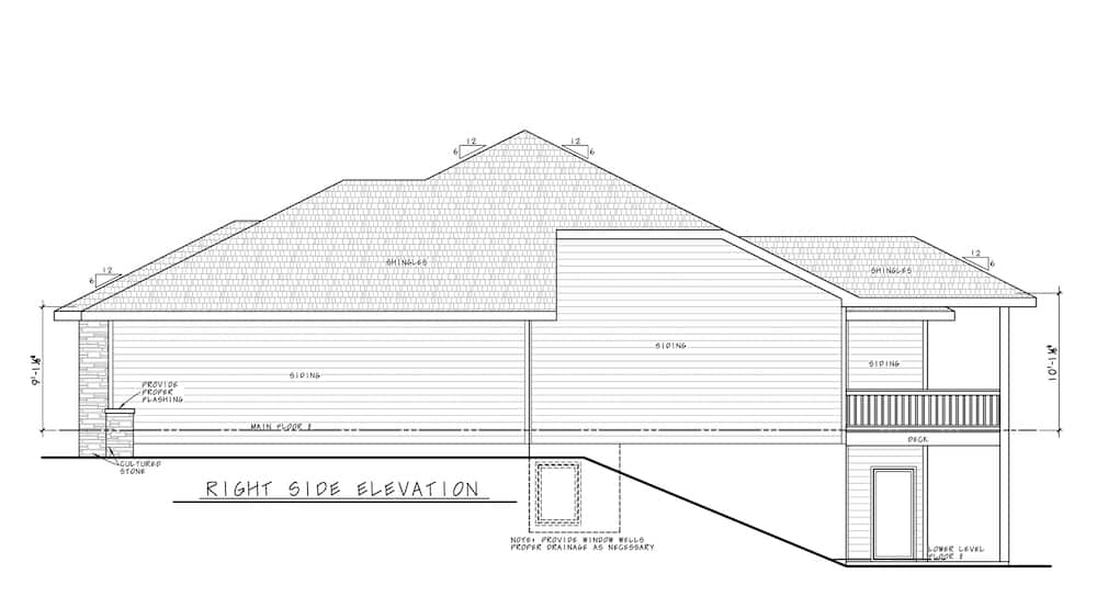
Roofing Type
Hip
Roofing Material
Asphalt ShinglesMetal
Roof Pitch
6/12
Ceiling Height
10 Foot Ceiling9 Foot Ceiling11 Foot Ceiling
Special Feature
FireplaceHome OfficeMud RoomFamily RoomColor PhotosColor PhotosSplit BathroomStorageDenOpen Floor PlanInterior PhotosInterior Photos
Garage Type
Attached GarageSide EntryFront Entry
Fireplaces
One Fireplace
Exterior Wall Framing
2x4
Building Lot Type
Corner Lot
Kitchen Features
Kitchen IslandWalk-in PantryPeninsula/Eating Bar
Porches and Exterior Features
Portico
Master Suite Features
Main Floor MasterMaster BathroomWalk In ClosetSitting Area

What’s Included

Most plan sets include the following:

icon text-secondary-400 includedCover Page. Each home plan features the front elevation and informative reference sections including, general notes and design criteria*, abbreviations, and symbols for your plan.

icon text-secondary-400 includedElevations. Scaled elevations for the front, rear, and sides are provided. All elevations are detailed and an aerial view of the roof is provided.

icon text-secondary-400 includedFoundations. Foundations are fully engineered for each design, whether slab or basement.

icon text-secondary-400 includedMain Level Floor Plan

icon text-secondary-400 includedSecond Level Floor Plan

icon text-secondary-400 includedElectrical layout

icon text-secondary-400 includedWall & Stair Sections

What’s Not Included

These items are  NOT included:

icon text-secondary-400 includedArchitectural or Engineering Stamp - handled locally if required.

icon text-secondary-400 includedSite Plan - handled locally when required.

icon text-secondary-400 includedMechanical Drawings (location of heating and air equipment and ductwork) - your subcontractors handle this.

icon text-secondary-400 includedPlumbing Drawings (drawings showing the actual plumbing pipe sizes and locations) - your subcontractors handle this.

icon text-secondary-400 includedEnergy calculations - handled locally when required.

Related House Plans

Plan Collection
Plan Collection
Plan Collection
Plan#153-1868
Starting at$1100
2880
Sq Ft
1
Story
5
Bed
4
Bath
3
Car
Plan Collection
Plan Collection
Plan Collection
Plan#163-1052
Starting at$1150
4225
Sq Ft
1
Story
5
Bed
4.5
Bath
3
Car
Plan Collection
Plan Collection
Plan Collection
Plan#153-1659
Starting at$1350
3003
Sq Ft
1
Story
5
Bed
4
Bath
3
Car
View All

Other Plans By This Designer

Plan Collection
Plan Collection
Plan Collection
Plan#120-2655
Starting at$1005
800
Sq Ft
1
Story
2
Bed
1
Bath
0
Car
Plan Collection
Plan Collection
Plan Collection
Plan#120-2696
Starting at$1105
1642
Sq Ft
1
Story
3
Bed
2.5
Bath
2
Car
Plan Collection
Plan Collection
Plan Collection
Plan#120-1117
Starting at$1105
1699
Sq Ft
2
Story
3
Bed
2.5
Bath
2
Car