2-Bedroom, 1400 Sq Ft Ranch Plan with Vaulted Ceilings

Ranch home (ThePlanCollection: Plan #103-1137)

Images/Plans copyrighted by designer. Photos may reflect homeowner modifications.

About House Plan #103-1137

Sq Ft
1400
Sq Ft
Bedrooms
2
Bedrooms
Bathroom
2
Baths
Half Baths
0
Half Baths
Bedrooms
2
Cars
Bedrooms
1
Stories
Bedrooms
50' 0'
Width
Bedrooms
44
Depth
Starting at$895.00What's included
STEP 1Bedrooms
STEP 2Bedrooms
STEP 3Bedrooms

Subtotal:$0
Plan Collection

How much will it cost to build?

Estimate your costs based on your location and materials.

Free Cost Instant Estimator

Floor Plans

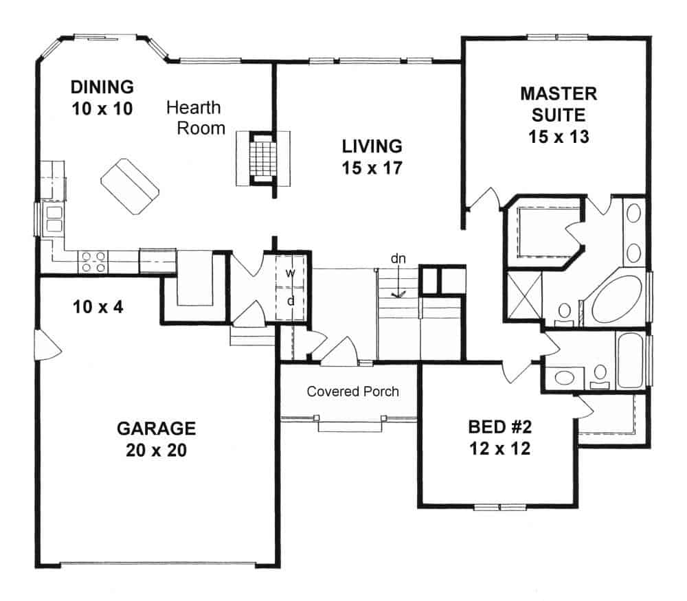
Floor Plan Main Level
Floor Plan Main Level
Plan Collection

Can I modify this plan?

Yes! This plan can be customized—contact us for a free quote.

Additional Notes from Designer

PLEASE NOTE: For this designer, if you choose optional features such as but not limited to: 2x6 framing, reverse or optional basement, the designer will need an additional 2-5 business days to adjust the plan accordingly. Please keep this in mind when choosing your shipping option. If you would like Express or Priority shipping, the designer will ship the plan to you using the method you choose but you will still have the 2-5 business day waiting period BEFORE they ship! Please feel free to contact us with any questions!

House Plan Description

This Ranch style home strives for perfection and is sure to be a delight to any family. The covered porch, arched entry and garage openings, and forward-facing roof gables enhance the appealing exterior of the home. The eye-catching 1-story floor plan has 1400 square feet of heated and cooled living space with an unfinished daylight basement foundation that you may finish for an extra 1240 square feet of living space. Or you could choose the slab or crawlspace foundation. The living, dining, and hearth rooms; kitchen; and master bedroom all have vaulted...

Home Details

Summary
Plan #:103-1137
Starting at:$895.00
Floors:1
Bedrooms:2
Full Baths:2
Half Baths:0
Garage:
Square Footage
Heated Area:1400 Sq. Ft.
First Floor:1400 Sq. Ft.
Unheated Area:
Basement:1240 Sq. Ft.
Garage:440 Sq. Ft.
Dimensions
Architectural Styles
Exterior Wall Material
Vinyl SidingBrickWood Siding
Roofing Type
Gable
Roofing Material
Asphalt Shingles
Roof Pitch
6/128/12
Ceiling Height
10 Foot Ceiling8 Foot Ceiling
Special Feature
FireplaceMain Level LaundryVaulted Ceilings
Garage Type
Attached GarageFront Entry
Fireplaces
One Fireplace
Building Lot Type
Down Site
Kitchen Features
Kitchen IslandWalk-in PantryPeninsula/Eating Bar
Porches and Exterior Features
Covered Front Porch
Master Suite Features
Main Floor MasterMaster BathroomWalk In Closet

What’s Included

Most plan sets include the following:

icon text-secondary-400 includedFront, Side & Rear Elevations

icon text-secondary-400 includedFloor Plan

icon text-secondary-400 includedFoundation Plan

icon text-secondary-400 includedRoof Plan (Birdseye view)

icon text-secondary-400 includedElectrical Layout (location of outlets, switches - it does not have wiring schematics)

icon text-secondary-400 includedCabinet Details

icon text-secondary-400 includedWall Section

icon text-secondary-400 includedStair Details

icon text-secondary-400 includedBuilding Cross Section

What’s Not Included

These items are  NOT included:

icon text-secondary-400 includedArchitectural or Engineering Stamp - handled locally if required.

icon text-secondary-400 includedSite Plan - handled locally when required.

icon text-secondary-400 includedMechanical Drawings (location of heating and air equipment and ductwork) - your subcontractors handle this.

icon text-secondary-400 includedPlumbing Drawings (drawings showing the actual plumbing pipe sizes and locations) - your subcontractors handle this.

icon text-secondary-400 includedEnergy calculations - handled locally when required.

Related House Plans

Plan Collection
Plan Collection
Plan Collection
Plan#123-1071
Starting at$850
1292
Sq Ft
1
Story
2
Bed
2
Bath
0
Car
Plan Collection
Plan Collection
Plan Collection
Plan#136-1028
Starting at$1350
1092
Sq Ft
1
Story
2
Bed
2
Bath
0
Car
Plan Collection
Plan Collection
Plan Collection
Plan#192-1001
Starting at$500
1270
Sq Ft
1
Story
2
Bed
2
Bath
0
Car
View All

Other Plans By This Designer

Plan Collection
Plan Collection
Plan Collection
Plan#103-1118
Starting at$870
1039
Sq Ft
1
Story
3
Bed
2
Bath
2
Car
Plan Collection
Plan Collection
Plan Collection
Plan#103-1119
Starting at$870
1108
Sq Ft
1
Story
3
Bed
2
Bath
2
Car
Plan Collection
Plan Collection
Plan Collection
Plan#103-1120
Starting at$870
1158
Sq Ft
1
Story
2
Bed
2
Bath
3
Car