4-Bedroom, 3170 Sq Ft French Country Plan with Split Bedroom Layout

Front elevation of French country home (ThePlanCollection: House Plan #206-1009)

Images/Plans copyrighted by designer. Photos may reflect homeowner modifications.

About House Plan #206-1009

Sq Ft
3170
Sq Ft
Bedrooms
4
Bedrooms
Bathroom
3
Baths
Half Baths
0
Half Baths
Bedrooms
3
Cars
Bedrooms
1
Stories
Bedrooms
86' 1'
Width
Bedrooms
88
Depth
Starting at$1395.00What's included
STEP 1Bedrooms
STEP 2Bedrooms
STEP 3Bedrooms

Subtotal:$0
Plan Collection

How much will it cost to build?

Estimate your costs based on your location and materials.

Free Cost Instant Estimator

Floor Plans

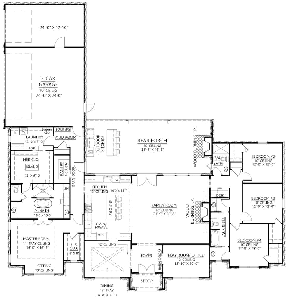
Floor Plan Main Level
Floor Plan Main Level
Plan Collection

Can I modify this plan?

Yes! This plan can be customized—contact us for a free quote.

House Plan Description

Check out this luxurious French country manor with an the interior layout is just as attractive and is sure to be a delight to any family. The home is designed to capture all the natural light possible through the beautiful large windows around the house. The incredible 1-story floor plan has 3170 square feet of heated and cooled living space with 4 bedrooms and separate his and her walk-in closets in the master suite.

 

 

Home Details

Summary
Plan #:206-1009
Starting at:$1395.00
Floors:1
Bedrooms:4
Full Baths:3
Half Baths:0
Garage:
Square Footage
Heated Area:3170 Sq. Ft.
First Floor:3170 Sq. Ft.
Unheated Area:
Garage:981 Sq. Ft.
Porch:698 Sq. Ft.
Dimensions
Width:86' 1''
Depth:88' 7''
Architectural Styles
Exterior Wall Material
Rock/Stone
Roofing Type
Hip
Roofing Material
Asphalt ShinglesMetal
Roof Pitch
10/12
Ceiling Height
10 Foot Ceiling11 Foot Ceiling12 Foot Ceiling
Special Feature
FireplaceDining RoomMud RoomFamily RoomGame RoomMain Level LaundrySplit BathroomStorageOpen Floor PlanL-Shaped
Garage Type
Attached GarageSide Entry
Fireplaces
Two Fireplaces
Exterior Wall Framing
2x4
Building Lot Type
Corner Lot
Kitchen Features
Kitchen IslandWalk-in PantryOutdoor KitchenPeninsula/Eating Bar
Porches and Exterior Features
Covered Front PorchCovered Rear Porch
Master Suite Features
Main Floor MasterMaster BathroomWalk In ClosetSitting AreaSplit Master Bedroom

What’s Included

Most plan sets include the following:

icon text-secondary-400 includedFloor plan(s)

icon text-secondary-400 includedWindow & door schedules

icon text-secondary-400 includedElectrical layout

icon text-secondary-400 includedExterior elevations

icon text-secondary-400 includedFoundation plan

icon text-secondary-400 includedTypical wall section

icon text-secondary-400 includedFoundation section details

icon text-secondary-400 includedRoof plans

icon text-secondary-400 includedMiscellaneous details

icon text-secondary-400 includedKitchen & bath cabinet elevations

icon text-secondary-400 includedBuilding Cross-Section

What’s Not Included

These items are  NOT included:

icon text-secondary-400 includedArchitectural or Engineering Stamp - handled locally if required.

icon text-secondary-400 includedSite Plan - handled locally when required.

icon text-secondary-400 includedMechanical Drawings (location of heating and air equipment and duct work) - your subcontractors handle this.

icon text-secondary-400 includedPlumbing Drawings (drawings showing the actual plumbing pipe sizes and locations) - your subcontractors handle this.

icon text-secondary-400 includedEnergy calculations - handled locally when required.

Related House Plans

Plan Collection
Plan Collection
Plan Collection
Plan#142-1102
Starting at$1395
2639
Sq Ft
1
Story
4
Bed
3
Bath
2
Car
Plan Collection
Plan Collection
Plan Collection
Plan#146-2173
Starting at$1015
2464
Sq Ft
1
Story
4
Bed
3
Bath
3
Car
Plan Collection
Plan Collection
Plan Collection
Plan#142-1005
Starting at$1395
2500
Sq Ft
1
Story
4
Bed
3
Bath
2
Car
View All

Other Plans By This Designer

Plan Collection
Plan Collection
Plan Collection
Plan#206-1039
Starting at$1245
2230
Sq Ft
1
Story
3
Bed
2.5
Bath
2
Car
Plan Collection
Plan Collection
Plan Collection
Plan#206-1046
Starting at$1195
1817
Sq Ft
1
Story
3
Bed
2
Bath
2
Car
Plan Collection
Plan Collection
Plan Collection
Plan#206-1035
Starting at$1295
2716
Sq Ft
1
Story
4
Bed
3
Bath
3
Car