Estimate your costs based on your location and materials.
Yes! This plan can be customized—contact us for a free quote.
Yes! This plan can be customized—contact us for a free quote.
PLEASE NOTE! If you order an optional foundation and a materials list, the materials list will NOT include the optional foundation, only the standard foundation. The designer can provide an updated materials list for a fee, so please ask for a quote!
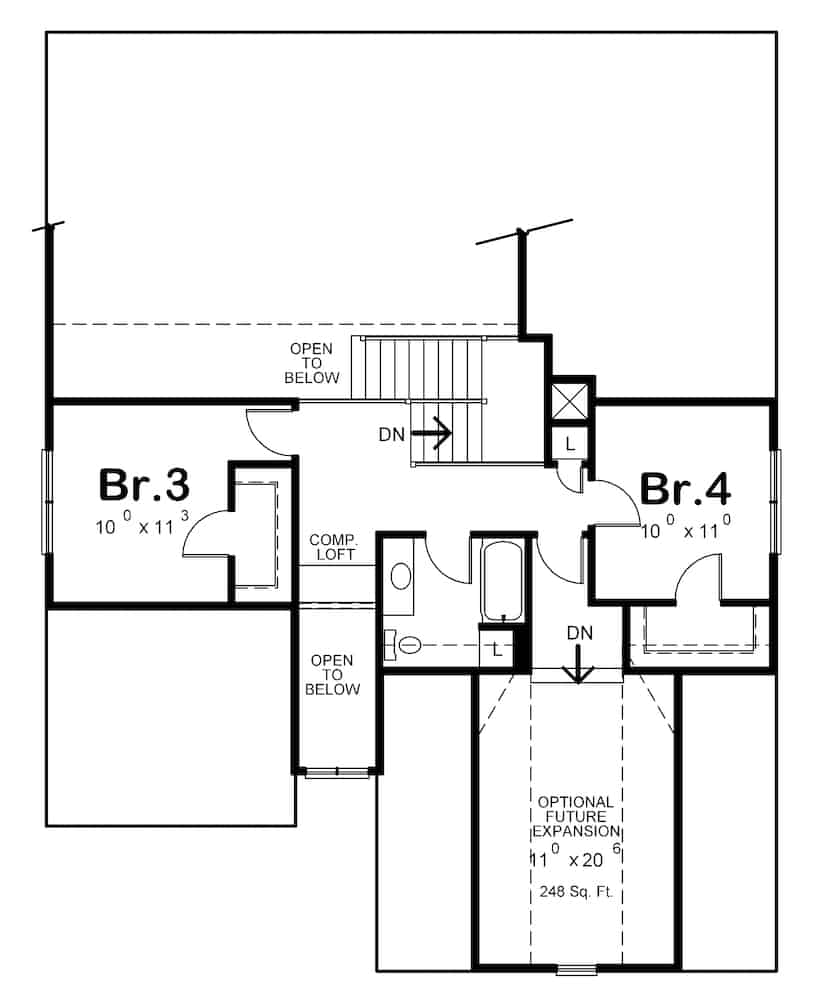
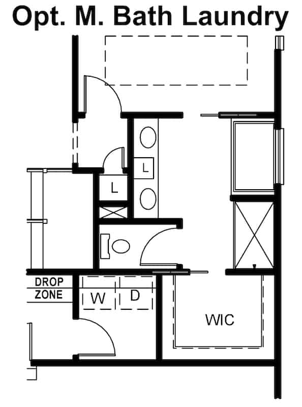
This Cottage style house with Farmhouse expressions will be a truly great home for a young family or empty nesters. You’ll appreciate the free-flowing nature of the interior, the use of natural materials, and the double columns on the front covered porch, all of which add grace to the house. The remarkable 1.5-story floor plan has 2114 square feet of heated and cooled living space and includes 4 bedrooms, plus future bonus space above the garage.
Estimate your costs based on your location and materials.
All sales of house plans, modifications, and other products found on this site are final. No refunds or exchanges can be given once your order has begun the fulfillment process. Please see our Policies for additional information.
All plans offered on ThePlanCollection.com are designed to conform to the local building codes when and where the original plan was drawn.
The homes as shown in photographs and renderings may differ from the actual blueprints. For more detailed information, please review the floor plan images herein carefully.
Estimate your costs based on your location and materials.