5-Bedroom, 3141 Sq Ft Multi-Level Plan with Vaulted Ceilings

Multi-Level home (ThePlanCollection: Plan #108-1406)

Images/Plans copyrighted by designer. Photos may reflect homeowner modifications.

About House Plan #108-1406

Sq Ft
3141
Sq Ft
Bedrooms
5
Bedrooms
Bathroom
4
Baths
Half Baths
0
Half Baths
Bedrooms
2
Cars
Bedrooms
2
Stories
Bedrooms
64' 0'
Width
Bedrooms
63
Depth
Starting at$1825.00What's included
STEP 1Bedrooms
STEP 2Bedrooms
STEP 3Bedrooms

Subtotal:$0
Plan Collection

How much will it cost to build?

Estimate your costs based on your location and materials.

Free Cost Instant Estimator

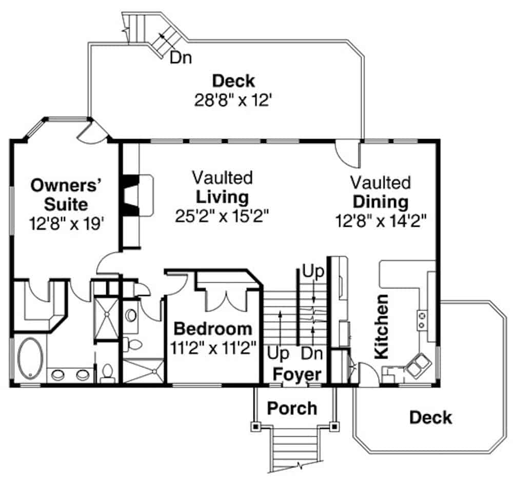
Floor Plans

Floor Plan Main Level
Floor Plan Main Level
Floor Plan Upper Level
Floor Plan Upper Level
Floor Plan Third Story
Floor Plan Third Story
Plan Collection

Can I modify this plan?

Yes! This plan can be customized—contact us for a free quote.

Additional Notes from Designer

PLEASE NOTE!! For this designer, The PDF that comes with the PRINT Packages (5 set+PDF and 8 set+PDF) is NOT Modifiable - it is for printing ONLY! PLEASE NOTE!! Optional Foundations (foundations that cost extra money) will take 5-10 business days to complete.

House Plan Description

This home plan is a split-level Rustic Lodge style house with 3141 total living square feet. The transitional Craftsman style home features impressive stone supports and low roof gables with stick work that accents the multi-level plan.

Home Details

Summary
Plan #:108-1406
Starting at:$1825.00
Floors:2
Bedrooms:5
Full Baths:4
Half Baths:0
Garage:
Square Footage
Heated Area:3141 Sq. Ft.
First Floor:1490 Sq. Ft.
Second Floor:1290 Sq. Ft.
Unheated Area:
Bonus Room:361 Sq. Ft.
Garage:732 Sq. Ft.
Dimensions
Depth:63' 4''
Ridge Height:30' 0''
Architectural Styles
Exterior Wall Material
Wood SidingShakes
Roofing Type
GableHip
Roofing Material
Wood Shakes
Roof Pitch
5/12
Ceiling Height
8 Foot Ceiling
Special Feature
FireplaceDining RoomBonus RoomFamily RoomMain Level LaundryLoftStorageOpen Floor PlanL-Shaped
Garage Type
Attached GarageFront Entry
Fireplaces
One Fireplace
Exterior Wall Framing
2x6
Kitchen Features
Peninsula/Eating BarEat-In Kitchen
Porches and Exterior Features
SundeckPorticoPatio
Master Suite Features
Main Floor MasterTwo or More Master SuitesMaster BathroomWalk In ClosetSecond Floor Master

What’s Included

Most plan sets include the following:

icon text-secondary-400 included Artist’s rendering of the home,

icon text-secondary-400 included Front/Rear/Left and Right Elevations,

icon text-secondary-400 included Main floor plan, Second or Basement floor plans (if applicable),

icon text-secondary-400 included Foundation plan and detail,

icon text-secondary-400 included Floor framing plan,

icon text-secondary-400 included Roof framing plan, supporting details and

icon text-secondary-400 included Electric layout.

What’s Not Included

These items are  NOT included:

icon text-secondary-400 includedArchitectural or Engineering Stamp - handled locally if required.

icon text-secondary-400 includedSite Plan - handled locally when required.

icon text-secondary-400 includedMechanical Drawings (location of heating and air equipment and ductwork) - your subcontractors handle this.

icon text-secondary-400 includedPlumbing Drawings (drawings showing the actual plumbing pipe sizes and locations) - your subcontractors handle this.

icon text-secondary-400 includedEnergy calculations - handled locally when required.

Related House Plans

Plan Collection
Plan Collection
Plan Collection
Plan#198-1068
Starting at$1445
3314
Sq Ft
2
Story
5
Bed
4
Bath
2
Car
Plan Collection
Plan Collection
Plan Collection
Plan#106-1173
Starting at$1695
3698
Sq Ft
2
Story
5
Bed
4
Bath
3
Car
Plan Collection
Plan Collection
Plan Collection
Plan#153-1127
Starting at$1550
3601
Sq Ft
2
Story
5
Bed
4
Bath
3
Car
View All

Other Plans By This Designer

Plan Collection
Plan Collection
Plan Collection
Plan#108-1923
Starting at$1150
2928
Sq Ft
1
Story
4
Bed
3
Bath
2
Car
Plan Collection
Plan Collection
Plan Collection
Plan#108-1538
Starting at$725
1216
Sq Ft
2
Story
2
Bed
2
Bath
0
Car
Plan Collection
Plan Collection
Plan Collection
Plan#108-2031
Starting at$450
1808
Sq Ft
2
Story
2
Bed
1
Bath
2
Car