Estimate your costs based on your location and materials.
Yes! This plan can be customized—contact us for a free quote.
Yes! This plan can be customized—contact us for a free quote.
NOTE FROM DESIGNER REGARDING PLAN PURCHASES: 80% of a 5 set purchase price can be applied to any PDF or CAD license upgrade. Additionally, 80% of PDF Study purchase price can be applied to any CAD or PDF license upgrade.
Please note: The total sqaure footage for this home is 1532.
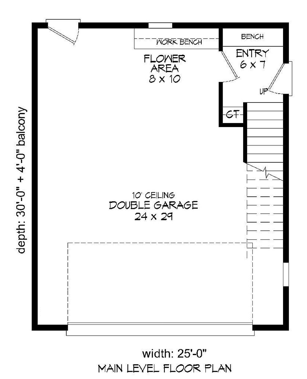
Looking for a unique and stylish garage with an apartment but everything you need and more? This modern-styled, 820 living sq ft, 2-car garage apartment comes complete with 2 bedrooms, 1 full bath, an eat-in kitchen, storage space, and a spacious living area with a balcony. With its desirable features and functional layout, this garage with an apartment will meet all your needs!
Estimate your costs based on your location and materials.
All sales of house plans, modifications, and other products found on this site are final. No refunds or exchanges can be given once your order has begun the fulfillment process. Please see our Policies for additional information.
All plans offered on ThePlanCollection.com are designed to conform to the local building codes when and where the original plan was drawn.
The homes as shown in photographs and renderings may differ from the actual blueprints. For more detailed information, please review the floor plan images herein carefully.
Estimate your costs based on your location and materials.