Estimate your costs based on your location and materials.
Yes! This plan can be customized—contact us for a free quote.
Yes! This plan can be customized—contact us for a free quote.
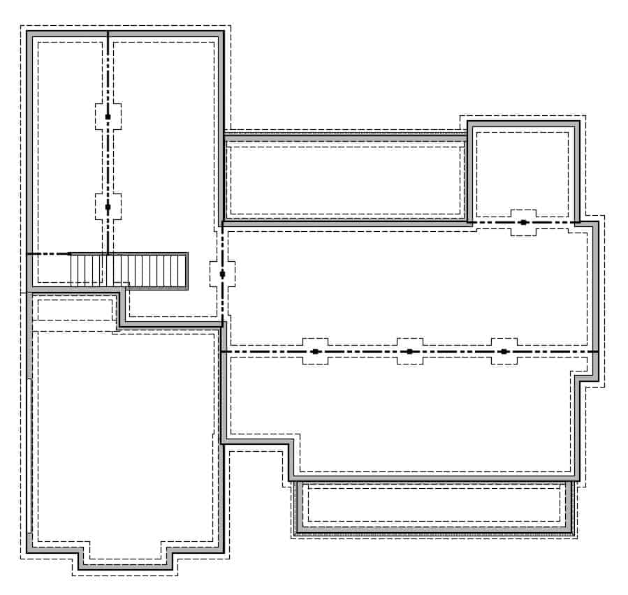
On some plans, Basement Foundations, Walkout Basement Foundations & 2x6 Conversions could take up to ONE WEEK to produce. Materials Lists could take up to FOUR WEEKS to produce and they will be for the ORIGINAL plan! Any modifications will NOT be reflected on the Materials List. NOTE FROM DESIGNER: If you purchase a CAD, you will automatically receive the unlimited build license - no need to purchase separately!
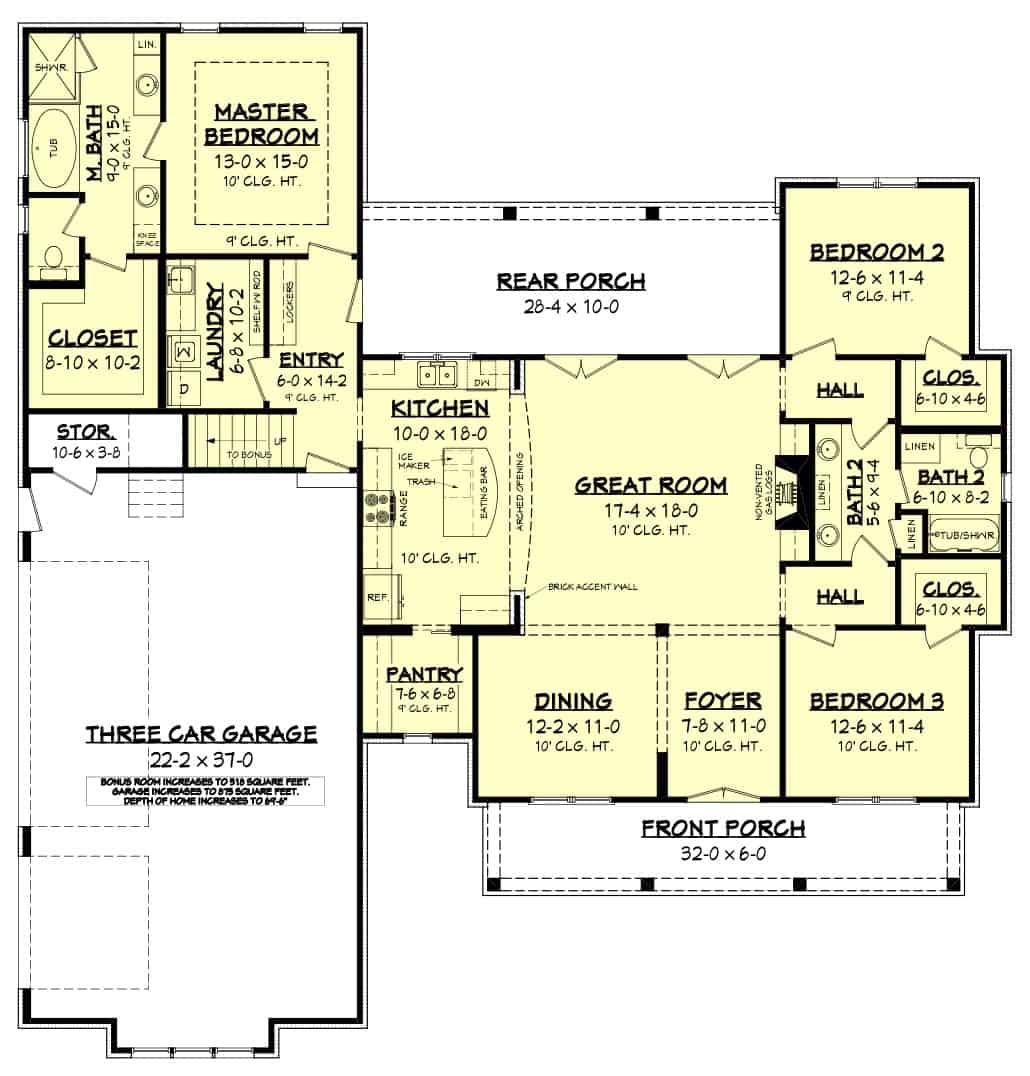
Please note: The total square footage for this plan is 3589.
As you make your way up the driveway, this striking modern farmhouse certainly catches your eye. The style embraces the best of Craftsman and Arts & Crafts architecture while also adding a contemporary vibe to the design. The low pitched roof of the porch is supported by boxed columns. The windows are well-framed between the columns. The double door entry makes quite a statement -- and the shed dormer window right above it adds even more character.
Inside, the foyer is spacious and inviting -- made more so by the open floor plan and 10-foot ceilings in the main rooms. The...
Estimate your costs based on your location and materials.
All sales of house plans, modifications, and other products found on this site are final. No refunds or exchanges can be given once your order has begun the fulfillment process. Please see our Policies for additional information.
All plans offered on ThePlanCollection.com are designed to conform to the local building codes when and where the original plan was drawn.
The homes as shown in photographs and renderings may differ from the actual blueprints. For more detailed information, please review the floor plan images herein carefully.
Estimate your costs based on your location and materials.